
アンティークが似合うこだわりの家
- 121.76㎡
- 4LDK
- 2,422万円(税込)
- 家族構成:4人
- 施工期間:約4カ月
築50年のヴィンテージマンションを購入したWさま。購入する際に、前オーナーさまから譲り受けたアンティーク家具やステンドグラスなど、さまざまなアイテムの質感を活かしつつ、ご家族の今の生活スタイルに沿ったプランをご希望。古さを活かした美しい空間が実現しました。
リフォーム/リノベーションのポイント

100年の歴史のあるレンガと木の壁パネルが落ち着いた印象を与えながら、天井は照明の種類や位置に自由度を持たせるためにダクトレールを設置しました。色を黒にすることで全体の雰囲気を壊すことなく照明を配置できます。

Wさまの強いご希望で既存の木の壁パネルをキッチンとリビングの壁にそのまま利用することにしました。背面の収納はキッチン用品から日常の小物までたくさん収納できます。天井に木目調クロスを採用し、壁面の壁と調和するようにデザインしました。

リビングから続く各お部屋の扉には、譲り受けたステンドグラスを埋め込み、壁にはアンティークミラーを設置しました。

フランスの古城のアンティーク家具の扉を壁面のオブジェとして採用しました。

書斎は奥さまのこだわりでシックな印象に仕上げるため、内装色に濃紺色を使用。収納も充実させました。

ラベンダーを基調とした明るい子供部屋。

落ち着いたカーペットと壁紙を使用したもう一つの子ども部屋。お子さまたちがそれぞれ自分の部屋に使用する素材や色・柄などを選び、思い入れのあるお部屋に仕上がりました。壁面は写真などが貼れるようにマグネットが使用できる木目柄の素材を採用。

リビング・ダイニングの一角には、テレワークスペースを設えました。

リビング・ダイニングに向けて、開放的な奥行110センチのペニンシュラタイプのシステムキッチン。

奥さまとお嬢さまがゆったりと身支度できるパウダールームを設置しました。

雰囲気の異なるそれぞれのトイレ空間。収納スペースにはお掃除道具やトイレットペーパーを収納することができます。

洗面室から浴室までトータルコーディネートされた空間。

浴室は1116から1416へサイズアップ。足を伸ばしてゆっくりくつろぐことができます。

玄関壁面の両側に収納を新たに設置しました。収納には奥行きを持たせたことで、靴だけでなくコートなどを収納することができます。

前オーナーさまから譲り受けた、100年の歴史を持つレンガとステンドグラスを活用しました。
お客さまのご要望
イメージは「日常生活の効率化とヴィンテージの融合」。今の物件の雰囲気を生かしつつ、現在の基準で暮らしやすい住まいにしたい。譲り受けたフランスの古城の扉を使用したクロゼット、アンティークの大きな鏡、ステンドグラスなど、すべて活用することは難しいかもしれないが何らかの形で残したい。また、リビングに使用されている天然木のパネルを新しい部屋にも取り入れたい。また、それぞれの子ども部屋、主寝室と書斎部屋、家族が身支度できるようなスペースの確保、水回りやエアコン、給湯器など最新のものに変更して欲しい。またトイレは2カ所設置して欲しい。
デザイナーからのコメント
お客さまがご要望されたアンティークと近代的なものを組み合わせたリフォームが完成しました。給湯器、エアコン、住宅設備、照明器具などを最新のものに変更し、カーペットには新たに床暖房を設置しました。インテリアのこだわりと共に、生活が豊かになるアイテムを取り入れ暮らしやすさも実現しました。
お客さまの声
スムーズな動線上に効率よく住まう、という現実的な要望に加え、長年の時を経た天然木パネルやレンガの壁を活かすこと、アンティーク家具の活用など、数えきれないわがままを余すことなく実現していただきました。在宅する時間が長くなったため、家族全員同時にそれぞれのテレワークやオンライン授業に専念できる空間も確保していただきました。新しい住まいに大変満足しています。
リフォーム/リノベーションデータ
家族構成
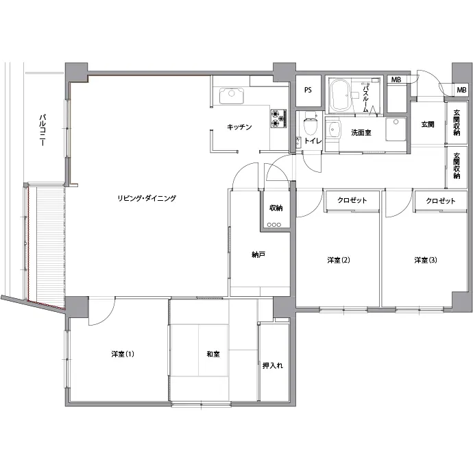
リノベーション後間取り
専有面積
施工期間
リノベーション費
築年数(リノベーション当時)
リノベーション箇所
- 内装
- フローリング
- 水回り
- キッチン、トイレ、洗面室、ユニットバス
- 造作家具・収納
- リビング収納、洋室収納、寝室収納、玄関収納、壁面収納、書斎コーナー
- その他
- 床暖房


