
こだわりが詰まった理想の我が家
- 84.5㎡
- 2LDK
- 1,538万円(税込)
- 家族構成:1人
- 施工期間:約2.5カ月
住み慣れたお部屋をリフォームして、暗さや寒さを改善し、快適でより便利に暮らしたいとご要望がありました。また照明や各部屋にテーマを設け、それに合わせて壁紙やデザインを設定。部屋によって異なる雰囲気を楽しめる、個性あふれる住まいになりました。
リフォーム/リノベーションのポイント

イタリアの工房をイメージしたリビング・ダイニング。「仕事場」として使用することが多いということで仕事関係のものが収納できるよう、ダイニング側壁一面にシステム収納を設置しました。

キッチンカウンターの正面と「仕事場」を兼ねたリビング・ダイニングの壁面には、仕事関係の書類を貼ったり、時計などを掛けることができるマグネットボードと有孔ボードを採用しました。

「パリ」をイメージした寝室。ゴッホの絵がデザインされた壁紙を採用しました。

「ニューヨーク」をイメージしたキッチン。背面にもデザインを合わせたカップボードを設置し、使い勝手にこだわりました。

フリースペースの一部は正座をして仏壇に手を合わせられるよう、小上がりの畳スペースを設けました。

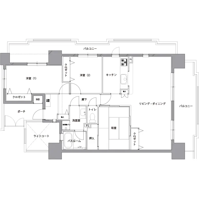
玄関正面には明るく開放的な「中庭」をイメージしたフリールーム。暗さを解消するために洋室2室の間仕切りを撤去しました。壁がなくなることで通気性も改善されました。

ホワイトとブルーの配色が美しい洗面室。メキシコやスペインの海辺のリゾートホテルをイメージし、デザイン性のある陶器のタイルを採用しました。

洗面室から続く、濃紺色のバスルーム。

洗面台同様、タイルが華やかなトイレスペース。

ダウンライトは星座をモチーフに配置しました。リビング・ダイニングのオリオン座7灯

フリールームの北斗七星 7灯

寝室のカシオペア座 5灯
お客さまのご要望
騒音と寒さ、暗さと通気性を改善したい。
感銘を受けた21人の方を同じ数のダウンライトに見立てて星座の形に配置したい。それぞれの部屋の過ごし方から部屋にテーマ性を持たせ快適に過ごしたい。水回りの設備もこだわりのものを採用したい。
デザイナーからのコメント
コロナ禍でお会いできない期間もありましたが、工事の進捗確認を共有し、プランの内容を細かく確認しながら進めました。お客さまから具体的に実現したい内容、アイデアを共有いただくことで、ご希望に沿ったリフォームをかたちにすることができました。
お客さまの声
リビングは大きな机を置けるように広い空間になり、希望していた有孔ボードとマグネットボードも設置していただき、とても作業のしやすいリビング空間になりました。玄関側の廊下は光が入らないため寒く暗いのが悩みでしたが、壁を取り払い廊下をなくすことで開放的で明るい空間になりました。洗面台、トイレのタイルは私のイメージしたイラストの通り貼っていただいたので、びっくりしたと共に、感謝しています。洗面台や鏡の位置など、細かなところまで現場で一緒に考えていただきました。自分でデザインしたものやイメージしていた理想の空間が実現しとても嬉しいです。
リフォーム/リノベーションデータ
家族構成
リノベーション後間取り
専有面積
施工期間
リノベーション費
築年数(リノベーション当時)
リノベーション箇所
- 水回り
- キッチン、トイレ、洗面室、ユニットバス
- 造作家具・収納
- リビング収納、玄関収納、壁面収納、畳下収納


