
家族6人がのびのびと暮らせる80㎡
- 80.05㎡
- 3LDK
- 1,264万円(税込)
- 家族構成:6人
- 施工期間:約3カ月
奥さまのお父さまとの同居にあたり、これからの暮らしに合わせた全面リフォームを行いました。3人のお嬢さまそれぞれのプライベート空間、お父さまのために室内の段差を解消するバリアフリー化、奥さまのための家事動線の見直しなどをすべて叶える広々とした間取りプランをご提案。介護を感じさせないナチュラルな内装デザインで、家族の皆さまが満足する住まいがカタチになりました。
リフォーム/リノベーションのポイント

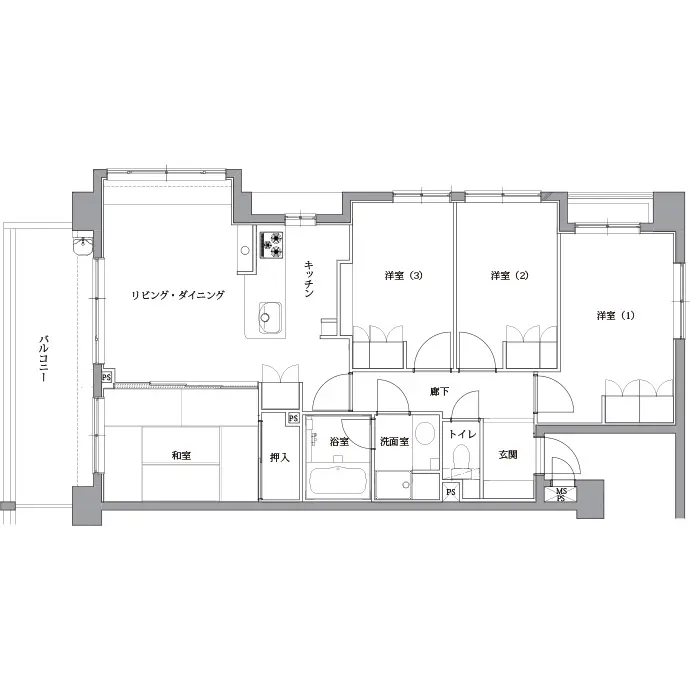
水回りを集約するために元々キッチンだった空間に和室を設えました。

ご夫婦の寝室を兼ねた小上がりの和室。普段はベンチ代わりになり、家族みんなで寛げる空間に。収納棚にはご夫婦の洋服、畳の下には季節用品などを収納しています。また就寝時にはブラインドを閉めてプライベートな空間にすることが可能です。

お嬢さま3人のお部屋。プライベート空間を保ちつつ、お互いの気配を感じられるよう、完全な個室ではなく半個室として設えました。仕切りはたくさんの本や小物も置ける仕様としました。

洋室(子ども部屋)別アングル

キッチンを移動し水回りを集約することで家事動線を見直しました。キッチン、洗面室、浴室を一直線にすることでムダな動きが減り家事がスムーズに。

洗面室には、洗濯した衣類をその場で干せるよう、ランドリーパイプを設けました。洗面台は1面鏡から3面鏡に変更し収納力がアップしました。

お父さまが入浴しやすいように浴室は手すりを設置しました。アクセントパネルを使用することでスタイリッシュな雰囲気に。

お父さまも使いやすいように開き戸から引き戸に。わずかな力で開閉することが可能で、出入り口の場所も広く確保できるためトイレに行く際の付き添いも広い空間で行うことができます。また、つかまり立ちに配慮して手すりも設置しました。

廊下とリビング・ダイニングをつなぐ扉は、廊下側から見た際にデザインのアクセントとなるよう、リビング入口の框戸だけを木目調にしました。
お客さまのご要望
- リビング・ダイニングを開放的に。
- 最新の水回り設備で快適に。お父さまの介護に合わせて使いやすく。
- 大家族でもゆったりと過ごせるようにしてほしい。
- 3人の娘にそれぞれのプライベートな空間をつくってほしい。
デザイナーからのコメント
Kさまご夫妻、3人のお嬢さま、お父さまと大家族でいらっしゃるので、お部屋や設備の位置をどのように配置すると生活動線がスムーズか、限られたスペースの中で、いかにお子さま個々のプライベート空間を設けるか、リビングはくつろげるスペースになっているか、など細部にわたり考えご提案しました。お子さまにも打ち合わせに参加していただき、プランや内装に皆さまの意見が反映されるようにし、ご家族が快適に暮らせる空間を実現しました。
お客さまの声
私たちの現状の課題やこうしてほしいと思う要望を聞き入れ、現実化させようと一生懸命提案してくれました。気になったことを相談すると、次に会うときには必ず解決策を提示してくました。わかりやすい説明や素人の私達では気付かなかった点なども教えていただき安心してお任せすることができました。生活全体にゆとりができて、家事もとても便利になり、6人大家族での広々とした空間に大変満足しています。
リフォーム/リノベーションデータ
家族構成
リノベーション後間取り
専有面積
施工期間
リノベーション費
築年数(リノベーション当時)
リノベーション箇所
- 内装
- フローリング
- 水回り
- キッチン、トイレ、洗面室、ユニットバス
- 造作家具・収納
- 壁面収納、畳下収納


