
夫婦二人の快適空間
- 95.79㎡
- 4LDK
- 800万円(税込)
- 家族構成:2人
- 施工期間:約2カ月
Oさまご夫婦とお打合せを始めたのは3年前の夏。旦那さまの定年やお子さまたちの進学のタイミングなど、ライフスタイルの変化に合わせて、リフォーム計画を一緒に考え始めました。この春、お子さまたちが進学で家を出られたため、定年後に向けてご夫婦二人で快適に過ごすためにリフォームを行うことになりました。以前から気になっていたのはフローリングの傷み、クロスの剥がれや設備機器の劣化でした。また間取りへの不満はないものの、リビング・ダイニングの狭さを唯一気にされていました。そこで活用していない和室をリビング・ダイニングと一体の空間にし、また個室としても使い分けられるよう利便性も考慮した折れ戸をご提案。水回り設備も一新することで、ご夫婦の理想の家に生まれ変わりました。
リフォーム/リノベーションのポイント

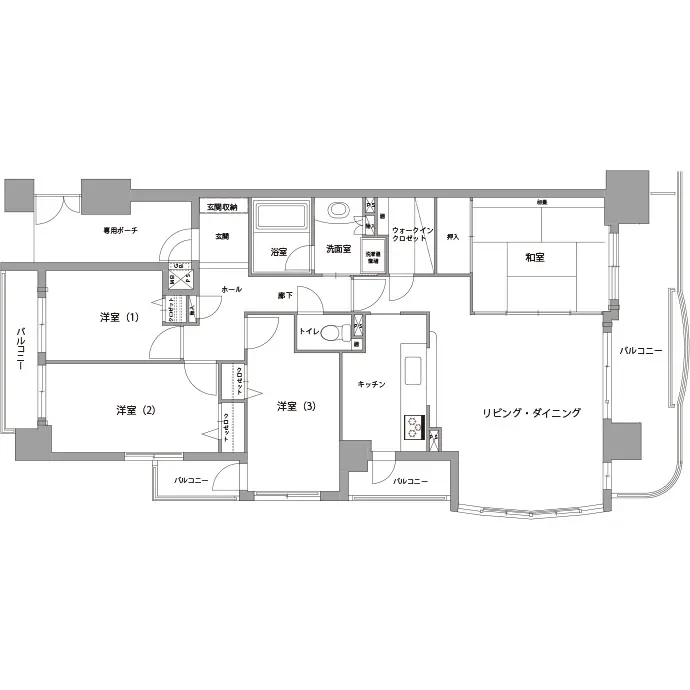
リビング・ダイニングと元々和室だった間に、折れ戸を採用しました。折れ戸を閉めることで個室としても使え、折りたたむことで一続きの広い空間になります。また収納の建具は開放感を感じられるよう白色を採用しました。

お子さまの部屋としていた2つの洋室は、カーペットをフローリングに、クロスも張り替えることで、お子さまがいつ帰省しても気持ちよく使える空間になりました。

キッチン空間を明るくするために、白系のキッチンパネルをセレクト。またクロスを張り替え、照明器具をLEDに取り替えました。

洗面室は明るさを感じられるように、洗面台の扉は明るい色の木目調を採用しました。

以前の浴室はタイル風の凹凸のあるパネルが使用されていたため、目地の汚れが気になることも。新たにフラットなパネルに変更したことで清掃性が向上しました。またアクセントパネルにはダークな石目調のデザインを採用し、スタイリッシュな印象に。

トイレはタンクが見えるロータンクタイプから、タンクの見えないキャビネットトイレに変更しました。キャビネット部分にはお気に入りの絵や小物を飾ることができます。

玄関はミラー付きの玄関収納を採用したことで奥行を感じられる空間になりました。
お客さまのご要望
- 和室とリビング・ダイニングを一続きの広い空間に、また用途に応じてプライベート空間にするなど可変性を持たせたい。
- 最新の水回り設備に変更したい。
デザイナーからのコメント
将来のライフスタイルに合わせて、リフォームのスケジュールを作成し、お客さまと共有しながら少しずつですが確実にお打合せを進めていきました。水回り設備は家事負担軽減につながる商品を予算内でご提案し、建具のカラーは空間をより広く感じられるようコーディネートをしました。お引き渡しまで長期間に及びましたがご満足いただける住まいをご提供できたこと、とても嬉しく思います。
お客さまの声
とても長い期間、お世話になりました。初回のプランからの変更や、新しい要望にも精一杯対応していただきました。他社とは異なりマンションの構造にも精通されているので安心してお任せすることができました。ご提案いただいた内容、またアフターフォローがしっかりしているので、リフォーム費用に関しても納得できる金額でした。今回、間取りはほとんど変えていませんが、水回り設備や内装を変えるだけで以前より暮らしがとても快適になりました。今後、友人や知人からリフォームしたいという要望があった時には是非、「大京のリフォーム」をおすすめしたいです。
リフォーム/リノベーションデータ
家族構成
リノベーション後間取り
専有面積
施工期間
リノベーション費
築年数(リノベーション当時)
リノベーション箇所
- 内装
- フローリング
- 水回り
- キッチン、トイレ、洗面室、ユニットバス
- 造作家具・収納
- 洋室収納、玄関収納


