
回遊動線で風通しの良い家
- 84.46㎡
- 2LDK
- -円
- 家族構成:2人
- 施工期間:約1.5カ月
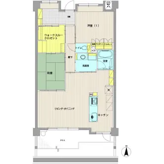
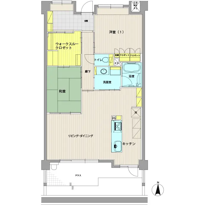
築17年のマンションにお住いのIさま。各居室が仕切られているため、家事の際に移動がしにくいこと、分散した収納スペース、また半独立タイプのキッチン不満を感じていました。そこで収納計画と回遊動線を取り入れた間取りを一からプランニング。家の中を回遊できる動線とそれにともなう収納プランにより家事効率も向上し、風が通る気持ちの良い住まいになりました。
リフォーム/リノベーションのポイント

和室は畳表替えをし、明るく気持ちの良い空間に。玄関につながるウォークスルークロゼットの新設と和室の壁を引き戸に変更したことにより、玄関からの風が通り抜け、湿気がこもりにくくなりました。

洗面室に隣接していたキッチンを窓側に変更することにより明るいキッチンになりました。

浴室は清潔感のある水色をアクセントパネルに採用しました。お手入れがしやすいように、カビが発生しづらい床自動洗浄機能を備えました。

洗面化粧台はサイド収納が増えたことにより収納量が増えました。鏡部分はお化粧の際など、手前に引き出して使うことができる便利な機能が付いています。水栓金具は手で触らず水が出せるセンサー式を採用し衛生的です。

トイレ1回の洗浄水量がわずか4.8Lのトレイを採用し、従来の13Lから大幅に節水できるようになりました。手の洗いやすさにこだわり、タンク上の手洗いが大きく使いやすいタイプを採用。トイレスペースをすっきりと広く見せるために壁紙は白地で小花柄を選びました。

これまで洋室(2)があった部分を、ウォークスルークロゼットに変更しました。玄関、和室、リビング・ダイニングを結んだことで、お家の回遊性も高まり、使いやすい空間となりました。

玄関は洋室(2)の一部を玄関スペースに変更し土間を広げました。以前は暗く閉鎖的だった玄関は窓からの採光で明るく開放的になり、大型収納を壁面に設置することで靴や大きな荷物もすっきり片付けられるようになりました。
お客さまのご要望
- 閉鎖的なキッチンをオープンキッチンに変更にしたい
- 家事が効率よく行える動線にしたい
- 最新の水回り設備に変更したい
- 家の中の収納場所が分散しているため、解消したい
- 玄関土間をつくりたい
デザイナーからのコメント
Iさまは始めから「こうしたい」というリフォーム後の明確なイメージをお持ちでした。ご要望を踏まえ間取りや収納などの使い勝手を見直すとともに、インテリアも心から寛いでいただけるよう、お好みを反映しながらキッチンのペンダントライトやモスグリーンのアクセントクロスなどプラスαの提案をさせていただきました。また、水回り設備も単に交換するだけではなく、節水や清掃性を向上させる商品を採用しています。お客さまのイメージ以上のお部屋が完成しました。
お客さまの声
生活しやすい回遊動線に大満足です。私たちの希望に沿うようにと親身になって下さり、リフォーム後はとても快適に過ごしています。以前に比べて家事を効率的に行えるようになりました。また窓を開けると、どの部屋も風が通るように感じます。気持ちが良くとても気に入っています。
リフォーム/リノベーションデータ
家族構成
リノベーション後間取り
専有面積
施工期間
リノベーション費
築年数(リノベーション当時)
リノベーション箇所
- 内装
- フローリング
- 水回り
- キッチン、トイレ、洗面室、ユニットバス
- 造作家具・収納
- リビング収納、和室収納、洋室収納、玄関収納


