
慣れ親しんだ街で住み替えリフォーム
1988年築マンション
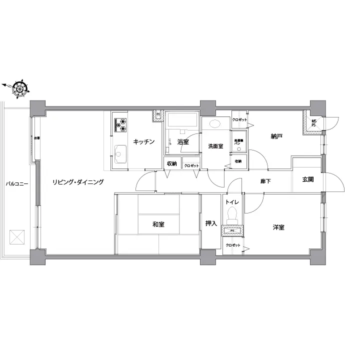
- 76.23㎡
- 2LDK+S
- 567万円(税込)
- 家族構成:3人
- 施工期間:約2カ月
以前は賃貸物件にお住まいになっていたSさま。旦那さまの定年を見据えて住み慣れたエリアで中古マンションを購入し、リフォームすることを決心されました。水回り設備は老朽化が進んでいたため最新のものに変更するとともに、床もカーペットからフローリングに変更。ご家族3人が住みやすいお部屋になりました。
リフォーム/リノベーションのポイント

床はカーペットからフローリングに張り替え、掃除がしやすくなりました。

障子の張り替え、クロスを張り替えることで美しく変身した和室。プラスチックの両面に和紙をラミネートした美しく丈夫な障子紙を採用しました。

キッチンは、ダークブラウンの面材から明るい色の面材を採用したことで明るい印象になりました。

タイル張りの浴室から白色を基調としたユニットバスに変更し清潔感のある印象に。

洗面台は三面鏡の取り出しやすいオープン棚タイプを新たに採用しました。陶器製の大型洗面器で、排水口回りのお手入れがしやすくなりました。

トイレもお掃除のしやすさにこだわりました。クロスも新しく変更し、明るくすっきりした印象に。
お客さまのご要望
- 最新の水回り設備に変更したい。
- カーペットからフローリングに変更したい。
デザイナーからのコメント
間取りの変更がなく、予算内でいかにご夫婦の期待を上回る提案ができるかが課題でした。水回り設備は家事負担軽減につながる商品を予算内でご提案し、キッチンの面材のカラーは空間をより広く感じられるようコーディネートをしました。
お客さまの声
住み慣れたこの街で賃貸物件から中古マンションを買って移り住もうと決意したことがリフォームのきっかけとなりました。物件を見た時は「大丈夫かな」と思った水回り設備や内装の劣化も、リフォームすることでとても綺麗になり、その変化に驚いています。希望の地域で、新しくなった部屋で生活していくことがとても楽しみです。
リフォーム/リノベーションデータ
家族構成
3人
リノベーション後間取り
2LDK+S
専有面積
76.23㎡
施工期間
約2カ月
リノベーション費
567万円(税込)
築年数(リノベーション当時)
33年
リノベーション箇所
- 内装
- フローリング
- 水回り
- キッチン、トイレ、洗面室、ユニットバス


