
ご夫婦お二人のための音楽を楽しめるお部屋
- 75.48㎡
- 2LDK
- 1,533万円(税込)
- 家族構成:2人
- 施工期間:約3カ月
おばあさまのお住まいを譲り受けることになったKさま。入居にあたって、和室を洋室に変更することと、近隣の方々に気を遣うことなく楽器の演奏ができる防音スペースを備えたお住まいにするため、リフォーム検討を始められました。インターネットでリフォーム会社を調べていたところ、オリコン顧客満足度®№1※1を取得した当社をご覧になりおまかせいただきました。和室を洋室にするだけではなく、将来お子さまが誕生された時にも子ども部屋として個室にもなる可動間仕切りをご提案。また室内の風通しの確保と家事が軽減される動線を考慮し、お部屋全体を回遊できるプランをご提案しました。「時間を気にすることなく楽器の練習ができるようになってとても嬉しいです」と新しいお住まいにとてもご満足いただいています。
- ※12020年 オリコン顧客満足度®調査 マンションリフォーム 第1位
リフォーム/リノベーションのポイント

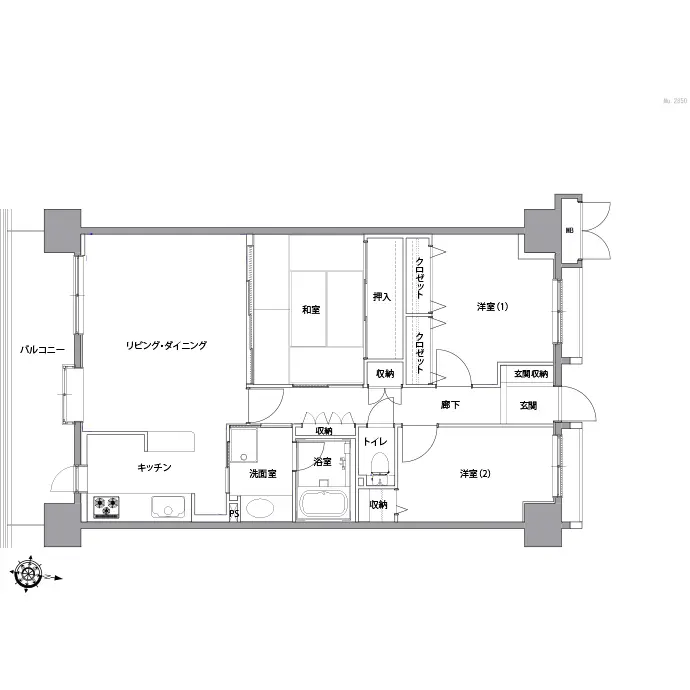
リビング・ダイニングに隣接していた和室は洋室にするだけでなく、用途によって使い分けられるよう、可動間仕切りを採用しました。閉めることで個室として使え、開けることでリビング・ダイニングが一続きの広い空間になります。お子さまが誕生したときには子ども部屋として利用することが可能です。また隣接するウォークスルークロゼットを引き戸にし、動線をつなげたことで風通しが良く、ベッドルームまで一直線で行き来することもできます。

以前の洋室(2)は音楽関係のお仕事をされているご夫婦のために防音スペースにしました。今まではカラオケボックスなどを借りて練習をしていましたが時間を気にすることなく、自宅でレッスンができるようになりました。●防音スペースのリフォームは完全に音を遮断できるものではありません。

洋室(1)をご夫婦の寝室としてプランニングし、押入れだったスペースにウォークスルークロゼットを新設しました。ご夫婦のお仕事の時間帯が異なる場合も、朝の支度がスムーズに行えお互いの生活リズムを崩すことなく過ごせるようになりました。

ウォークスルークロゼットの棚は、どこに何を収納するか、モノの置き場所、特等席を決め、収納するものに合わせて幅、奥行きを決めました。楽器や丈の長い衣装も収納することができます。

お料理をしながら旦那さまとお話をしたり、テレビを楽しむことができるように、壁付けキッチンから対面式キッチンに変更しました。また大容量の壁面収納により食器やキッチン回りの小物をすっきり収納することができるようになりました。

奥行きが少なくかつ機能的な洗面台をご提案しました。

浴室は1216から1418にサイズアップしました。ベージュの木目調のアクセントパネルを採用し温かく上品な浴室に仕上がりました。取り外しができる便利なカウンターを採用。お掃除もしやすくなりました。

トイレはタンクレストイレに変更し、すっきりとした印象に。小さなニッチを設け、小物を飾れる空間にしました。クロスはお部屋全体に合わせてベージュ系を採用。ナチュラルな印象にしました。

廊下は幅を広げて、大きな収納も新たに設えました。収納は奥行きがあり高さの調整もできるため、掃除機や日用品も収納することができます。

以前の洋室(2)の一部を玄関スペースに変更し土間を広げました。以前は暗く閉鎖的だった玄関が窓からの採光で明るく開放的になり、白色を採用したことで圧迫感がなくなりました。棚には靴を収納したり、写真を飾ることができます。照明は人感センサー付きのダウンライトを採用したことで、大きな荷物を持って帰宅した際も安心です。
お客さまのご要望
- 防音スペースをつくりたい
- 和室を洋室に変えたい
デザイナーからのコメント
若いご夫婦ですので将来の家族構成の変化にも対応した、作りこみすぎない住まいをご提案しました。部屋全体のイメージは「白を基調にすっきり」というお二人の希望もあって、床の色も明るい木目調に統一。アクセントクロスも数カ所に取り入れ、楽しく選んでいただきました。防音スペースも備えた、明るくて心から安らげる雰囲気の空間が完成しました。
お客さまの声
祖母の家を譲り受けることになり、インターネットでリフォーム会社を検索しイベントに参加しました。オリコン顧客満足度®№1※1を受賞されていたので、安心してお任せすることができました。リフォームで何ができるのかも全く分からない中、生活スタイルなどを細かくヒアリングしていただき、色々なアイディアをご提案していただきました。リフォームすることでこんなにも部屋が変わることにとてもびっくりしています。2人で音楽関係の仕事をしているので家で練習できるようになりとても嬉しいです。
- ※12020年 オリコン顧客満足度®調査 マンションリフォーム 第1位
リフォーム/リノベーションデータ
家族構成
リノベーション後間取り
専有面積
施工期間
リノベーション費
築年数(リノベーション当時)
リノベーション箇所
- 内装
- フローリング
- 水回り
- キッチン、トイレ、洗面室、ユニットバス
- 造作家具・収納
- 廊下収納、玄関収納、壁面収納、ウォークスルークロゼット
- その他
- 可動間切り、防音室


