
趣味の自転車は出し入れしやすい土間収納に
- 72.50㎡
- 2LDK
- 350万円(税込)
- 家族構成:2人
- 施工期間:約1カ月
築24年のマンションにお住まいのTさまご夫妻は、3年ほど前にキッチンと浴室をリフォームされました。しかしその後、ご夫婦共通の趣味である自転車の収納の不便さと古くなったトイレを新しくしたいというご要望から、あらためて弊社にご相談いただきました。そこで、自転車を置くのに便利な玄関横の土間収納や土間に直結するウォークスルークロゼットの新設などをご提案しました。動線が改善された自転車置き場は、使い勝手がよく、愛車の展示にもなっているので、訪れるお客さまにも好評とのことです。
リフォーム/リノベーションのポイント

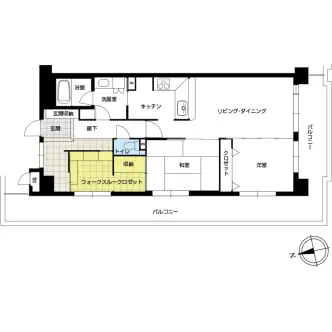
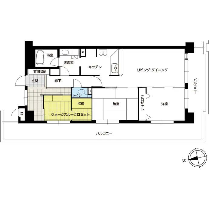
玄関横の洋室(1)を、趣味の自転車を手軽に置くことができるタイル張りの土間収納と、そこから直接入ることができるウォークスルークロゼットに変更。新設した土間収納により、汚れをあまり気にすることなく自転車を置けるようになりました。

リビング・ダイニングは、クロスの張り替えを行い、明るい印象のお部屋となりました。リビング・ダイニングに隣接する洋室は、戸襖を奥さまのお好きなブルーのクロスに張り替えました。

以前は自転車置き場に使っていた和室を寝室に変更。玄関の土間収納につながるウォークスルークロゼットを新設したので、リビング・ダイニングとの2方向から行き来できる動線となりました。和室とウォークスルークロゼットの間の襖は、和の雰囲気を残すため、それまであった物入の枠を再利用して設置しました。

ウォークスルークロゼットには、自転車用品をはじめ衣料品や書籍なども余裕をもって収納できるようになりました。廊下、自転車置き場、ウォークスルークロゼットには、LEDダウンライトを新設。一部のダウンライトは人感センサー付きとして、使い勝手に配慮しています。

襖や障子、扉などの建具には、和モダン風のデザインを取り入れました。障子は、和紙を塩化ビニール樹脂で両側からラミネートしたワーロン紙を採用。伝統的な和紙の素材感をもちながら、強度があり破れにくい障子紙です。

トイレは、節水性能の高い最新型に交換しました。トイレのリモコンや新設した手すりなども使いやすい位置に設置しています。
お客さまのご要望
- 趣味の自転車を和室に置いているが、出し入れが大変なので、玄関近くに格納したい。
- 収納を増やしたい。
- トイレを新しいものに替えたい。
デザイナーからのコメント
ロードバイクやミニベロといった自転車を趣味とし、愛されているTさまご夫妻。リフォームプランの検討中にも、SNSなどで調べた自転車置き場のアイデアやインテリア・デザインなどについて熱心なご相談をいただきました。そのお気持ちに応えようと提案したプランは、回遊性のある間取りとすることで、自転車置き場の使い勝手はもちろん、住戸全体の暮らしやすさを向上させようというものでした。襖や障子を活かした和モダンなデザインにもご満足いただけたようで、嬉しく思いました。
お客さまの声
玄関横に土間収納をつくったのですが、それに関連して土間の幅が約60cm広がったことによる視覚的な効果は、想像以上のものでした。住戸の面積は変わらないのに、まるで広い家になったような印象で、とても気に入っています。また、寝室(和室)につながるウォークスルークロゼットの新設で、寝室(和室)から2方向への出入りが可能になりました。就寝中のパートナーに気を遣うことなく出入りできるようになりました。
リフォーム/リノベーションデータ
家族構成
リノベーション後間取り
専有面積
施工期間
リノベーション費
築年数(リノベーション当時)
リノベーション箇所
- 内装
- タイル
- 水回り
- トイレ
- 造作家具・収納
- 玄関収納


