
整理された空間で気持ち良く過ごす、二人それぞれの趣味の時間
- 85.44㎡
- 3LDK
- 715万円(税込)
- 家族構成:2人
- 施工期間:約3カ月
Aさまご夫妻が、新築マンションを購入されてから37年。壁や床などの傷みと汚れが気になってきたというのが、リフォームを思い立たれた理由でした。ご相談を受け、クロスやフローリングの張り替えだけでなく、長年更新されていなかった水回り設備一式の交換と、これまで主に収納スペースとして使われていた2つの和室をご夫妻それぞれの趣味の部屋として使いやすい部屋に変えるプランを提案しました。クロスやフローリングなどは、Aさまお好みの色に一新され、明るい印象のお住まいに。さらにご夫妻が、これからお好きな音楽など、自分の時間を存分に楽しめる空間も確保することができました。
リフォーム/リノベーションのポイント

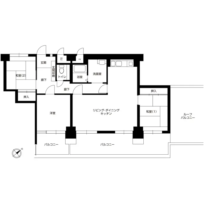
洋室(1)は和室から変更し、旦那さまの趣味の部屋に。お気に入りのオーディオ・セットを置くため、押入をなくし、床を広げました。広くなった空間で、デスクワークもしやすくなりました。

洋室(2)は玄関横の和室から変更し、奥さまの趣味の部屋としました。新たに梁下のスペースを利用して壁面収納を設置し、収納力を向上。従来からあった押入も、壁面収納とデザインを合わせた扉に変更しました。旦那さま、奥さまの趣味のお部屋は、お二人お気に入りのブルー系のクロスで統一しています。

リビング・ダイニング・キッチンは、暗い色だったフローリングを明るい色のものに張り替えました。さらに、白い壁クロスに変更したことで、お部屋全体が明るく感じられるようになりました。システムキッチンの面材には、奥さまのお好きなグリーンを取り入れました。

キッチンは、最新のレンジフードを備えたシステムキッチンに交換。IHコンロを採用することにより、お手入れもしやすくなりました。

浴室は最新のユニットバスに交換。使いやすさはもちろん、掃除のしやすさにもこだわり、フラットな形状の水栓やカウンターなどを選びました。アクセントパネルは、お好みのグリーンに。

洗面台は一面鏡タイプのものから、鏡裏に小物収納のある三面鏡タイプに交換。さらに、洗面台横にはトールキャビネット、洗濯機上部にもキャビネットを新設し、収納を充実させました。

トイレは、手洗い器の付いたキャビネットタイプに交換し、サイドカウンターの上部に収納を設置。すっきりと整理された空間になりました。またクロスは、お二人で選ばれた柄のあるものを採用しました。

廊下はカーペットからフローリングに張り替えました。玄関収納は下足入れのほかに、大型の姿見を備えたトールキャビネットを新設して収納を拡充。さらに、和室をフローリングの洋室にしたことで廊下との段差もなくなり、移動や掃除がしやすくなりました。
お客さまのご要望
- 押入にしまいきれなかった物の収納部屋となっていた和室を、普段使える居室にしたい。
- 水回り設備の交換とともに、システムキッチンをIHコンロにしたい。
- 古くなったクロスと床を張り替えたい。
デザイナーからのコメント
新築時にマンションをご購入されてから、ほとんどお部屋のリフォームをされていなかったので、すべての水回り設備を最新のものに交換することから、ご提案を始めました。打ち合わせを進める中で、新たなご要望もいくつかいただきましたが、それらを吸収し提案を重ねていくことで、ご満足いただけるリフォームを行うことができたと思います。お二人とも多彩な趣味をお持ちなので、リフォームしたそれぞれの個室で趣味を存分に楽しみ、仲良く生活されている光景が思い浮かびます。ご縁をいただきまして、ありがとうございました。
お客さまの声
お部屋全体のクロスを変更したことで、家の中が明るい印象になりました。好みの色に一新された水回りも気に入っています。また、廊下と居室を全てフローリングに替えたのでお掃除がとてもしやすくなりました。宮川さんから、快適な住まいづくりのためのアドバイスや提案をいただき、またいつも親身になって対応してもらえたことに感謝しています。
リフォーム/リノベーションデータ
家族構成
リノベーション後間取り
専有面積
施工期間
リノベーション費
築年数(リノベーション当時)
リノベーション箇所
- 内装
- フローリング
- 水回り
- キッチン、トイレ、洗面室、ユニットバス
- 造作家具・収納
- 洋室収納、玄関収納


