
キッチンに立つ時もリビングで寛ぐ時も、明るく快適に過ごせる空間に
- 56.74㎡
- 1LDK
- 614万円(税込)
- 家族構成:1人
- 施工期間:約1カ月
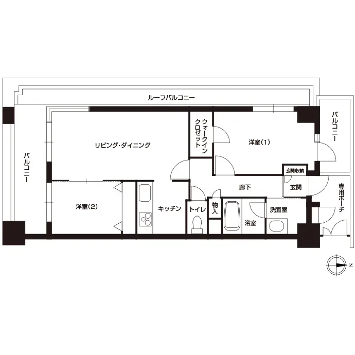
23年前に新築マンションを購入されたNさま。当初の間取りは、キッチンが個室になっている独立型だったので、暗く狭い印象をお持ちでした。明るく広がりのあるキッチンにしたいとご相談をいただいたことからリフォームがスタート。キッチンとリビング・ダイニングに隣接した洋室をなくし、リビング・ダイニング・キッチンとすることで、対面式のキッチンが実現しました。前面の壁が取り払われたキッチンは、日差しの差し込む明るく開放的な空間へと生まれ変わりました。
リフォーム/リノベーションのポイント

リビング・ダイニングの横にあった洋室(2)の壁を取り払い、リビング・ダイニング・キッチンとしました。大きな窓が増え、明るく開放的な空間になりました。

システムキッチンの収納は引き出し式で、奥に入れた物も取り出しやすくなりました。さらに、リビング・ダイニング側のカウンター下にも引き出し収納があり、収納力は充分。ワンタッチ水栓や除菌機能もあり、衛生面にも配慮したものを採用しています。

システムキッチンに合わせ、リビング・ダイニング・キッチンのフローリングも、明るいナチュラルな色のものに張り替えました。クロスも白いものに替え、明るいイメージに。さらに、照明はすべてダウンライトに統一しました。
お客さまのご要望
- 独立型のキッチンをオープンキッチンにしたい。
- 洋室をなくして、リビング・ダイニングを広げたい。
- 収納スペースに使っていた洋室(1)を寝室として使えるようにしたい。
デザイナーからのコメント
Nさまは、リフォームでやりたいことが明確で、ご予算についてもしっかりお考えでした。ご提案したキッチンや照明なども、メーカーショールームで実物をご確認いただいたのでイメージがさらに明確になり、お打ち合わせはスムーズに進めることができました。また、リビング・ダイニングの拡張部分で行なった床暖房の増設工事では、配管の状態によって工事できない場合があることや工事費が上がる可能性があることをご説明したうえで、配管確認作業を行いましたが、幸い問題なく工事することができ、快適なリビングとするための提案を実現することができました。
お客さまの声
カウンターキッチンにして明るくなりました。テレビを見ながら料理ができるのも気に入っています。実際に打ち合わせを進めていくと、クロスやフローリング、キッチン面材、巾木の色決めなど確認する事項が意外に多く迷ってしまうことが多々ありました。プランナーさんがおすすめのコーディネイトを提案してくれたので、選びやすかったです。
リフォーム/リノベーションデータ
家族構成
リノベーション後間取り
専有面積
施工期間
リノベーション費
築年数(リノベーション当時)
リノベーション箇所
- 内装
- フローリング
- 水回り
- キッチン
- その他
- 床暖房


