
明るいキッチンを実現し、用途に合わせて各種の収納を増やした住まい
- 67.32㎡
- 3LDK
- 1,297万円(税込)
- 家族構成:2人
- 施工期間:約2カ月
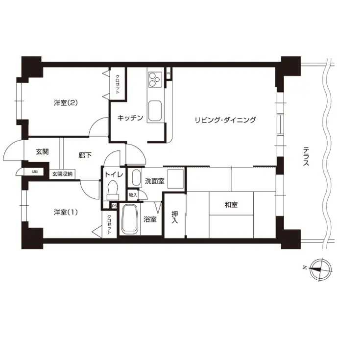
築28年のマンションにお住まいのSさまご夫妻。水回り設備の老朽化が気になり始め、リフォーム相談会に参加されました。そして、この機会に水回り設備だけでなく、気になる部分をすべてリフォームしようと決心されました。そこで、暗かったキッチンの入口の壁を取り払うこと、リビング・ダイニングと洋室の間は用途で使い分けられるよう可動間仕切りにするというご提案をし、明るく開放的なキッチンとリビング・ダイニングにすることができました。そのほか、ご夫妻ご愛用のゴルフバッグ置き場やリモートワークに使えるお部屋の確保といったご要望にも造作家具の提案などで対応。また、インテリアも石目調のアクセントクロスを活用して、統一感がありながら変化に富んだデザイン性の高い空間を実現。お二人のライフスタイルに寄り添いつつ、イメージを一新したお住まいとなりました。
リフォーム/リノベーションのポイント

リビング・ダイニングは、ナチュラルな色合いのフローリングと落ち着いたブラウンの建具としました。リビングのテレビボード上部と寝室の壁には、明るい色調のエコカラットを採用。テレビボードはリビングの壁幅いっぱいに設置して収納力を確保しています。寝室となる洋室(3)をオープンにすると、さらに広々としたリビング・ダイニングとなります。

和室は、寝室としてベッドを置くため洋室(3)へと変更。普段は隣接するリビング・ダイニングの一部としてオープンに使えるようにしました。また、部屋のコーナーには可動式の収納棚を新たに設けました。押入はクロゼットに変更し、建具の色もリビング・ダイニングの収納に合わせた濃いブラウンとしました。

キッチンは、最新のシステムキッチンに一新。キッチン入口にあった壁を取り払ったので、明るく開放感のあるキッチンが実現しました。対面側のカウンター下部にも収納があり、キッチン背面にカップボードを新設するなど、収納力も高めました。

玄関横の洋室(2)は、奥さまのお部屋としてリフォーム。クロゼットの奥行を増やして収納スペースを確保し、ワークスペースとして活用できるようカウンターを造作。お客さまがいらしたときは客間としても使えるようにしました。石目調のアクセントクロスが、お部屋の印象を引き締めています。

洋室(1)には、収納部屋として使えるよう工夫を凝らしました。棚とハンガーパイプのある建具付きのクロゼットのほか、お気に入りの洋服を「見せる収納」としてディスプレイできるオープンクロゼットも新設。さらに天井には、雨の日の室内干し用に物干を設置しました。

玄関の収納は、下足入れや吊り戸棚だけでなく、ご夫妻共通の趣味であるゴルフのバッグを格納できるスペースも確保しました。

廊下に新設した収納には、ロボット掃除機の充電ステーションも設置。ドア下にすき間を設け、ドアを閉めたまま掃除機が自動で出入りできるようにしました。

洗面室は、トール型の収納ボックスを新設して収納力をアップ。また最新の白を基調とした洗面化粧台に交換し、爽やかな印象を演出。

浴室は、入口の段差をなくしてバリアフリー性を向上。また、浴槽を1216から1317へサイズアップし、更に浴室暖房乾燥機を新設することで快適性・利便性を高めました。アクセントパネルの石目調は、シックなラグジュアリー感を演出。

トイレは、便器の取り替えのほかクロスの張り替えも行い、白を基調としながらも大胆なアクセントクロスを採用。吊り戸棚も新設し、収納力と使い勝手を向上させています。
お客さまのご要望
- 水回り設備を新しくしたい。
- キッチンを明るくしたい。
- 浴室の段差を解消したい。
- 和室を寝室としていたが、ベッドが置けるよう洋室にしたい。
- 収納を増やしたい。特にご夫妻共通の趣味であるゴルフバッグを置きやすいスペースが欲しい。
- リモートワークに使える部屋を確保したい。
デザイナーからのコメント
明るいキッチンを求められていたSさま。提案させていただいたのは、それに加えて、リビング・ダイニングと隣接する寝室も一体的にリフォームし、開放的で使いやすい空間にすることでした。また、リモートワークができ、客間としても使えるお部屋がほしい、ご夫妻共通の趣味であるゴルフバッグを使いやすい場所にしっかり収納したいといったご要望もありました。そうしたご夫妻のライフスタイルをお伺いしながらプランを作成し、日常を少しずつ楽にするための仕掛けをちりばめました。さまざまな工夫を凝らすなかで印象的だったのは、ロボット掃除機の充電ステーションを設置した廊下収納のドアです。ドア下のすき間サイズは、掃除機が出入りできるよう、いくつか試したうえで決定したものです。さまざまなご提案を採用いただいたことで、機能的な住空間が実現できたと思います。
お客さまの声
当初はキッチンの暗さを解消するため、キッチン位置の変更を検討していたのですが、プランナーさんの提案で、キッチンの位置はそのままに明るく開放的なキッチンとすることができました。リフォームが完成してみると、大きく間取りを変えなくても部屋の印象はこんなに変わるんだなと驚きました。設備が一新され、気持ちよく生活できそうです。そして、各室に増えた収納は使い勝手もよく、とても満足しています。
リフォーム/リノベーションデータ
家族構成
リノベーション後間取り
専有面積
施工期間
リノベーション費
築年数(リノベーション当時)
リノベーション箇所
- 内装
- フローリング
- 水回り
- キッチン、トイレ、洗面室、ユニットバス
- 造作家具・収納
- リビング収納、洋室収納、玄関収納、カウンターデスク


