
インテリアカラーにこだわった開放的な住まい
- 65.03㎡
- 3LDK
- 741万円(税込)
- 家族構成:2人
- 施工期間:約2カ月
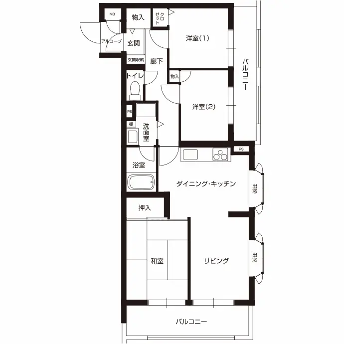
27年前に中古でマンションを購入されたSさまご夫婦は、ご自宅で過ごす時間が増えたことから、カーペットや水回り設備の劣化が目につくようになりリフォームをご決断。最新の水回り設備への変更と、明るく開放感のある住まいをご希望されました。まずは、全室フローリングに張り替え、和室を洋室(1)に変更。リビングとの間の壁を撤去し、ご夫婦の思い入れのある柱は残したまま、開閉可能なアコーディオンカーテンを設置することで開けるとダイニング・キッチン、リビングと一続きになった明るく広い空間に。また、キッチンやクロスは、ご夫婦それぞれのお好みのカラーにこだわりインテリアも楽しめる住まいが完成しました。
リフォーム/リノベーションのポイント

ダイニング・キッチンのクッションフロアと、リビングのカーペットをフローリングに張り替えることで、ダイニング・キッチン、リビングが一続きになりました。

奥さまの寝室として使用する洋室(1)は、和室をフローリングにし、リビング側の壁を撤去してアコーディオンカーテンを設置することで、開けるとリビングの窓から気持ちの良い眺望が楽しめるようになりました。

ご主人の寝室として使用する洋室(3)は、フローリングとクロスを張り替えました。空をイメージしたブルーのクロスで爽やかな印象になりました。

洋室(2)には、両側の壁面にホスクリーン(室内用物干し)を新設して衣類を掛けられるように設えました。

キッチンは最新設備に一新。白を基調としたインテリアのアクセントになるよう、カラーは赤を採用しました。

浴室は最新のユニットバスに変更。床材は乾きやすいタイルを採用して手入れがしやすくなりました。また、洗面室と浴室の段差をなくしてフラットにしました。

洗面化粧台は収納の少ない一面鏡から、収納力のある三面鏡タイプに変更。洗濯機の上の棚も新設しました。クロスは奥さまがお好きなブルーを採用しました。また、洗面室入口の扉は折れ戸から引き戸に変更し、使い勝手がよくなり廊下の動線がすっきりしました。

トイレはクロスを張り替えました。ピンクベージュのストライプを採用してやさしい雰囲気に。

玄関は、玄関収納を撤去して広いスペースを確保。玄関に隣接する物入れに新たにハンガーパイプを設置し、上着などもしまえるようになりました。また、ブルーのクロスと、玄関の湿気を抑えるためのエコカラット※1をアクセントとして施しました。さらに将来を見据え、手すりも新設しました。
- ※1エコカラットとは、LIXILの機能性建材(調湿素材)の商品です。
お客さまのご要望
- 居室のクッションフロアとカーペットをフローリングに張り替えたい。
- 明るく開放感のある住まいにしたい。
- 玄関を広くしたい。
- 好きなカラーにこだわったお部屋にしたい。
- 水回り設備を一新したい。
デザイナーからのコメント
明るい雰囲気のお部屋をご希望されていたので、全体のバランスを考慮しながらご夫婦がお好きな色柄のクロスを取り入れました。また、水回り設備はシンプルなものを採用して手入れのしやすさにこだわりました。ご満足いただけてうれしく思います。
お客さまの声
お部屋に取り入れたかったインテリアのアクセントカラーは、自分ではつい派手なものを選びがちでしたが、プランナーの方が全体のバランスを見てコーディネートしてくれました。床の張り替え工事の際にマンションの躯体も確認でき、構造がしっかりしていると教えていただき安心しました。リフォームをしたことで、住環境や眺望が良い大好きな我が家で心地よく過ごすことができるようになりました。外出をしていても早く家に帰りたいと思うほどです。この幸せは今回のリフォームに関わっていただいた方が誰一人欠けても叶わなかったことです。本当に感謝しています。
リフォーム/リノベーションデータ
家族構成
リノベーション後間取り
専有面積
施工期間
リノベーション費
築年数(リノベーション当時)
リノベーション箇所
- 内装
- フローリング、エコカラット
- 水回り
- キッチン、トイレ、洗面室、ユニットバス


