
キッチンを中心とした動きやすい回遊動線を導入。一人暮らしを楽しめる住まいに
- 93.00㎡
- 3LDK
- 1,298万円(税込)
- 家族構成:1人
- 施工期間:約2カ月
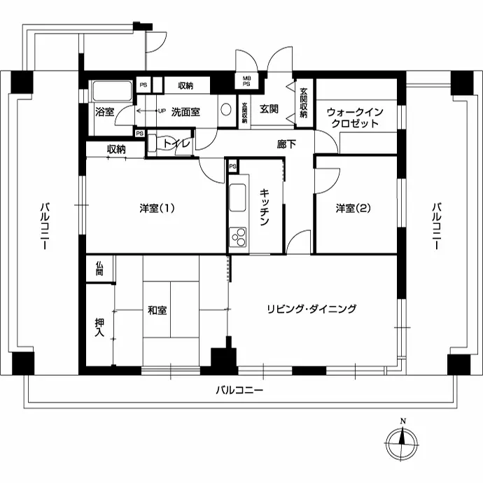
現在のマンションを34年前に新築で購入されたTさま。お子さまは独立され、一人でお住まいになる3LDKの住戸を開放的で使い勝手良く暮らせるようにリフォームしたいとご相談いただきました。古くなった水回り設備の交換と暗かったキッチンをオープンな対面式にしたい、リビング・ダイニングも広くしたいというご要望に対し、キッチンの変更とともに洋室(2)をなくしリビング・ダイニングを広げるプランをご提案。さらに、各お部屋を行き来しやすくする回遊動線の導入と収納スペースの拡充も行いました。動きやすい生活動線、余裕のある収納が実現し、一人暮らしを快適に楽しめるリフォームが完成しました。
リフォーム/リノベーションのポイント

Tさまのお稽古事の生徒が集まることもあるリビング・ダイニングは、以前の洋室(2)と廊下の一部のスペースを一続きにすることで、広々とした開放的な空間になりました。また、冬場の足元の冷え対策として、床暖房を新たに設置しました。

広くなったリビング・ダイニングの一角には、テレビボードと棚、吊戸棚を新たに設置しました。

リビング・ダイニングと隣接した和室は、建具を格子の引き戸に替えました。格子にすることでリビング・ダイニングからの光も入り、建具を閉めても明るいお部屋となりました。襖や屏風の模様、格子戸といった和の雰囲気に合わせ、柱の表面にも縦模様の羽目板を採用しました。

寝室として使う洋室(1)、和室との間に引き戸を新設することで、廊下を通らなくてもリビング・ダイニングに行ける動線を確保しました。床の一部にはフロアマットを敷き、足の滑りを抑えるよう配慮しました。天井と草模様のクロスの色には、ブルーをアクセントとして採用しました。

独立型だったキッチンは対面式にして開放感を高め、最新のシステムキッチンを採用しました。システムキッチン背面のスペースには、食器棚を新たに設え、収納スペースは格段に増えました。また、キッチンの天井には木目調の化粧板、システムキッチンのリビング・ダイニング側には木製の化粧板を採用し、ナチュラルで暖かみのある空間としました。

廊下には新たに収納を設えました。姿見付きなので、外出時などに手軽に身だしなみを整えることができます。

洗面室をより広く使えるよう、洗面化粧台の位置を変更し、新しく大きな洗面化粧台に替えました。カウンターが広くなり、使い勝手も向上しました。

トイレは最新の設備に交換し、手洗い器、カウンター、手すり、を新設して使い勝手を向上させました。また幾何学模様のエコカラット※1も設置しました。トイレスペースは幅、奥行ともに広げ、トイレ内の動作がしやすいように、扉を内開きから外開きに変更しました。
- ※1エコカラットとは、LIXILの機能性建材(調湿建材)の商品です。

玄関は、2カ所あった玄関収納を1カ所にし、座って靴の脱ぎ履きなどができる木製ベンチを造作しました。また、立ったり座ったりといった動作がしやすいよう、手すりも新設しました。白一色の壁面が視覚的に単調にならないよう、アクセントとしてエコカラット※1を設置しています。
- ※1エコカラットとは、LIXILの機能性建材(調湿建材)の商品です。
お客さまのご要望
- 古くなった水回り設備を新しくしたい。
- 一人暮らしに合った間取りにしたい。
- リビング・ダイニングを広くして、床暖房を入れたい。
- 開放的で明るいキッチンにしたい。
デザイナーからのコメント
Tさまの日ごろの生活の様子を詳しくヒアリングさせていただき、その内容を踏まえ、どのようなお部屋になったら暮らしやすくなるのかを考慮し、プランニングしていきました。また、自分の母親が老後に一人暮らしをするなら、どんな間取りなら住みやすいだろうかといった視点からもプランを検討しました。それらの提案が実現し、お喜びいただけたことを本当に嬉しく思います。
お客さまの声
長い間住み慣れた我が家で、私なりの生活習慣もあります。また、生徒さんが遊びに来ることもありますし、親戚で集まることもあります。そうした、暮らしの隅々にいたるまで考慮して、リフォームの提案をしていただけたことに感謝しています。リビング・ダイニングを広くしキッチンを開放的にすること、水回り設備の交換や床暖房の設置をしたいという要望以外は、インテリアのデザインやお部屋ごとに違う色づかいまで含めて、すべてプランナーさんにお任せしたことでとても素敵なお部屋になりました。
リフォーム/リノベーションデータ
家族構成
リノベーション後間取り
専有面積
施工期間
リノベーション費
築年数(リノベーション当時)
リノベーション箇所
- 内装
- フローリング
- 水回り
- キッチン、トイレ、洗面室、ユニットバス
- 造作家具・収納
- リビング収納、和室収納、洋室収納、廊下収納、玄関収納
- その他
- 床暖房


