
自然を感じられるインテリアに囲まれた、自分だけのお気に入り空間
- 77.40㎡
- 3LDK
- 569万円(税込)
- 家族構成:2人
- 施工期間:約1カ月
お子さまと二人暮らしのOさまは、定年を機にご自身へのご褒美として、リフォームを決意されました。「今までは子育てや仕事が中心だったが、これからは自分の時間を心地の良い空間で過ごしたい」という思いからでした。「リビング・ダイニングを、森の中に住んでいるような空間にしたい」というご希望から、自然を感じられるようなインテリアにこだわったプランをご提案。豊かな時間を過ごせる、心地の良い空間が完成しました。
リフォーム/リノベーションのポイント

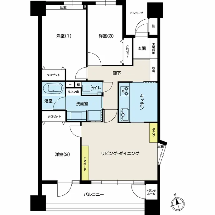
リビング・ダイニングは、天井のクロスを白、壁のクロスを淡いグレーとして、明るさを保ちつつ落ち着いた雰囲気としました。リビング側には、ソファでもダイニングテーブルからでもテレビが見やすい高さに調整したテレビボードを造作。さらに自然の風合いのあるエコカラットプラス※1を採用し、植物などを飾れる棚も設置しました。
- ※1エコカラットプラスとは、LIXILの機能性建材(調湿素材)の商品です。

リビング・ダイニングには、Oさまが自分のための時間を過ごせるよう読書などに使えるデスクを造作。デスクの上部の壁面には、お気に入りの小物を並べる棚を設置しました。また、アクセントクロスは、Oさまが選ばれた木の柄のクロスにしました。

ステンレス製だったキッチンを、Oさまがお好きな淡いブルーのシステムキッチンに交換。白い天板を採用することで明るいキッチンになりました。

洗面室は木目調の洗面化粧台を採用。洗面室の湿気対策として室内窓を設置し、換気だけでなくリビング・ダイニングからの光も取り入れた明るい空間になりました。さらに、植物の鉢などを置ける棚も設けました。

浴室は最新のユニットバスに交換。リビング・ダイニングの壁面のクロスに合わせて、グレーのアクセントパネルを採用しました。

トイレは既存の吊戸棚を残して最新設備に交換し、手洗いカウンターを新設。また、Oさまが選ばれた鳥や花をあしらったクロスを大胆に取り入れ、愛らしい雰囲気を演出しました。
お客さまのご要望
- 古くなった水回り設備を一新したい。
- 自分一人の時間を心地よく過ごせるリビング・ダイニングにしてほしい。
- 自然を身近に感じられるようなインテリアにしたい。
- 洗面室の湿気を解消したい。
- 建具、間取りはできるだけ変えない。
デザイナーからのコメント
Oさまはお好みがはっきりされていたので、Oさまの理想の生活をイメージしながらリビング・ダイニングを中心に素敵な空間になるようプランを構築していきました。また、プランをご提案した際には、長くご満足いただける心地の良い空間を実現するよう心掛けました。
お客さまの声
これからの人生を楽しみたいという私の思いを汲み取ったプランを提案してくださり、満足のいくリフォームになりました。植物を飾れる棚や自然を感じるクロス、お部屋の雰囲気に合ったデスクなど大変気に入っています。プランナーさんが私の好みを把握してくださり、リフォームだけでなく家具についてもアドバイスをいただけるなど、さまざまな相談にのってもらえたのもよかったです。
リフォーム/リノベーションデータ
家族構成
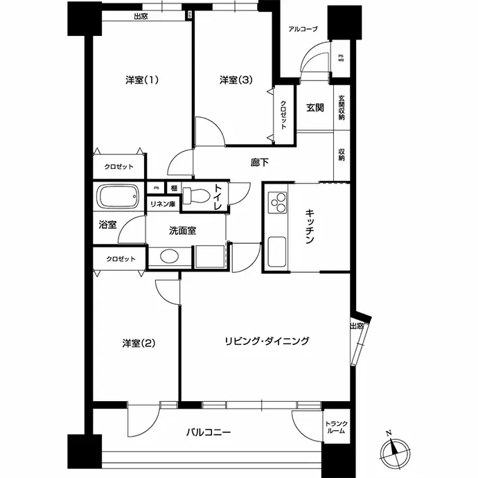
リノベーション後間取り
専有面積
施工期間
リノベーション費
築年数(リノベーション当時)
リノベーション箇所
- 内装
- フローリング、エコカラット
- 水回り
- キッチン、トイレ、洗面室、ユニットバス
- 造作家具・収納
- テレビボード


