
音楽が楽しめる和モダンのお住まい
- 93.66㎡
- 3LDK
- 2,188万円(税込)
- 家族構成:3人
- 施工期間:約2カ月
Iさまは、ご夫妻とお子さまの3人家族。ピアニストである奥さまのため、いまお住まいのマンションに、ピアノを置くことができる大きな防音室をつくりたいとリフォームを希望されました。さらに中学生になったお子さまに一人部屋を確保したい、また、生活感を感じさせないインテリアに統一したいなどのご要望もありました。そこで、しっかりした防音室の設置やお子さまのお部屋の確保はもちろん、和のテイストを取り入れたホテルライクなインテリアデザインも含むフルリフォームプランをご提案。クロスや照明のセレクト、壁の造作などにもこだわり、洗練され落ち着いたしつらえのお住まいが完成しました。
リフォーム/リノベーションのポイント

リビング・ダイニングは、ナチュラルで明るいメープルタイプのフローリングを採用。建具は重厚なダークブラウンとし、床と建具のコントラストが立体感や奥行感を感じさせるよう演出しました。引き戸を開けるとリビング・ダイニングと和室は一続きの広い空間として使えます。

キッチンは、最新の設備に変更し、新たに食器棚も設置。食器棚の面材は、キッチンと色を合わせたシックなブルーとし、統一感のあるカラーコーディネートをしました。食器棚の下部は、既存のワインセラーが組み込めるよう造作しています。

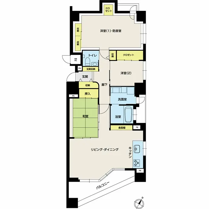
防音室はグランドピアノと電子ピアノが置けるように洋室(1)(2)を一続きにした広い空間を確保しました。防音工事に多くの実績があるヤマハのアビテックス※1を採用し、ピアノの重量に耐えるよう床も補強しました。●管理規約に則って施工しています。●防音室のリフォームは完全に音を遮断できるものではありません。
- ※1「アビテックス」はヤマハの防音室の商品名です。

洋室(2)は、お子さまのお部屋です。床は湿気対策になり、お手入れもしやすいコルク材を採用しました。廊下に面した壁には、外からお部屋の雰囲気がわかるよう、円形の明かりとりを設置しています。

ご夫妻の寝室となる和室は、生活感を抑え、和モダンのホテルライクな空間としました。畳は縁のない琉球畳を採用し、すっきりとしたイメージに。また、新たに床暖房を設置し、寒い夜も快適に過ごせるようにしました。

洗面室は、洗面化粧台と洗濯機パンの位置を入れ替えることで、天井まで高さのある新しい洗面化粧台に変更し、すっきりと収めることができました。さらに、姿見付きのトールキャビネットも新設。床とクロスはピンク系を採用することで、明るく華やかに演出しました。

浴室は、最新のユニットバスに交換し、木目調のアクセントパネルを採用。入口の建具は、洗面室に人がいる場合でも出入りのしやすい引き戸に変更しました。

トイレはスペースを広げ、鏡と洗面台を新設。ゆとりのあるホテルライクな空間としました。壁を装飾する幾何学模様のタイルやグリーンのアクセントクロス、照明などにもこだわり、柔らかな雰囲気を演出しています。

玄関は、衣類などを収納できるスペースを新たに設けました。玄関と廊下のコーナーは、アールデコを意識したデザインタイルを採用。優雅な曲面を描くレトロモダンな壁としました。
お客さまのご要望
- ピアノが弾ける大きな防音室がほしい。
- 洋室(3)を子どもが一人で使う部屋にしたい。
- 水回り設備を一新したい。
- 寝室として使う和室に床暖房を入れたい。
デザイナーからのコメント
Iさまのご希望をお聞きし、全体のデザインは、高級ホテルのように生活感を抑えた落ち着きのあるものというコンセプトでプランをご提案しました。床の間をイメージして樹皮付きの無垢材カウンターを置いた和室のしつらえや洗面室のタイルとアクセントクロスの色づかいなどに、和モダンなデザインへのこだわりが感じられると思います。Iさまは、ご案内したショールームでも熱心に部材選びなどをされる、こだわりをお持ちのお客さまでした。お任せいただいたインテリアデザインやカラーコーディネートにもお喜びいただけ、うれしく思います。
お客さまの声
ピアノが演奏できる大きな防音室をつくりたい、というところから始まった今回のリフォームですが、プランナーさんは私たちの好みや希望をよく理解して、防音室の設置だけではなく、上質なインテリアに囲まれてゆっくりと暮らせる、気持ちの良い空間を提案してくださいました。息子の一人部屋がきれいにできたこともうれしかったです。フルリフォームしたことで、私たちが望んでいた生活感を抑えた印象の家に生まれ変わり、とても満足しています。
リフォーム/リノベーションデータ
家族構成
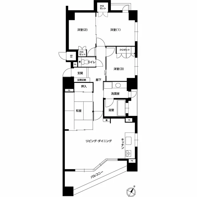
リノベーション後間取り
専有面積
施工期間
リノベーション費
築年数(リノベーション当時)
リノベーション箇所
- 内装
- フローリング、クロス張り替え
- 水回り
- キッチン、トイレ、洗面室、ユニットバス
- 造作家具・収納
- 和室収納、洋室収納
- その他
- インナーサッシ・内窓、可動間切り、畳コーナー、防音室


