
ゆったりとした生活を実現させる、二人のこだわりの住まい
- 70.62㎡
- 2LDK
- 1,750万円(税込)
- 家族構成:2人
- 施工期間:約3カ月
26年前に新築でマンションを購入されたNさまは、お子さまの独立をきっかけに、ご夫婦お二人でゆったりと暮らせる空間に変えたいと、全面リフォームを決心されました。水回り設備を最新にしたい、リビング・ダイニングをより明るく開放的にし、オーディオを存分に楽しめるスペースにしたい、またキッチンをオープンキッチンにしたいというご要望から、キッチンの配置 の変更、全室の天井を高く上げるプランをご提案。夫婦それぞれのお部屋にインナーサッシを設けることで、寒かった個室も過ごしやすくなりました。互いの時間を過ごしつつお二人でゆったりとくつろげる、こだわりの住まいが完成しました。
リフォーム/リノベーションのポイント

洋室(3)をリビング・ダイニングと一続きの広い空間にし、広げた部分にも床暖房を新設しました。さらに天井の高さを上げることで室内をより広く感じられるように。天井には空気の循環を良くするためにシーリングファンを取り付けました。また照明は、ダウンライトと間接照明でやわらかい印象に。ご主人さまこだわりの大型テレビも、配線を壁に隠してすっきりと設置しました。

キッチンは向きを変更し、オープンな対面キッチンに変更することで明るく開放的になりました。キッチンの背面スペースには新たにパントリーを設けることで、収納力が向上しています。さらに、お手持ちのカップボードのテイストと合わせて、お気に入りのカップや小物などを飾れる棚も設えました。

ご主人さまの部屋となる洋室(1)には、ご希望だったプロジェクターを設置。天井へ格納できる電動式スクリーンを、クロゼット前に取り付けました。スピーカーなどの機材の配線も、床下や壁の中に隠すことで、すっきりとさせました。

外廊下からの音が気になる洋室(1)・(2)の窓には防音効果のあるインナーサッシを設置。洋室(1)の入り口は、引き戸に変更しています。

洗面化粧台は収納力のある三面鏡タイプに変更。壁面には可動式の棚を新設しています。水色のクロスを採用することで爽やかな印象に。

浴室はゆったりと入れる肩湯機能が付いた浴槽に、ミストサウナも新設。LEDライトが内蔵されたカウンターは明るさも調節できます。アクセントパネルはお部屋のインテリアと合わせて、木目調を採用しました。

トイレは最新のものに交換し、新しく手洗いカウンターを設置しました。壁はポップな色合いの、グリーンのクロスを選びました。

玄関はたたきを拡張し、広々とした空間に。また、玄関収納も収納力のある大きなものを採用しました。フロートタイプで、ふだん履く靴はすぐに出し入れができるようになっています。

廊下の収納は、ロボット掃除機が出入りできるように扉の下を空けました。コンセントも設置して、充電できるようになっています。

パントリーと洋室(1)のクロゼット内のクロスは、プランナーがNさまご夫婦をイメージしたクロスを採用しました。
お客さまのご要望
- 最新の水回り設備にしたい。
- 開放的な対面キッチンにしたい。
- リビング・ダイニングを広くしたい。
- 趣味のオーディオを楽しめる空間をつくりたい。
デザイナーからのコメント
お二人がくつろげる空間をつくるため、まずはリビング・ダイニングを広げ、さらに、ゆとりある空間とするため全室の天井の高さを上げることをご提案しました。お部屋がすっきり見えるようオーディオの配線は壁に収めるなど、空間をより活かす工夫を細部に施しています。お二人のリフォームのイメージがはっきりされていたので、ご希望をしっかり汲み、いっそう快適な空間につながるようご提案をさせていただきました。趣味と暮らしやすさが両立する住まいが完成したと思います。
お客さまの声
プランナーさんがわたしたちの要望をまとめて、さらに素敵なプランを提案してくださいました。とくに天井の高さを上げたリビング・ダイニングに、室内の空気を循環できるよう設置したシーリングファンの効果で、床暖房の暖気で部屋全体が温まるようになり大変重宝しています。水回り設備や建具などは実際にショールームで見て、納得したものを自分たちで選びました。クロスの一部はプランナーさんにお任せし、確認は引き渡しまでのお楽しみにしてもらいました。好みに合ったものを選んでいただき、嬉しかったです。リビング・ダイニングは開放的になり、窓からの眺めの良さを改めて感じることができました。広く明るい空間にとても満足しています。
リフォーム/リノベーションデータ
家族構成
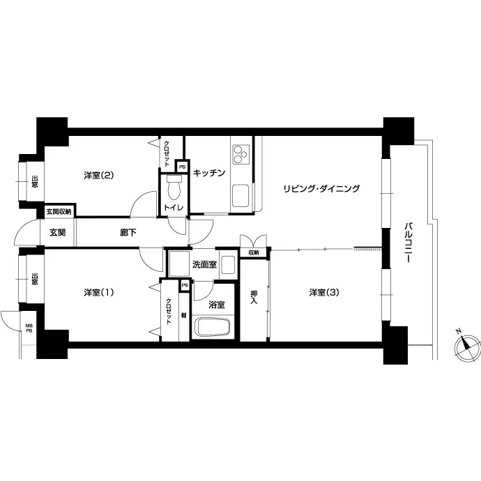
リノベーション後間取り
専有面積
施工期間
リノベーション費
築年数(リノベーション当時)
リノベーション箇所
- 内装
- フローリング、クロス張り替え、建具交換
- 水回り
- キッチン、トイレ、洗面室、ユニットバス
- 造作家具・収納
- リビング収納、洋室収納、寝室収納、廊下収納、玄関収納、パントリー、ウォークインクロゼット


