
壁面収納ですっきりと暮らせる住まいに
- 72.28㎡
- 3LDK
- 910万円(税込)
- 家族構成:3人
- 施工期間:約3カ月
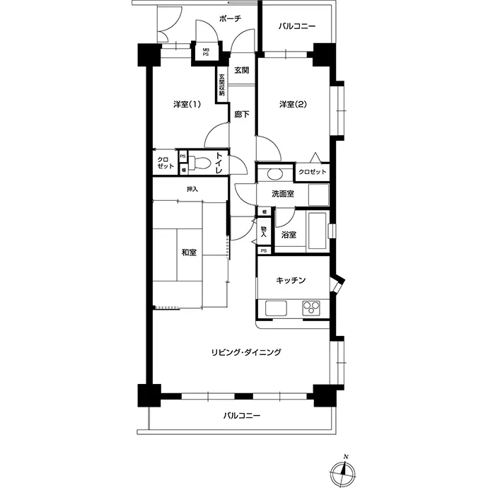
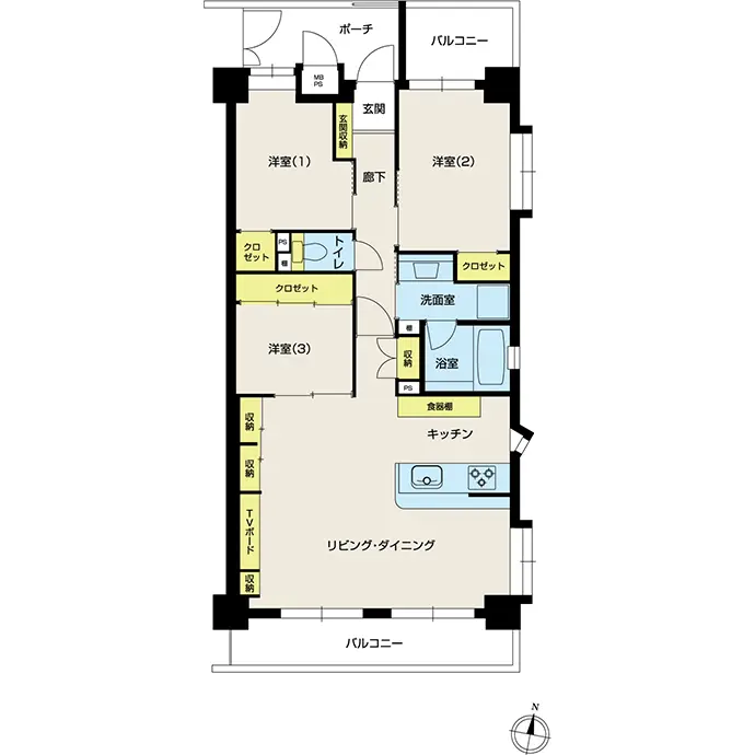
築29年のマンションにお住まいのNさまは、水回り設備の老朽化がきっかけでリフォームを決意されました。リビング・ダイニ ングをすっきりとさせたい、和室を洋室に変更したい、暗いキッチンを明るくしたいとのご要望に、リビング・ダイニングに大きな壁面収納を新設し、キッチンを開放的に変更するプランをご提案しました。使うものはすべて収納にしまい、明るくなったキッチンまで一続きの広々としたリビング・ダイニング。壁のクロスや家具などをアイボリー系の色味でそろえることで統一感も生まれ、すっきりと落ち着いた住まいが完成しました。
リフォーム/リノベーションのポイント

リビング・ダイニングで使用できるものはすべて収納したいとご希望だったため、リビング・ダイニングで使用できるものがすべて収納できるよう、壁面に大きな収納を新設しました。テレビボードは掃除がしやすいよう考慮して、フロートタイプにしました。大きなテレビが目立ち過ぎないよう、アクセントクロスにはダーク系を採用しています。

キッチンはシンクの前面および横の壁を取り払うことで開放的になりリビングと一体感が生まれました。あらかじめ置きたい家電やごみ箱の位置を決めてから、カウンターの高さ・幅を合わせて設えました。面材のカラーは、部屋の建具とそろえて明るいベージュの木目調を採用しました。

和室を洋室に変更し奥さまの寝室にしました。奥のものが取り出しにくかった押し入れは、奥行きを狭めてクロゼットに。洋服をかけることができるハンガーパイプと棚を設置することで、使いやすく変更しました。

洗面化粧台は鏡の裏にも収納のある三面鏡タイプを採用しました。両開きの扉だったキャビネットはスライド式になり、中の物が出し入れしやすくなりました。

浴室は最新の設備に交換しました。木目調のアクセントパネルを採用したことで落ち着いた雰囲気になりました。

トイレは埃がたまりやすいタンクの後ろの部分をすべてキャビネットに隠すことで、お手入れがしやすくなりました。

玄関は収納スペースを増やすために、天井まで高さのある収納に変更しました。さらに扉一枚分の大きな姿見も新設しています。

廊下の収納は固定だった棚を用途に合わせて調整できる可動式に変更し、使いやすくしました。中にはコンセントも設置して配線やコードが見えないよう工夫しています。
お客さまのご要望
- 最新の水回り設備にしたい。
- リビング・ダイニングになるべく物を置かないようにしたい。
- 和室を洋室にしたい。
- キッチンを明るく開放的にしたい。
- 3人それぞれの部屋が欲しい。
デザイナーからのコメント
リビング・ダイニングに物を置かずにすっきりとさせることがいちばんのご要望だったので、まずは大型の収納をリビングの壁面に確保しました。そのうえで隣り合う洋室(3)は奥さまの寝室として使える広さを確保できるよう配慮しました。コロナ禍の影響で設備の納品遅延がありましたが、工程に遅延がでないうようスケジュール管理しながら進めさせていただきました。ご家族がとても仲が良く、リフォーム後のイメージを明確にお持ちだったため、ご希望に沿ったリフォームをスムーズにかたちにすることができました。
お客さまの声
打ち合わせの段階からこちらの要望に対してきめ細かく対応いただき、希望していた以上の空間になりとても満足しています。とくにリビング・ダイニングの壁面収納のおかげで、収納家具を減らすことができました。体力的にも数年後では難しかったと思うので、今回リフォームできて本当によかったです。イメージしていた住まいが、さらに暮らしやすいかたちで完成して満足しています。
リフォーム/リノベーションデータ
家族構成
リノベーション後間取り
専有面積
施工期間
リノベーション費
築年数(リノベーション当時)
リノベーション箇所
- 内装
- フローリング
- 水回り
- キッチン、トイレ、洗面室、ユニットバス
- 造作家具・収納
- リビング収納


