
ポルトガルの雰囲気が漂う気持ちの良い空間
- 62.90㎡
- 2LDK
- 1,386万円(税込)
- 家族構成:2人
- 施工期間:約3カ月
築27年のマンションを本邸とセカンドハウス、2部屋所有されているNさま。以前旅行されたポルトガルが気に入り、セカンドハウスとして使用しているお部屋を、ポルトガルにいるような非日常の癒しを感じられる空間にしたいとご希望されていました。そこでお客さまの思い入れのあるポルトガル風の内装をご提案。また、収納計画を見直したことで室内に収納家具を置く必要がなくなり、空間にゆとりが生まれました。ポルトガルにいるような雰囲気を醸し出す内装デザインの部屋となり、非日常を感じられるすっきりとした住まいが完成しました。
リフォーム/リノベーションのポイント

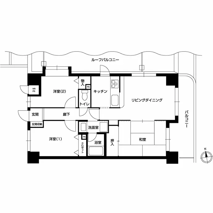
和室をなくしてリビング・ダイニングを広い空間にしました。インテリアデザインはポルトガルを感じさせる白・青・黄色を取り入れコーディネートしました。インターフォンが設置されている壁はリビング・ダイニングから確認しやすいよう、斜めに設えました。

洋室(1)はお子さまのご家族が帰省された際や、来客の際に利用できるようゲストルームとしました。クロゼットは収納するお持ちの物に合わせて収納スペースを拡張。ロールスクリーンはポルトガルのインテリアデザインを取り入れブルーを採用しました。

ご主人さまが読書をしながらゆったりと過ごされる洋室(2)はクロスとフローリングを張り替え、明るい空間になりました。(リフォーム後に黄色のカーペットを購入されました。)

キッチンは対面キッチンからL型キッチンへ変更しました。調理スペースが広くなり、お料理の際の動線がスムーズになりました。面材はフローリングの色と合わせ木目のデザインを採用しました。

浴室は最新の設備に変更。ブルーのアクセントパネルを採用し、爽やかな雰囲気になりました。

洗面室はスペースを広げることでゆとりのある空間に。洗面化粧台は一面鏡から三面鏡のタイプに交換し収納量も増えました。洗濯機置き場の横に可動棚を新たに設け、リネン類を収納する際、高さを変えられるようにしました。

トイレはタンクレストイレに変更。新たにミラー付きキャビネットを採用し、空間が広く感じられるようになりました。

洋室(2)の一部を玄関スペースに変更し土間を広げました。以前は暗く閉鎖的な玄関でしたが窓からの採光で明るく開放的になりました。棚を新たに設えることでご夫婦がお好きなポルトガルの小物を飾れる空間になりました。

廊下には新たにニッチを設け、お気に入りの小物を飾れる楽しい空間に。玄関は姿見を取り付けたトール収納を新設。玄関回りの収納力は大幅に向上しました。
お客さまのご要望
- ポルトガル風の内装にして、海外にいるような雰囲気にしたい
- 水回り設備を刷新したい
- 本邸では収納できないお持ちの物をすっきり収納できるようにしたい
- セカンドハウスとして快適な空間にしたい
デザイナーからのコメント
お客さまのご希望をお聞きし、ご要望が叶えられるよう具体的にプランニングしました。ポルトガルのインテリアがお好きということで、内装デザインもそれに沿ったものをご提案し、本邸に入りきらないお持ちの物に合わせた収納計画、水回りの動線、機能性にもこだわり、ご家族がセカンドハウスとして快適に過ごせる、お客さまのこだわりの空間をご提案することができました。
お客さまの声
リフォームをしたことで、ポルトガル旅行の思い出の品を家の中に素敵に飾ることが出来るようになりました。使いやすく綺麗になったお部屋の、眺望の良い窓辺で過ごす時間は最高です。
リフォーム/リノベーションデータ
家族構成
リノベーション後間取り
専有面積
施工期間
リノベーション費
築年数(リノベーション当時)
リノベーション箇所
- 内装
- フローリング
- 水回り
- キッチン、トイレ、洗面室、ユニットバス
- 造作家具・収納
- ニッチ(飾り棚)


