
家族4人それぞれの生活リズムに合わせて暮らせる住まい
- 95.59㎡
- 3LDK
- 1,000万円(税込)
- 家族構成:4人
- 施工期間:約3カ月
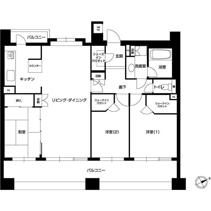
築21年のマンションにお住まいのTさまは、長らく単身赴任をされていたご主人さまがお戻りになり、古く傷んでいた床やクロ スを修繕したいと考えられたことがきっかけで、リフォームを決心されました。さらに、暗いキッチンを明るくしたい、玄関収 納と洋室のウォークインクロゼットを使いやすくしたいとのご要望からキッチンは対面式に、収納スペースは家族で共有できる ウォークインクロゼットを新設して、明るく使い勝手の良いプランをご提案しました。またリビング・ダイニングはバルコニー に沿って一続きとしたことで、広さと明るさを感じられる空間となりました。ご家族4人の生活リズムが異なるため、一人ひと りの空間を大切にしながらリビング・ダイニングでご家族そろってくつろげる、心地いい住まいが完成しました。
リフォーム/リノベーションのポイント

リビング・ダイニングは、和室を無くしダイニング空間をバルコニー側に移動させたことで、2つの大きな窓に面して明るくなりました。2つの窓のカーテンボックスを一連にし、窓の間の壁が目立たなくなったため、まるで一面すべてが窓のように明るく見えます。また、天井の高さを上げたことでより開放感が増しました。ダイニングの床には床暖房を新設しています。

暗かった独立キッチンを風通しの良い対面キッチンにし、作業のしやすさを考えてL字型にしました。システムキッチンの面材は、奥さまお気に入りのグレーを採用。床は耐水性があり、衝撃にも強いクッションフロアを選びました。天井は床材や建具と同じ木目調のものを何点かご提案し、ご希望のものをお選びいただき、統一感を持たせることができました。

以前、キッチンだったスペースにパントリーを新設しました。リビング・ダイニングに置いていた食器棚などの収納家具や小物をパントリーにまとめたことで、ダイニングもすっきりし、広々と使えるようになりました。

ご夫婦の寝室である洋室(1)はウォークインクロゼットをなくし、天井の高さも上げて、ゆとりある寝室としました。白を基調とした部屋に、淡いグリーンのアクセントクロスを採用し、落ち着いた空間を演出しています。奥さまが就寝されても、ご主人さまは読書をしてご自分の時間を過ごすなど、ご夫婦それぞれに使い分けられるよう、お部屋の照明のスイッチは2つに分けています。

2つの子ども部屋のうちの一部屋である洋室(3)は、将来お子さまが独立されたときにリビング・ダイニングと一続きにできるよう、三枚扉を採用しました。さらにリビング・ダイニングを通らずに洋室(3)からもパントリーに行けるようご希望されていたので、パントリーとの境に壁を設けないプランをご提案しました。

洗面室は、三面鏡タイプの洗面台に交換しました。ボールの背面にはお掃除がしやすい、奥さまお気に入りのモザイクシートを採用。扉があって使い勝手が悪かった洗濯機置き場側面の収納は、オープン棚にしたことで出し入れがしやすくなりました。

浴室は床まわりのきれいがつづく「床ワイパー洗浄(きれい除菌水)」※1機能がついたユニットバスを採用しました。モザイク調のブルーのアクセントパネルを設置し、明るく清潔感のある印象に。
- ※1「床ワイパー洗浄(きれい除菌水)」は、TOTOのユニットバスで採用できるオプション機能の名称です。

トイレはタンクレストイレを採用し、手洗いカウンターと手すりを新設しました。ハリネズミ柄のアクセントクロスで、明るくかわいらしい雰囲気になりました。

洋室(1)(2)それぞれにあったウォークインクロゼットを無くして、家族全員が使えるように廊下にウォークインクロゼットを配置しました。

もともと廊下にあった収納を、玄関のシューズインクロゼットと合わせてひとつの大きなクロゼットとしました。引き戸に変更することで、中のものの出し入れがしやすくなりました。また、ゴルフバックなどの背の高い大きなものを収納できるスペースも確保しました。

廊下とリビングを繋ぐ扉は、スリットから光を取り込めるデザインを採用しました。リビングの明かりが廊下にこぼれて、家族の気配を感じることができます。傷んでいた床は、落ち着いたウォールナットカラーの床材に新しくしました。

玄関の壁は調湿機能を持つエコカラット※1を採用し、さらに大きな姿見をアクセントに加えました。
- ※1エコカラットとは、LIXILの機能性建材(調湿建材)の商品です。
お客さまのご要望
- キッチンを明るく風通しの良い快適な空間にしたい。
- クロゼットを使いやすくしたい。
- シューズインクロゼットを広げたい。
- 古く傷んでしまった床と壁紙を新しくしたい。
- 最新の水回り設備にしたい。
デザイナーからのコメント
広く開放的になることをいちばんお望みでしたので、お部屋の間取りを変更するだけでなく、すべての居室の天井を上げることをご提案しました。洋室(3)は、用途によって使い分けられるよう部屋の仕切りを可変的に、また、ウォークインクロゼットはご家族で共有できるよう廊下に配置するなど、将来的にお子さまが独立されたあとの暮らしも視野に入れた間取りとなるよう配慮しました。より広さを感じられるようになり、ご家族がくつろげる住まいが完成したと思います。
お客さまの声
わたしたちの要望をすべて叶えていただき、思っていたとおりの住まいになりました。キッチンが明るく風通しも良くなり、新たに広いパントリーもできたので収納量にも満足しています。リビング・ダイニングはバルコニー側の2つの窓に面することで、明るく気持ちの良い空間となりました。部屋全体が広くなったように感じられて、とても満足しています。
リフォーム/リノベーションデータ
家族構成
リノベーション後間取り
専有面積
施工期間
リノベーション費
築年数(リノベーション当時)
リノベーション箇所
- 内装
- エコカラット、フローリング
- 水回り
- キッチン、トイレ、洗面室、ユニットバス
- 造作家具・収納
- 廊下収納、玄関収納、壁面収納
- その他
- 床暖房


