
ホテルライクな印象で開放感ある大人の住まい
- 81.09㎡
- 1LDK+S
- 1,328万円(税込)
- 家族構成:1人
- 施工期間:約3カ月
一人暮らしに合わせた広々とした間取りと、落ち着いた内装デザインのお部屋にしたい、とこれまで賃貸に出していた築17年のマンションのリフォームをご要望されました。住まいの顔となる玄関を広く、お手持ちの物を収納しすっきりと暮らしたいというTさまに、収納スペースをたっぷりと確保しながら、開放感のある間取りをご提案。また壁紙の配色や照明の配置など、開放的に感じる工夫を随所に凝らしたホテルライクなお部屋は、非日常を感じる快適な空間になりました。
リフォーム/リノベーションのポイント

リビング・ダイニングの壁面にはブラック系のアクセントクロスを採用しシックな印象に。また梁を利用し折り上げて梁内に照明を設置。光を天井に当てる事で天井が高く感じられ柔らかい明るさで包んでくれる照明計画を施しました。

ゲストルームとして使用する洋室(1)はクロスとフローリングを張り替え、天井照明はシーリングライトからダウンライトに変えすっきりと高さが感じられる空間になりました。

リビング・ダイニングに溶け込む空間にするため、システムキッチン、カップボード、キッチンパネルの色を合わせ濃いグレー色を採用しました。垂れ壁を撤去し閉鎖的だったキッチンをオープンな対面キッチンにする事で開放感溢れるキッチンに。熱、キズ、汚れに強く、美しいセラミックワークトップを採用してお手入れを簡単に。またワークトップの奥行を出しカウンター仕様にする事でハイチェアを置いて簡単な食事や、夜はバーのような雰囲気も楽しめるようにご提案しました。

浴室は最新設備に変更。手すりは横型のスマートエスコートバー※1を採用し上質なデザインかつさりげない入浴のサポートも。浴槽を黒にすると湯垢が目立つのであえて白をセレクト。落ち着いた印象にしました。
- ※1スマートエスコートバーとはLIXILのユニットバス横型手すり商品です。

ホテルのような優雅な洗面空間にするために、Tさまお好みの一面鏡とボウル一体型カウンターのシンプルな洗面台を採用しました。また、トールキャビネットと組み合わせ収納量を確保しました。

トイレは最新のタンクレストイレを採用し新たに手洗い器を設置しました。トイレの背面と天井のアクセントクロスを同色にして繋がりを出す事で広く感じるトイレ空間を演出。

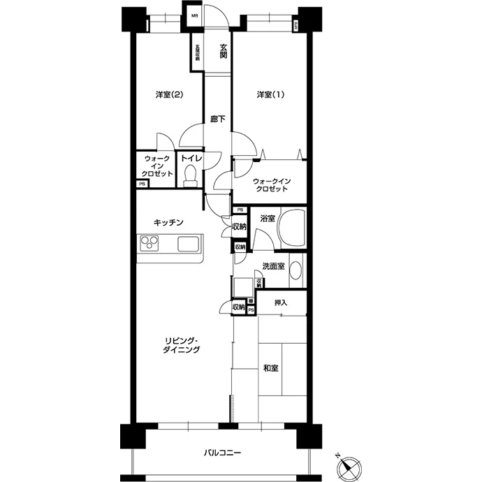
2カ所あったウォークインクロゼットの開口部は使い勝手が悪かったため、1カ所に変更し、より広く、機能的にしました。洋服を整然と収納したいというご要望を叶えるために、ハンガーパイプを3面に設置しました。

元々の洋室(2)を十分な広さの納戸に変更しました。玄関の靴や大きなゴルフバックまで格納できる十分な収納量を確保しました。

お部屋全体のメインの壁紙はグレーを採用したため、暗くなり過ぎず広さを感じられるように建具は全て白色で配色しました。

洋室(2)の一部を玄関スペースに変更し土間を広げました。以前は暗く閉鎖的な玄関でしたが、窓からの採光で明るく開放的になりました。姿見を取り付けた壁面は開放感を感じられるように、敢えて斜めに誂え、エコカラット※1と玄関のたたきの濃いグレーがシックな印象に。玄関収納も撤去しこの家を印象付ける大切なポイントとしてデザインしました。
- ※1エコカラットとは、LIXILの機能性建材(調湿建材)です。
お客さまのご要望
- 一人暮らしに合った間取りにしたい
- 玄関を広くしたい
- 水回りスペースを広くしたい
- 細かく仕切られた間取りを開放的に変更したい
- リビング・ダイニングで生活が完結できるようにしたい
- 洋服、ゴルフバックや本、小物や雑貨を集約して置けるスペースを確保したい。
デザイナーからのコメント
基本的なプランはお任せいただきましたので、ご要望を一つひとつお聞きし、間取りや内装デザインまで具体的に図面やプレゼンボードを作成、ショールームをご案内し商材も確認頂きながらプランニングに反映させました。男性の一人暮らしに合うようなグレーや黒をイメージカラーにして、落ち着いたホテルライクな色使いを意識しました。また水回りは全て最新設備を採用し機能性とメンテナンス性を向上させました。リフォーム後のお部屋は、玄関を開けた瞬間に同じ部屋とは思えないほどに印象を変えることができました。
お客さまの声
一人暮らしにあった部屋にリフォームしていただきとても満足しています。デザインもシックで落ち着いて過ごせるようになりました。全てお任せして本当に良かったです。
リフォーム/リノベーションデータ
家族構成
リノベーション後間取り
専有面積
施工期間
リノベーション費
築年数(リノベーション当時)
リノベーション箇所
- 内装
- フローリング、クロス張り替え、エコカラット、建具交換
- 水回り
- キッチン、トイレ、洗面室、ユニットバス
- 造作家具・収納
- 玄関収納


