
快適な暮らしを叶える機能性あふれる住まい
- 77.20㎡
- 3LDK
- -円
- 家族構成:4人
- 施工期間:約2カ月
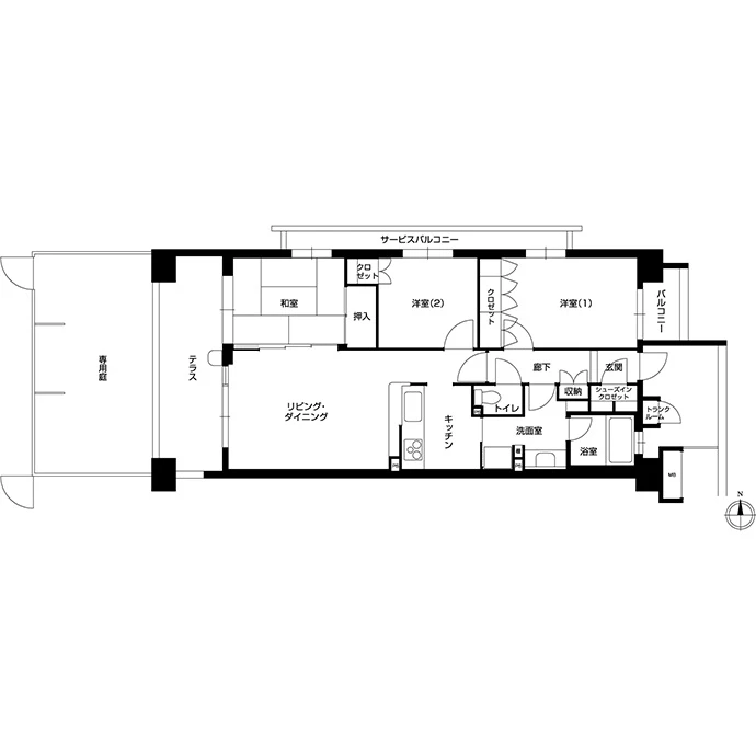
築17年のマンションにお住まいのTさま。アレルギー体質のお子さまのために、北側に面したお部屋の結露やカビの対策としてリフォームを決心されました。和室を洋室にしたい、湿気とカビの対策をしたいとのご要望から、インナーサッシや断熱材を新たに設置。湿気がこもらないように風通しが良くなる収納プランを採用しました。また和室をなくし、リビング・ダイニングと同じ床材の洋室としたことで、間仕切りを開けるとリビング・ダイニングから一続きとなり、広々した空間になりました。快適に暮らせるための素材を取り入れながら、開放的な住まいが完成しました。
リフォーム/リノベーションのポイント

リビング・ダイニングは、以前のダークブラウンから雰囲気を変えたいと明るい色味の床材に張り替えました。壁にはハウスダストや花粉など環境アレルゲンの働きを抑えるエコカラット アレルピュア※1を施工。天井のダウンライトは、音声操作で明るさや色味を変更することができます。快適さに加えて機能性も上がり、お庭の緑をゆったりと楽しめる心地よいリビング・ダイニングとなりました。
- ※1エコカラット アレルピュアとは、LIXILの機能性建材(調湿建材)です。

キッチンはシンク前および横の壁をなくすことにより、開放感のある明るいスペースになりました。背が高いTさまご家族に合わせて、キッチンの高さを少し高めの90cmにしました。また天井は、収納家具や建具と色味を合わせた木目調シートを貼り、統一感を持たせています。

結露とカビが悩みだった洋室(1)は、北側と東側の2つの窓でインナーサッシを採用しました。北側の壁も断熱工事をしっかりと施して、結露とカビの発生を抑える対策をしました。ホワイトの壁紙とオーク材の床は、お子さまのお気に入りです。

同じく結露とカビが悩みだった洋室(2)もインナーサッシを採用。クロゼットは洋室(1)と洋室(2)の両側から開くように変更したことで通気性がよくなりました。収納が増えたため置き家具がなくなり、お部屋を広く使えるようになりました。

和室は洋室に変えてご夫妻の寝室としました。北側と西側の2つの窓は、インナーサッシを取り付けて結露とカビの発生を減らす工夫をしました。リビング・ダイニングへ繋がる引き戸は、就寝時以外は開けておくことで、より開放感を感じることができます。照明もリビング・ダイニングと同じダウンライトで統一感を持たせました。

浴室は、白を基調とした爽やかな雰囲気に。アクセントパネルにはモダンな石目柄を採用しています。浴室換気乾燥付きのため、雨の日のお洗濯も安心です。

洗面室も使いやすを考えて、洗面台の高さはTさまご家族の身長に合わせて85cmとしました。また廊下と洗面室の床の高さを合わせるなど、バリアフリー面にも考慮しています。

トイレはお手入れのしやすいものに変更し、床には耐水性と耐久性に優れたフロアタイルを採用しました。

以前の廊下は照明の明るさが足らず廊下収納が暗く見えにくかったため、照明を1灯増やして収納の中まで見えやすいよう位置を変更しました。いずれも人感センサー付きLED電球のため、消し忘れが防げて節電にも繋がります。建具は床と色味の合うナチュラルなウッドテイストで、温かみを演出。磨りガラスはプライバシーを守りつつ、リビング・ダイニングの明かりが廊下にも届くようになっています。

玄関の床石は既存ですが、磨くことで光沢を取り戻しました。白い壁にドアとたたきの黒が映えるシックな仕上がりとなっています。シューズインクロゼットは一枚扉から折り戸に変えて、中のものを取り出しやすくしました。
お客さまのご要望
- 結露による湿気をおさえたい
- カビ対策をしたい
- 洋室の窓にインナーサッシを取り付けたい
- 両方の子ども部屋からクロゼットを共通で使えるようにしたい
- 和室を洋室にしたい
デザイナーからのコメント
まずはお子さまのことを考えてお部屋の窓にはインナーサッシを取り付け、北側の壁に断熱工事を施すなど、いくつかの湿気・カビ対策をご提案しました。子ども部屋のクロゼットは、両側から開けられるようにしたことで通気性がよくなりました。ダークブラウンを基調としたシックな色合いのお住まいから気分を変えたいとご希望でしたので、お部屋全体はお手持ちの家具などとも統一感が出るように、白を基調とした明るいトーンとしました。また白いクロスも、ラインの入っているものや木目調などさまざまな質感を感じられるものをTさまにお選びいただきました。機能的でありながらデザイン性にも優れた住まいとなりました。
お客さまの声
長年の悩みだった湿気・カビ問題が解消されて、本当によかったです。子どもたちも自分の部屋が明るく暖かくなり喜んでおります。家の中の色味が明るくなったことで、リビング・ダイニングがお気に入りの空間になりました。リフォーム中はいろいろ不安なこともありましたが、プランナーさんが最後まで対応してくださって心強かったです。
- ◇結露・カビ防止にはしっかりと換気することも必要です。
リフォーム/リノベーションデータ
家族構成
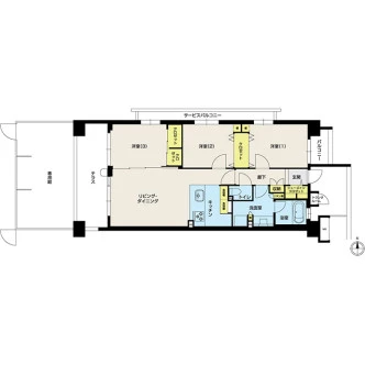
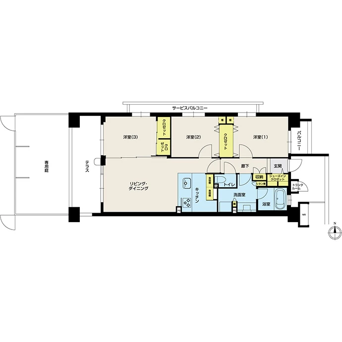
リノベーション後間取り
専有面積
施工期間
リノベーション費
築年数(リノベーション当時)
リノベーション箇所
- 内装
- フローリング、クロス張り替え、エコカラット
- 水回り
- キッチン、トイレ、洗面室、ユニットバス
- 造作家具・収納
- 洋室収納、子ども部屋収納
- その他
- インナーサッシ・内窓、可動間切り


