
リフォームで叶えた北欧テイストの住まい
- 68.44㎡
- 1LDK+S
- 550万円(税込)
- 家族構成:2人
- 施工期間:約1カ月
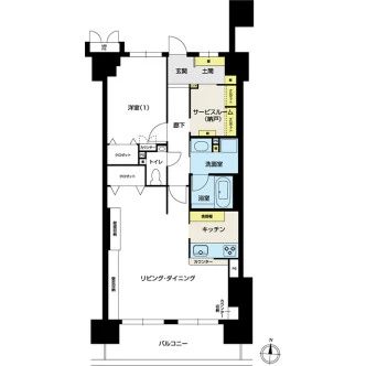
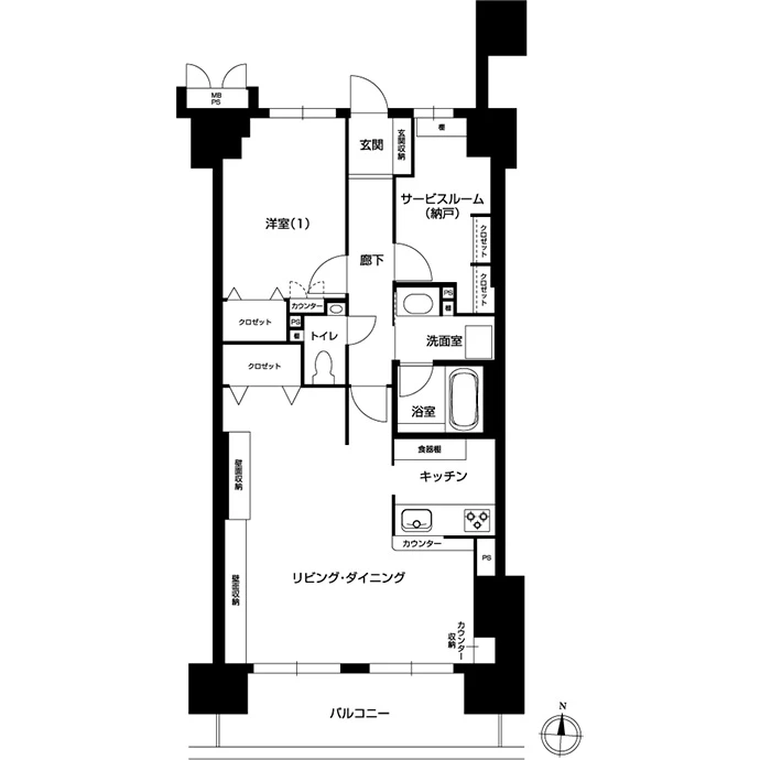
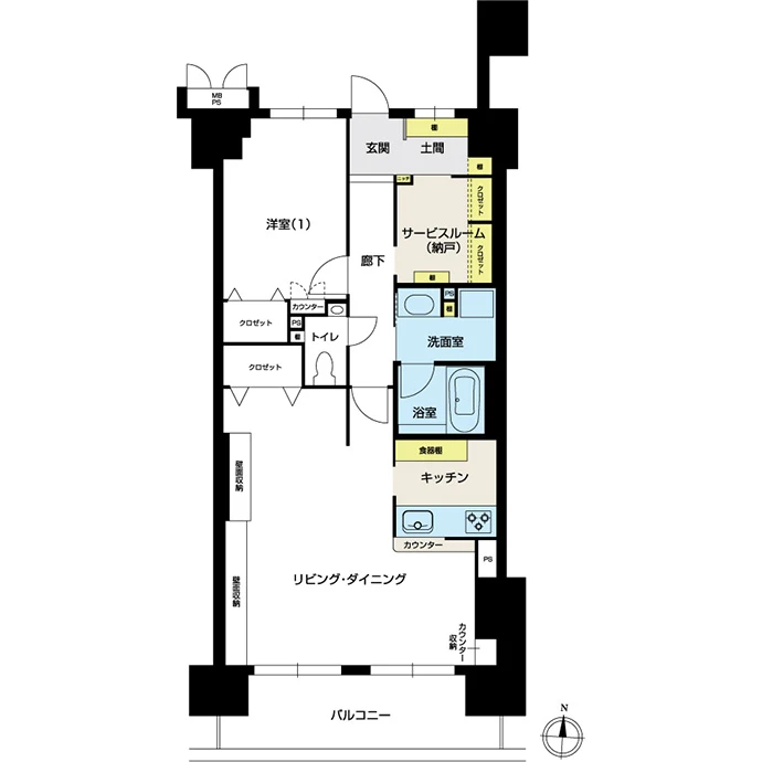
築25年のマンションにお住いのIさま。土間を設け明るい玄関にしたい、使いやすい収納スペースにして欲しい、また、水回り設備を一新したいとリフォームをご要望されました。そこで既存の洋室(1)、廊下、リビング・ダイニングはそのままに、サービスルーム(納戸)と玄関を含めた収納計画をプランニング。使いやすい収納とIさまがお気に入りの北欧デザインを感じさせる色やアーチ型の出入り口を取り入れたプランをご提案し、自然の温かみを感じさせる北欧テイストの住まいが完成しました。
リフォーム/リノベーションのポイント

キッチンと食器棚は天板と面材を交換しました。北欧デザインを感じるように食器棚の背面はブルーグリーンのタイルを採用しました。

洗面ボウルと水栓はIさまご希望のイメージをもとにご提案しました。またその商品に合ったイメージの洗面室にするために、ブルーのクロスとブルーのモザイクタイルを採用しました。

納戸はアーチ形の出入り口や黄色のクロスを取り入れ、壁面の入り組んだスペースをなくすことで使いやすく広がりのある空間に。Iさまのお手持ちのチェストも入るようにサイズを考慮しプランニングしました。

元々のサービスルーム(納戸)のスペースの一部を玄関の土間にしました。玄関に繋がる壁には採光窓としてレトロで存在感のあるチェッカーガラスを採用しました。

玄関の土間は可動式の棚板を用い、お気に入りの靴を並べて収納することができます。
お客さまのご要望
- システムキッチンの刷新
- 明るく広い玄関(土間型)にしたい
- 使いやすい収納スペースが欲しい
デザイナーからのコメント
私自身も北欧デザインが好きなので、Iさまと意見が合うことが多く、求めていらっしゃるものを的確にご提案できたと思います。お打ち合わせの時間はとても楽しく、工事に入るまでじっくりと時間をかけて思い描かれるイメージを共有し、実現のお手伝いができたと思います。
お客さまの声
こちらの「北欧デザインにしたい」を的確にとらえた提案とアドバイスをいただけてとても満足しています。明るくイメージしていた住まいになりました。アーチ形の出入り口などの細部についてもきれいに仕上げていただきました。
リフォーム/リノベーションデータ
家族構成
リノベーション後間取り
専有面積
施工期間
リノベーション費
築年数(リノベーション当時)
リノベーション箇所
- 内装
- フローリング、クロス張り替え、エコカラット、タイル、建具交換
- 水回り
- キッチン、洗面室、ユニットバス
- 造作家具・収納
- 玄関収納、壁面収納


