
快適循環システムで空気が循環する住まいを実現
- 75.04㎡
- 2LDK+S
- 1,760万円(税込)
- 家族構成:2人
- 施工期間:約2カ月
築28年の物件にお住まいでインターネットでリフォーム会社を調べていたTさま。夫婦それぞれの個室と、北側の部屋と納戸の寒さ対策や結露対策をご希望されていた中、弊社の「快適循環システム」に興味をお持ちいただきました。個室の確保に加え、「快適循環システム」の導入と風通しのよいプランをご提案し、空気がこもりにくい快適なお部屋が完成しました。
リフォーム/リノベーションのポイント

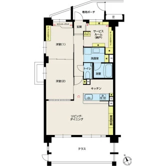
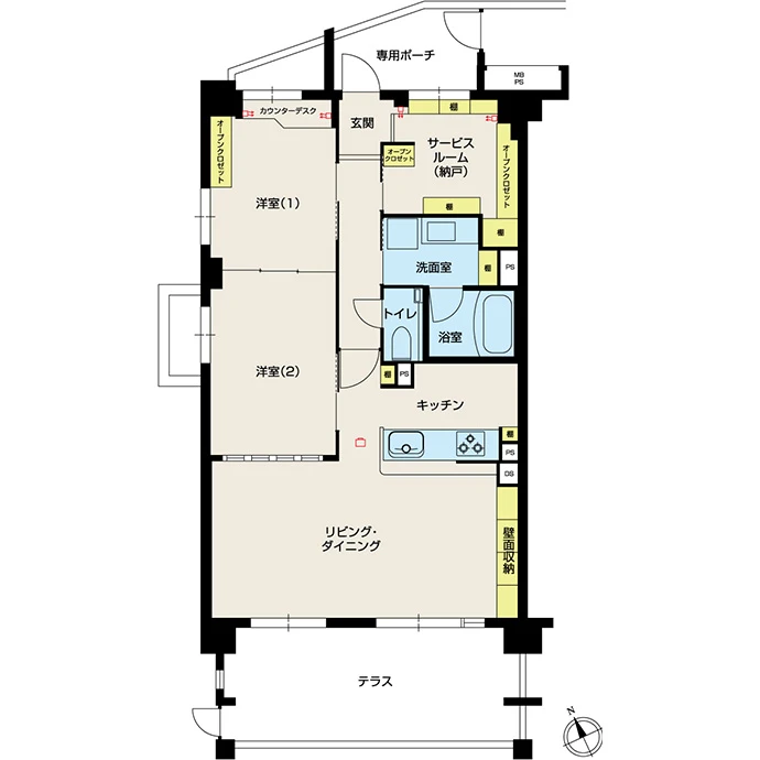
ダイニングスペースの収納にお悩みだったため、大型の壁面収納を新たに設置しました。これにより、小物類をスッキリと収納することができるようになりました。

リビングと、隣接する洋室(2)の間の壁面に室内窓を取り付けることで、換気を促進するだけでなく、洋室に自然光を取り入れ、心地よい風通しを確保することができるようになりました。

奥さまのお部屋として使用する洋室(2)は自分の時間を気持ち良く過ごすために、クロス、建具、床の色も全て奥さまのお好きな色を組み合わせました。また、スペースを広く確保するため、元々あった収納は取り払い、ゆったりとした空間を作り上げました。

ご主人が自宅で仕事を行えるように、洋室(1)にカウンターデスクを設置しました。また、オープンクロゼットを設けて洋服を整然と収納し、枕棚も備えることでスッキリと片付けることができる環境を作りました。趣味の読書も楽しめるような落ち着いた雰囲気のお部屋となりました。また快適循環システムの排気口を設けることで空気が循環し結露やカビの予防ができるようになりました。

玄関と廊下、サービスルームは家事のしやすさを考慮して回遊動線としました。サービスルーム(納戸)には収納スペースを集約し、収納するもののサイズに合わせて設計と造作を行いました。季節物や大きなトランクのようなアイテムを収納するために、サービスルームは広々とした収納スペースとなっています。

広い廊下の壁に、アクセントとなるデザインポイントを追加して欲しいとのご要望から、デザイン性のあるエコカラット※1を壁に取り入れました。この結果、壁が一層魅力的な要素を持ち、素敵な空間が生まれました。
- ※1エコカラットとは、LIXILの機能性建材(調湿建材)です。

開放的に感じられるよう、キッチンでは吊戸棚を取り払いました。さらに、マグネット式のキッチンパネルを採用し、キッチンペーパーやその他の小物を取り付けることができるようにしました。また、キッチンの面材にはレザー調を採用し、遊び心を取り入れました。

浴室は、足を伸ばして入浴できるように浴槽のサイズを大きくしました。また、ホテルのような雰囲気を求められていたため、高級感のある丸いフォルムのミラーを採用しました。

洗面室は、ナチュラルな雰囲気を求められていたため、それに合う色合いの洗面化粧台を採用しました。また、お掃除のしやすさを考慮し、洗面台はフロートタイプとしました。さらに、収納については出し入れがしやすくするため、全てをオープンにすることで、使い勝手も良く快適にお使いいただけるようになりました。

トイレは、タンクレスの設備に変更したため、新たに手洗い器を設置しました。また、ホテルライクで落ち着いた雰囲気を演出するために、ダークカラーをポイントとして使用し、洗練された雰囲気を持つ空間を実現しました。
お客さまのご要望
- 寒さ・結露対策のため、快適循環システムを導入したい
- 水回り設備を刷新したい
- 風通しを良くしたい
- 夫婦それぞれの個室を持ちたい
- リビングと玄関を広くしたい
デザイナーからのコメント
ご夫婦お二人の仲の良さを大切にし、一緒に過ごすときには広々としたリビング・ダイニングで、また自分たちの時間を持ちたいときにはそれぞれの個室で過ごすことができるよう、ご希望の住まい方を実現するお手伝いができたことを嬉しく思います。さらに、お部屋全体の風通しも良くなり、快適な生活をお送りいただけることと思います。ご夫婦が心地良く暮らせる空間を作り上げることができたと思います。
お客さまの声
私たちの希望を優先して、たくさんの提案をしていただきました。迷った時には適切なアドバイスをいただき、本当に助かりました。おかげさまで風通しのよい住まいになりました。快適循環システムと内窓の効果で結露か発生することが少なくなり快適に過ごせるようになりました。自分達の部屋を持つことができて、水回りも綺麗になって本当にリフォームをして良かったです。
リフォーム/リノベーションデータ
家族構成
リノベーション後間取り
専有面積
施工期間
リノベーション費
築年数(リノベーション当時)
リノベーション箇所
- 内装
- フローリング、クロス張り替え、タイル、建具交換
- 水回り
- キッチン、トイレ、洗面室、ユニットバス
- 造作家具・収納
- リビング収納、洋室収納、玄関収納、壁面収納、カウンターデスク
- その他
- インナーサッシ・内窓、快適循環システム


