
社員のための快適リフォーム
- 74.17㎡
- 3LDK+S
- 1,397万円(税込)
- 家族構成:-
- 施工期間:約2.5カ月
法人が所有されているマンションの一室を社宅として使用するため、単身でもファミリーでも心地よく住めるお部屋にしたいとリフォームをご希望されました。お住まいになる社員のために、明るい雰囲気の部屋にしたい、給排水管(専有部内)も新しくしてほしいとのご要望から、配管を一新し、フローリングを明るい色に変更。設備も一新し気持ちよく暮らせるお部屋が完成しました。
リフォーム/リノベーションのポイント

リビング・ダイニングは床の色を濃いブラウン系から白系に変更し、明るい雰囲気を演出しました。さらに、リビング・ダイニングにはアクセントとしてグリーンのカーテンを提案しました。これにより、室内に自然な彩りと爽やかさが加わりました。

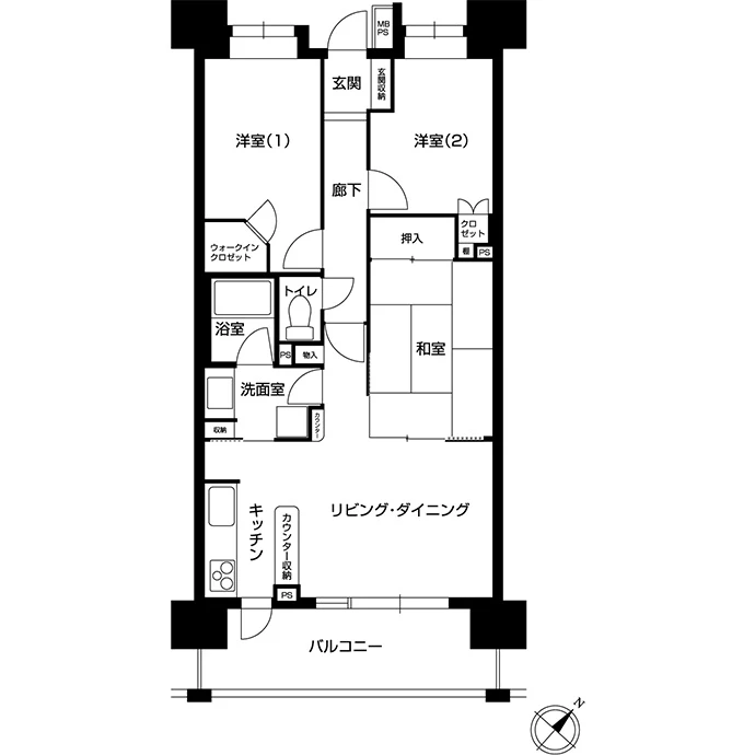
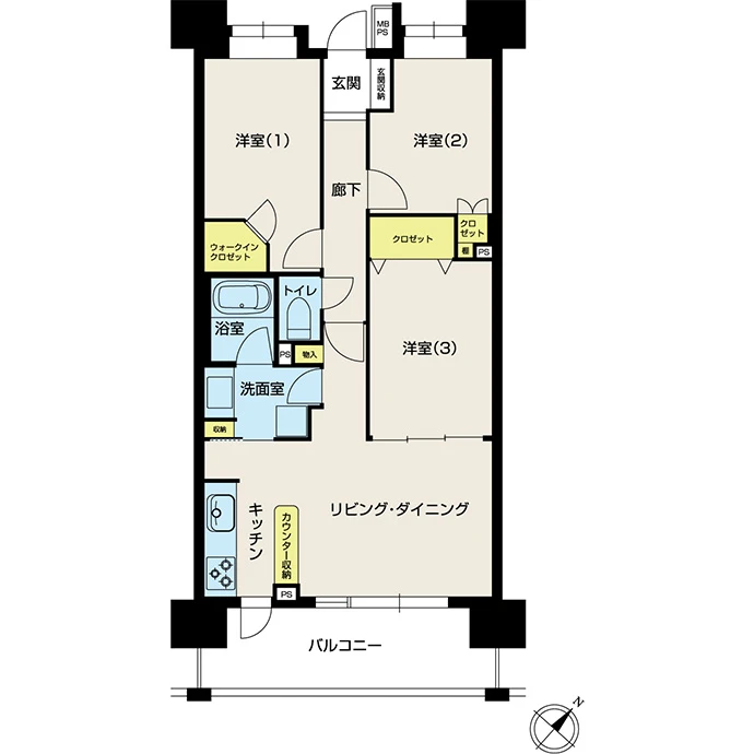
和室は洋室に変更し、可動間仕切りを新設しました。間仕切りを開けることでリビングと一続きの空間となり、閉めることで個室でもお使いいただけます。

洋室(1)と(2)のフローリングも白系にし、アクセントクロスにはお子さまの部屋としても寝室としても使えるよう、落ち着いた中にもかわいらしさを演出するモスグリーンを採用しました。これにより、部屋全体が明るく広々とした印象を与えながら、子供らしさや快適な寝室の雰囲気も演出しています。

キッチンは、吊⼾棚を撤去してより開放的な雰囲気になりました。フローリングも白系に変更したため、設備はダークな色を採用することで全体を引き締め、インテリアのポイントとなっています。これにより、明るく開放感を感じるキッチン空間が生まれ、スタイリッシュな雰囲気が演出されました。

浴室は落ち着いた雰囲気とするために、ブラックの浴槽を採用しました。それに合わせて、壁面にはシックな印象のアクセントパネルを採用しました。これにより、上品でリラックスできる浴室空間を実現しました。

洗面化粧台の下部収納は、開き扉収納からフルスライド収納へ変更したことで、奥まで収納できるようになり、出し入れも簡単になりました。

トイレの床面には清潔感を演出するために石目調のクッションフロアを採用しました。また、トイレ本体には便器に近づくだけで自動的に便フタが開く機能や、便座から立ち上がると自動的に便器を洗浄するオート機能を採用しました。これにより快適で衛生的なトイレ環境になりました。
お客さまのご要望
- 単身でもファミリーでも暮らしやすい部屋にリフォームしたい
- 水回り、床を綺麗にして、明るい印象の部屋にしたい
デザイナーからのコメント
法人の依頼により、社員の方が快適に過ごせる住まいを実現するためのプランニングを行いました。リフォームが完了した後、多くの社員の方々が現場を訪れ、社内の絆や仲の良さが感じられました。皆さまが心地よく暮らせる住まいを提供できたことをとても嬉しく思います。
お客さまの声
既に社員が居住していますが、快適に過ごせているととても喜んでいます。ありがとうございます。
リフォーム/リノベーションデータ
家族構成
リノベーション後間取り
専有面積
施工期間
リノベーション費
築年数(リノベーション当時)
リノベーション箇所
- 内装
- フローリング、クロス張り替え、建具交換
- 水回り
- キッチン、トイレ、洗面室、ユニットバス
- 造作家具・収納
- リビング収納、洋室収納


