
のびのびと寛げる和室を中心に、木の温もりを感じられる住まいに
- 74.70㎡
- 3LDK
- 925万円
(税込)
- 家族構成:1人
- 施工期間:約2カ月
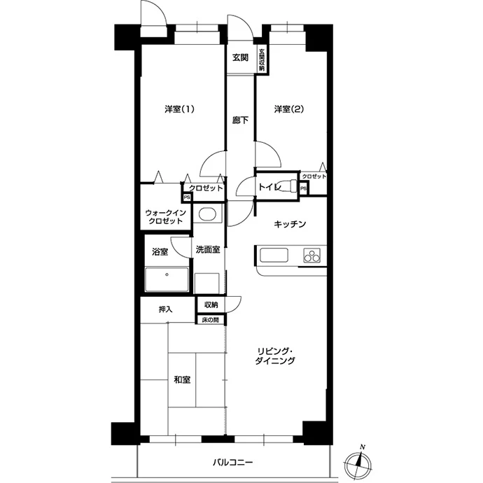
立地や間取りが気に入り、築25年のマンションを購入されたFさま。ご入居前に、古くなっていた水回り設備や内装を一新するリフォームを希望されました。こだわりのポイントは、木の感触と和の雰囲気が感じられる家にしたいということ。さらに、一人でのんびりと寛げる場所がほしいというご要望があり、和室を広げ、格子戸のあるプライベートリビングとするプランをご提案。格子戸を開くと、和室とリビング・ダイニングが一続きに使える、広々とした空間のあるお住まいが完成しました。
リフォーム/リノベーションのポイント

リビング・ダイニングは、お手持ちの重厚な木製家具が映えるよう、白いクロスに張り替え、フローリングは木目を生かした濃いブラウンのものを採用しました。

キッチンは、シンクの上にあった吊戸棚や脇にあった壁を取り払って、明るく開放的なオープンキッチンとしました。リビング・ダイニング側は全面がカウンター収納となっており、キッチン背面に造作した食器棚と合わせ、十分な収納スペースを確保しました。また、小物などをさっと掛けられるハンガーレールを、Fさまのご希望で取り付けました。

和室は、押入や床の間を撤去し、畳のスペースを拡張。抹茶色のアクセントクロスや天井の木目調クロスといった和を意識したしつらえの中で、ゆったりと寛げるプライベートリビングとしました。格子戸は、木の質感のあるお部屋にしたかったとおっしゃるFさまこだわりのポイント。リビング・ダイニングとゆるやかに仕切り、開け放てば一続きの大きな空間となります。

洋室(1)は、寝室にふさわしい、落ち着いた色合いのブルーグレーのアクセントクロスに張り替えました。

洋室(2)は、収納のためのスペースとしました。お手持ちのタンスを収めたほか、クロゼットを広げ、枕棚や中棚のある押入スペースを造作しました。押入スペースは、開口部が広くとれるロールスクリーンを採用し、使いやすいよう配慮しました。

洗面室にも木目調の洗面化粧台、木目のフロアを採用し、木の雰囲気を取り入れました。小ぶりな一面鏡も洗面スペースを可愛らしく演出しています。

浴室は、ベージュ系のアクセントパネルを四面に採用し、温もりと清潔感の感じられる落ち着いた空間としました。

トイレは、背面がキャビネット仕様でタンクの見えないタイプを採用。キャビネットには、掃除用具などもしまえるので、すっきりと片付けることができます。

玄関は、下足入れをなくして土間を広げ、さらに、洋室(2)の壁を後退させて廊下の幅を広げることで、開放感を向上させました。廊下には、傘や靴がたっぷりと収納できる玄関収納を設置。新設したトールタイプの収納とともに、収納力アップを実現しました。
お客さまのご要望
- ゆっくり寛げる和風の空間がほしい。
- 木の温もりが感じられる住まいにしてほしい。
- 水回り設備を刷新したい。
- 明るいオープンキッチンにしたい。
- 玄関を広くしたい。
- 収納を増やしたい。
デザイナーからのコメント
木の感触や和の雰囲気を大切にしたいという、Fさまのこだわりをお聞きし、暮らしやすさを考慮しながら、和風のテイストが生かせるようプランニングしました。特にご希望だった木の格子戸を取り入れた和室を中心に、統一感のあるインテリアとなるよう、造作家具の採用や床・クロスの色柄の工夫など、全体的なカラーコーディネートを重視してご提案しました。Fさまには、一つひとつの提案をじっくりご検討いただき、ご納得いただけるリフォームができたと思います。
お客さまの声
リフォームでどのような部屋にしたいのか、いろいろな希望はあるもののそれをどう伝えればいいのか、具体的に考えていくのは難しいと思いました。そうした時にも、プランナーさんは、プロの視点からのアドバイスとともに、こちらのイメージを引き出そうとあれこれ尋ねてフォローしてくださったので助かりました。おかげさまで、和の雰囲気のある自分好みのお部屋となり、満足しています。
リフォーム/リノベーションデータ
家族構成
リノベーション後間取り
専有面積
施工期間
リノベーション費
築年数(リノベーション当時)
リノベーション箇所
- 内装
- フローリング、クロス張り替え
- 水回り
- キッチン、トイレ、洗面室、ユニットバス
- 造作家具・収納
- 洋室収納、寝室収納、廊下収納、玄関収納、キッチンカウンター収納
- その他
- 3枚引き戸


