
家族みんなで集える理想の住まいをかなえたリフォーム
- 80.02㎡
- 2LDK
- 1,650万円(税込)
- 家族構成:4人
- 施工期間:約3カ月
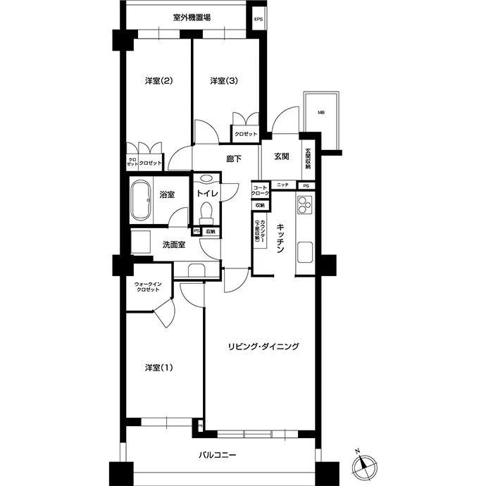
Sさまは以前、同じマンションの別の階にお住まいでしたが、偶然にも同じマンション内で違うお部屋が販売されていることをお知りになりました。元々のお住まいには特に不満はなかったものの、販売されているお部屋は広々としたリビングとキッチンがあり、ご主人さまが理想とする対面型キッチンを実現できるスペースが備わっていました。オープンな空間を実現するため、住み替えを行いリフォームすることを決断されました。対面キッチンにしたい、リビングからキッチンまで同じ空間にしたいとご要望のSさまに対面キッチンを含むリビング・ダイニングと一続きの空間となるプランをご提案。さらに、手洗いコーナーを玄関の近くに設けることで帰宅時の手洗いがスムーズに行えるようになりました。開放感と使い勝手の良さを兼ね備えた空間が完成しました。
リフォーム/リノベーションのポイント

リビング・ダイニングは、キッチンまで一体感のある広い空間にすることをご希望されていたため、元々隣接していた洋室とリビング・ダイニングの間の壁を取り払い、一続きの広い空間にしました。置く予定だったソファの大きさと配置に合わせてキッチンの壁の位置もご提案しました。

リビングは洋室と(1)一続きの空間としたことでご家族がゆとりをもって一緒に過ごすことができるようになりました。またウォークインクロゼットを無くしそのスペースにパソコンやプリンターが置ける作業スペースを作りました。またタブレットなどを充電しながら置けるスペースをサイズに合わせて設計しました。照明は音声操作ができる仕様にしたことでスマートな居住環境になりました。

Sさまのご希望により、キッチンを対面式キッチンに変更しました。これにより家族とのコミュニケーションを取りながらお料理を楽しんでいただけるようになりました。また、背面には食器棚を造作し、収納量を十分に確保しました。さらに、リビング側の腰壁にはグレー系のエコカラット※1を使用し、高級感を演出しました。
- ※1エコカラットとは、LIXILの機能性建材(調湿建材)です。

玄関の近くに手洗いコーナーを新たに設けました。将来、お嬢さまが成長された時に、ヘアドライヤーやヘアアイロンなどを使用する可能性が高いと考え、コンセントを多めに設置しました。

浴室はウォルナット材の表情を持つ木目調のアクセントパネルを取り入れ、温かみのある雰囲気を演出しました。また日常のお手入れが簡単になるよう、ボタンひとつで浴槽を自動洗浄してくれる機能を採用しています。

洗面化粧台には、収納量を確保するためにサイドに棚がついたタイプをご提案しました。洗面室の洗濯機置き場には元々開き戸の収納がありましたが、使い勝手の良い衛生的な環境を考慮し、可動式のオープン棚に変更しました。

トイレは掃除がしやすい商品を採用し、さらに手洗いカウンターを新たに設置。小物を置くことができるスペースも作りました。また、トイレの床は大理石調のシートで高級感を演出しました。

玄関には小物を掛けて収納できるスペースを新たに設けました。スペースの背面にはエコカラット※1を張り、空間のアクセントにもなっています。
- ※1エコカラットとは、LIXILの機能性建材(調湿建材)です。
お客さまのご要望
- 対面キッチンにしたい
- リビング・ダイニングとキッチンを同じ空間にしたい
- 水回り設備を新しくしたい
- 玄関を入ってすぐに手洗い場を設けたい
- 広いリビングで家族団欒のときを過ごしたい
デザイナーからのコメント
Sさまのリフォームの希望は非常に明確でしたので、私たちはその要望をしっかりとヒアリングし、プランに反映させるために必要なサポートをさせていただきました。長年の夢だったリフォームを実現するお手伝いができて、大変うれしく思っています。
お客さまの声
プランナーさんとのやりとりが密で漏れがなく、スムーズに進行していただきました。心から感謝しています。同じマンションの住み替えリフォームでしたので、工事の進捗や仕上がりの様子を実際に見に行くことができ、安心してお任せすることができました。
完成後のイメージと実際の仕上がりがぴったりと合っていて、大満足です。思い描いていた理想の住まいが現実になったことに感激しています。
リフォーム/リノベーションデータ
家族構成
リノベーション後間取り
専有面積
施工期間
リノベーション費
築年数(リノベーション当時)
リノベーション箇所
- 内装
- フローリング、クロス張り替え、エコカラット、建具交換
- 水回り
- キッチン、トイレ、洗面室、ユニットバス
- 造作家具・収納
- ワークスペース、ウォークインクロゼット、ニッチ(飾り棚)


