
将来を見据えたこだわりの住まい
- 66.94㎡
- 2LDK
- 1,397万円(税込)
- 家族構成:2人
- 施工期間:約2.5カ月
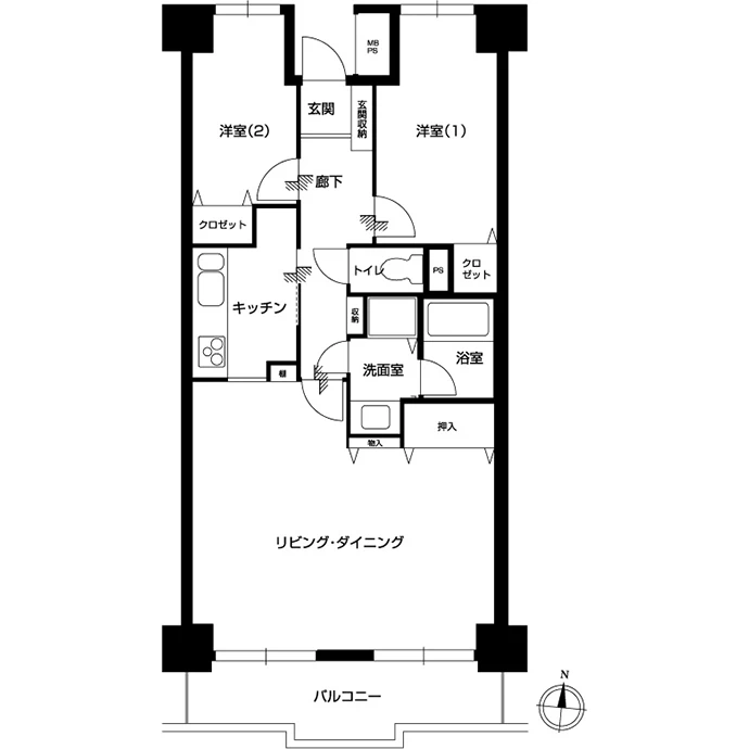
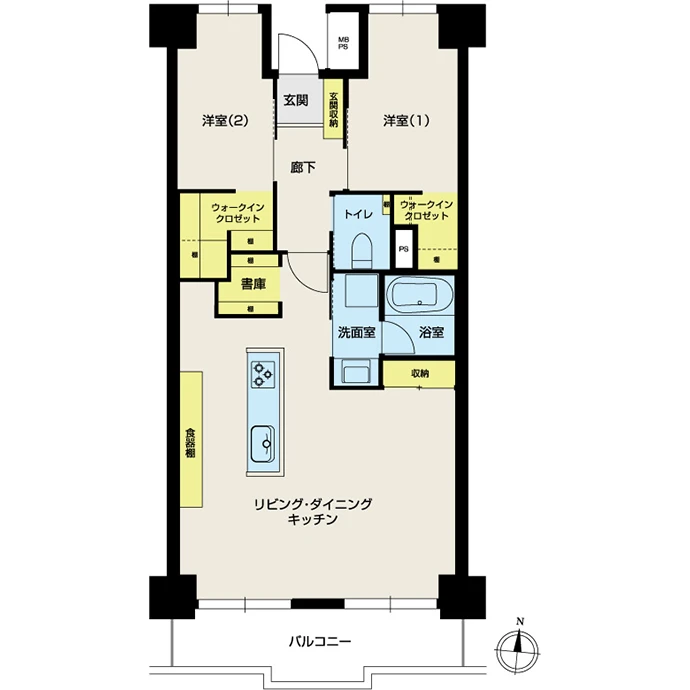
築34年のマンションにお住まいのNさまは、これまで住んでいた住戸が夫婦二人暮らしには広いと感じました。同マンション内で賃貸に出していた小さめの住戸が空いたことを機にお住み替えをし、お二人で暮らしやすい間取りへのリフォームを決心されました。将来を見据えてバリアフリーにしたい、リビング・ダイニングをくつろぎの空間にしたいとのご要望に部屋の段差をなくし、キッチンを含むリビング・ダイニングを一続きにするプランを、さらに著述業の奥さまのために書庫をプラスアルファでご提案しました。ご夫婦一緒にゆったりと楽しめる住まいが完成しました。
リフォーム/リノベーションのポイント

リビング・ダイニング・キッチンはクロゼットや建具を白系に、アクセントカラーとしてブルーやグリーン系を取り入れることで爽やかで優しい雰囲気になりました。

半個室だったキッチンはアイランドキッチンとすることで動線が増え家事の効率が上がり、明るく開放的になりました。お気に入りの家電や雑貨を並べられるように腰高の食器棚を採用しました。腰壁、背面の壁には動植物をモチーフにしたクロスを採用し、空間が華やかになりました。

ご夫婦それぞれの個室は収納スペースを広げるために、ウォークインクロゼットに変更しました。出入口の扉は引き⼾に変更し、壁面は植物をモチーフにした柄の白いクロスを採用しました。

洗面化粧台は収納力のある三面鏡タイプを採用しました。室内装飾のインテリアは白を基調に、アクセントとして細かい花柄のクロスを採用。清潔感と華やかさのある空間となりました。

浴室はゆったりと寛げるようにサイズを大きくしました。浴槽の色はご主人さまのご希望で、淡いグリーンを採用しました。

トイレは将来の介助を見据えてスペースを広くしました。さらに⼿すりを新設し、入り口は引き⼾に変更しました。またクロスは、洗面室と同じブルーの花柄で統一しました。

著述業の奥さまのために、書庫をご提案しました。天井まで届く本棚は、可動式で本のサイズによって高さを調節可能です。壁面にはチョークで書いて消せる⿊板のような濃紺のクロス、天井には開放感が感じられる空模様のクロスを採用し遊び心のある空間になっています。

廊下の床材は、リビング・ダイニングと同じホワイトオークの木目調を選びました。白を基調とした空間に、奥さまがお選びになった紺の扉がとても映えます。

玄関は、照明に人感センサー付きのダウンライトを採用したことで消し忘れがなく、⼿が触れないため衛生面でも安心できるようになりました。また廊下に設置されていた分電盤は玄関収納上部の棚の中に隠すことで、空間をすっきりとさせました。
お客さまのご要望
- 夫婦二人暮らしに合った間取りに変えたい。
- 部屋全体の段差をなくしたい。
- トイレを広くしたい。
- リビング・ダイニングをゆっくりくつろげる空間にしたい。
- キッチンを明るく開放的にしたい。
デザイナーからのコメント
将来を見据えてお部屋全体の段差を解消したのに合わせて天井を高くすることによって開放的な空間になりました。広くなったリビング・ダイニングでは、ご夫婦が一緒にくつろげるように、また、書庫をリビング・ダイニングの一角に設えたことでお互いの気配を感じつつ、一人ひとりの時間を過ごせるようにプランニングしました。
お客さまの声
リフォームしていただいた新しい間取りは、二人暮らしにぴったりで、快適な生活を送ることができています。さらに、バリアフリー対応をしていただいたおかげで、安心して過ごすことができるようになりました。私はたくさんの本を所有しており、以前から天井まで高さのある本棚に憧れていました。今回、その夢を叶えていただけて本当に嬉しいです。
リフォーム/リノベーションデータ
家族構成
リノベーション後間取り
専有面積
施工期間
リノベーション費
築年数(リノベーション当時)
リノベーション箇所
- 内装
- フローリング、クロス張り替え、建具交換
- 水回り
- キッチン、トイレ、洗面室、ユニットバス
- 造作家具・収納
- 食器棚、書庫


