
二人の生活動線に合わせた、オープンに暮らせる機能的な住まい
- 70.36㎡
- 1LDK+S
- 1,550万円(税込)
- 家族構成:2人
- 施工期間:約2カ月
新築で購入された3LDKのマンションにお住まいのAさまご夫妻。お二人での生活であまり使用しない部屋があることから、自分たちのライフスタイルに合わせて、より使いやすい間取りにするために、フルリフォームすることを決意されました。大きなワンルームのように使える広々とした空間にしたいとのご希望をうかがい、引き戸とカーテンを活用してオープンに使える間取りへの変更をご提案。さらに、お二人が動きやすい生活動線と大きな収納を確保し、無駄な空間が少なく暮らしやすいお住まいにすることができました。
リフォーム/リノベーションのポイント

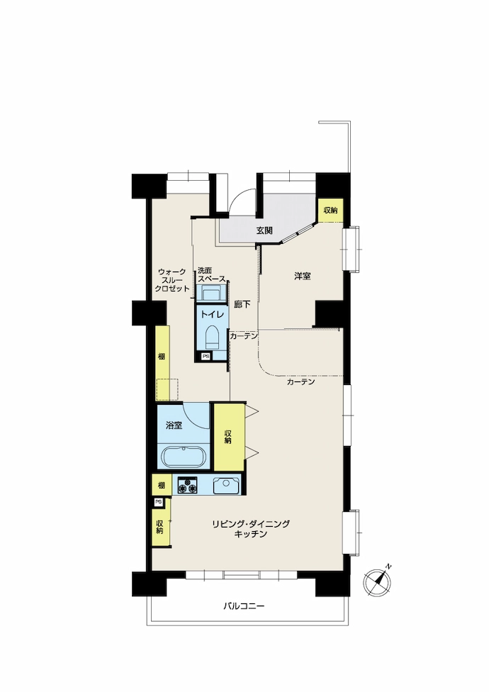
リビング・ダイニングは和室をなくして広げました。これからも長く使えるよう手入れをされたテーブルセットやランプシェードの色合いに合わせ、窓にはウッドブラインドを採用。木の雰囲気に囲まれた暖かみのある空間を演出しました。

リビング・ダイニングは、白を基調とした明るくすっきりとした内装としました。床は、以前の濃い茶色のフローリングから、傷つきにくく掃除がしやすい石目調フローリングへと変更しました。

リビング・ダイニングには、大型の収納兼作業スペースを新設。パソコン作業やアイロンがけなどもできるデスクがおさまっており、ご主人さまお気に入りの隠し部屋のような空間としました。

リビング・ダイニングの一角は、ご主人さまのベッドスペースです。リビング・ダイニングとの仕切りは、手軽に開け閉めできるカーテンとし、さらに引き戸を開ければ奥さまの寝室である洋室ともつながります。キッチンからリビング・ダイニング、そして洋室までが一続きとなる、開放感のある空間とすることができます。

洋室は、奥さまの寝室です。ロールスクリーン付きの造作棚や壁の姿見などによって、奥行きの感じられる空間とし、室内窓を設けることで二面採光と部屋の広がりを確保しました。さらに、お気に入りのピンクのランプシェードに合わせ、紫色のアクセントクロスを大胆に取り入れることで個性を演出。冬場の結露対策として、出窓にはインナーサッシを採用しました。

洋室の建具は、2面とも開口の大きな引き戸を採用し、開け放てばキッチンからリビング・ダイニング、洋室までが一続きとなってワンルーム的に使える、広がりのある空間を実現することができました。

キッチンは、対面式から壁付けキッチンに変更。シンプルでコンパクトにまとめたので、使いやすく、お手入れも楽に。また、作業スペースが広がりとても動きやすくなりました。吊戸棚の一部とキッチン収納には、半透明の扉を採用したことで、閉塞感の少ない、明るい印象のキッチンとすることができました。奥さまのアイデアで、キッチン収納の一部は白いスチールボードとし、マグネットで調理道具などの小物を付けられるようにしました。

浴室は、洗面室を移動させたことで拡張が可能となり、1216から1620へサイズアップ。さらに、肩湯機能付きの浴槽に交換し、バスタイムをゆったりと楽しむことができるようになりました。床は、自動洗浄機能付きで、お手入れが楽になりました。

洗面化粧台は、帰宅後すぐに手が洗えるように、玄関の近くに設置しました。手を洗ったあとは、ウォークスルークロゼットに入り、バッグを置いたり着替えたりしやすい動線としました。

トイレは、掃除のしやすいタンクレスタイプを採用。洗面化粧台に近いので、トイレ内には手洗い器やカウンターをあえて置かず、シンプルでゆとりのある空間としました。

洗面スペースの隣に、すぐ入ることができるウォークスルークロゼットを新設。普段お使いになる衣類や季節物の衣類などの収納を集約しました。また、浴室近くに、洗濯機置き場と脱衣スペースを移したことで、帰宅後、ウォークスルークロゼットで着替え、脱いだ衣類は洗濯機へという動きが一つの動線となりました。

玄関から廊下にかけては、洋室(2)をなくして拡張しました。さらに、廊下とリビング・ダイニングを仕切るカーテンを開けると、玄関からつながる広々とした空間となります。

玄関脇には、物干しポールを取り付けた洗濯物が干せるスペースを新設。大きな窓と室内窓があるため、風通しがよく、洗濯物がよく乾きます。
お客さまのご要望
- あまり使っていない和室や洋室(2)の空間を有効活用したい。
- ワンルームのように使える広々とした空間がほしい。
- 広くて使いやすいキッチンがほしい。
- 浴室を広くしたい。
- 洋室(1)が結露しやすいので対策してほしい。
デザイナーからのコメント
キッチンやベッドスペースは、必要最小限でよいのでシンプルにまとめたい、一方リビング・ダイニングや浴室、収納は広くしたいというご希望にどう応えるかが、大きなテーマでした。その解決にあたって一つのポイントとなったのは、洗面室をなくし、洗面化粧台を玄関に入ってすぐの場所に移したことです。洗面スペースから、動線は2つに分かれ、着替えや洗濯といった生活動線と、リビング・ダイニングに直行できる動線を設定しました。生活や収納のための場所、寛ぎやもてなしのための場所とすっきり分けることで、シンプルかつスタイリッシュで広々としたAさまお望みの空間とすることができました。
お客さまの声
新築マンションを購入してから26年が経ち、以前からリフォームを検討していました。今回リフォーム相談会に参加し、とても丁寧な対応をしていただき、初めてのリフォームをお願いすることにしました。間取りの変更やキッチン、浴槽の反転配置、引き戸への変更などは、ご提案いただいたもので、空間の無駄が少なく使いやすい住まいになりました。従来のものを使っている間は気付きませんでしたが、キッチンや浴室、トイレなどの設備も新しいものは機能が充実しているので、本当に便利ですね。特に、キッチンのガスコンロは炊飯やトースターの機能が付いたタイプとしたので、家電も少なくなり、収納力に比してコンパクトなキッチンとすることができました。それらも合わせてリフォームをやってよかったと思っています。
リフォーム/リノベーションデータ
家族構成
リノベーション後間取り
専有面積
施工期間
リノベーション費
築年数(リノベーション当時)
リノベーション箇所
- 内装
- フローリング、クロス張り替え
- 水回り
- キッチン、トイレ、洗面室、ユニットバス
- 造作家具・収納
- リビング収納、洋室収納、ウォークスルークロゼット
- その他
- インナーサッシ・内窓、パネル式引き戸


