お部屋や収納を整理し、ご趣味で収集された家具が映える暮らしやすい空間に。
- 93.30㎡
- 2LDK
- 1,921万円(税込)
- 家族構成:3人
- 施工期間:約3カ月
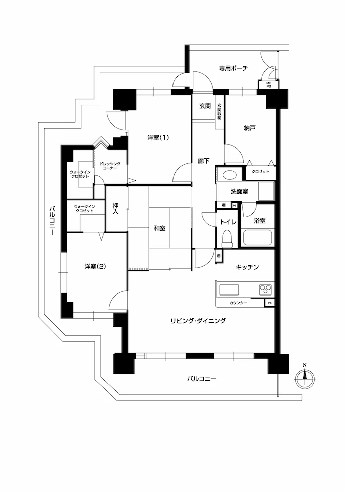
築26年のマンションにお住まいのWさまは、水回り設備が古くなったこと、冬場は窓からの冷え込みがあることなどからリフォームを検討されていました。また、和室やウォークインクロゼットなどこれまであまり使っていなかった空間を有効に活用したいとの思いから、弊社のリフォーム相談会に参加されました。快適な住まいにすることに加え、趣味で集めた家具を希望の場所にきちんと置けるようにスペースを確保してほしいとのご要望もあり、リビング・ダイニングの拡張をはじめとする間取りの変更と収納の再配置をご提案。ゆとりをもって家具が置けるようになりました。内装のカラーコーディネートにも配慮し、ご趣味で集められた家具が映える空間を実現しました。
リフォーム/リノベーションのポイント

これまで配置できなかった家具を使いやすく配置できるようになり、ご希望どおりのリビング・ダイニングになりました。キッチン天井の折り返し部分には、間接照明を設置し、立体感のある空間演出としました。さらに、冬場の冷え込み対策として、壁には断熱材を施工し、洋室(2)のテラスドア(片開き戸)とウォークインクロゼット内の三角窓は複層ガラスへ、他すべての窓はインナーサッシを取り付けました。

こだわりの赤いソファに合わせて、リビングのテレビボード背面は、ピンクのアクセントクロスとし、暖かみのある空間としました。テレビボード下部の間接照明も足元を優しく照らします。また、ピアノをリビングに置くため、床の一部を補強しています。ダイニングテーブルとアイランド型のシステムキッチンを並べたことで、使いやすい動線を実現しました。

キッチンは、これまでの片側が壁に接していた対面式のものから、動線の自由度が高いオープンのアイランド型をご提案しました。キッチン天井は木目調とし、リビングとは異なるナチュラルな空間演出としました。背面には壁付けの大型カップボードを新設し、収納力を高めました。

洋室(1)は、ご夫妻の寝室兼書斎です。以前あったウォークインクロゼットを奥行きを抑えたクロゼットにすることで、ダブルベッドが置ける広さを確保しました。クロスはお好みのブルー系を採用。さらにベッドの枕元にはエコカラット※1を張ったニッチを設置しました。間接照明がエコカラットのレリーフを照らし、光の陰影がソフトなアクセントとなるデザインです。

洗面室は、リビング・ダイニングの拡張を優先したいというWさまのご意向により、面積を小さくしながらも、キッチンから浴室へ、ストレートにつながる動線への変更や2カ所の可動棚の設置などで、使い勝手を向上させました。奥さまのお好みで選ばれたブルーローズ柄のクロスが、お部屋を明るい雰囲気にしています。

トイレは、キッチンからなるべく離したいというご要望に応え、位置を変更しました。さらに、花などを飾ることもできる手洗いカウンターの造作をご提案。壁は、清潔感と落ち着いた印象のある淡いラベンダー色のクロスを基調に、アクセントとしてレリーフ模様のエコカラット※1を採用しました。
- ※1エコカラットとは、LIXILの機能性建材(調湿建材)です。

新たに廊下と洋室(1)につながるウォークスルークロゼットを設置し、十分な収納スペースを確保しました。内部には、洋服を掛けることができるハンガーパイプや寝具を収納できる枕棚を設け、お手持ちの和ダンスを置くことができるスペースも確保。アクセントクロスは、お客さまのお好みで遊び心のあるポップな柄を採用しました。

廊下には、日用品の保管に便利な廊下収納を新設しました。

玄関スペースは、窓からの明かりを取り込み、開放感のある空間にするため納戸をなくして、ゆとりのある玄関ホールにしました。姿見を張ったトール型の玄関収納、絵画などを飾れるニッチも新設し、使いやすく上質な雰囲気の漂う空間に仕上げました。
お客さまのご要望
- 和室をなくしてリビング・ダイニングを広げてほしい。
- 置き場がなく和室にしまっている家具を配置できるように、工夫してほしい。
- ウォークインクロゼットをもっと使いやすくしたい。
- 水回り設備を一新したい。
- 冬場の冷え込み対策をしてほしい。
デザイナーからのコメント
お客さまのご要望に沿って、間取り変更やリビング・ダイニングの拡張に加え、ご趣味で収集された家具の配置についても、見映えや使い勝手を考慮しながら慎重にプランニングいたしました。具体的には、実際に置いた状態をシミュレーションし、動線に影響がないかを丁寧に確認しながら進めました。その結果、お客さまがご希望のお部屋や場所に家具を配置でき、理想的なお住まいをご提供することができました。
お客さまの声
リフォーム相談会に参加するにあたって、プランナーさんから事前の電話ヒアリングがあり、簡単に希望をお伝えしたところ、相談会当日に早くもプラン提案をいただいたことにまず驚きました。何よりも、趣味で収集していた家具が、しっかりと配置されて使いやすくなり大変嬉しく思います。
リフォーム/リノベーションデータ
家族構成
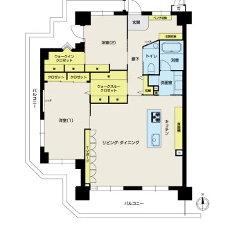
リノベーション後間取り
専有面積
施工期間
リノベーション費
築年数(リノベーション当時)
リノベーション箇所
- 内装
- フローリング、クロス張り替え、エコカラット
- 水回り
- キッチン、トイレ、洗面室、ユニットバス
- 造作家具・収納
- 洋室収納、寝室収納、廊下収納、ニッチ(飾り棚)、ウォークスルークロゼット、ウォークインクロゼット
- その他
- 洗濯物干し


