
白と黒のモノトーンが映えるオンリーワンの家
- 80.33㎡
- 2LDK+DEN
- 2,299万円(税込)
- 家族構成:1人
- 施工期間:約3カ月
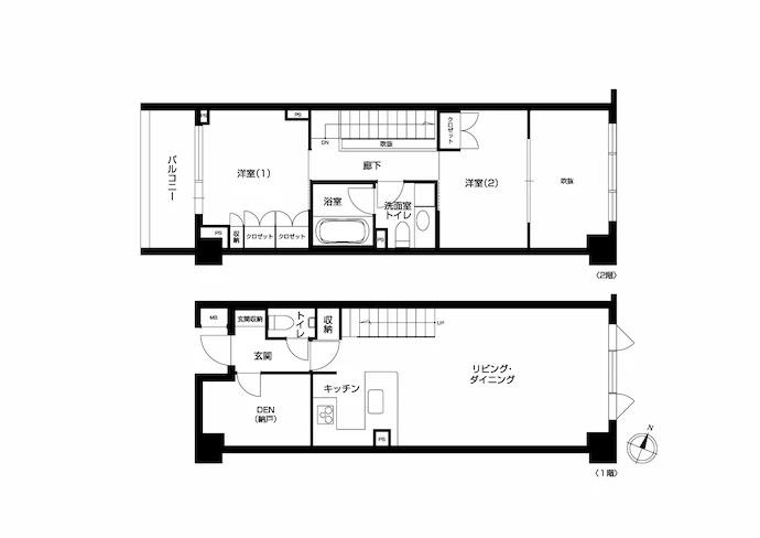
リフォームを前提に築18年のマンションを購入されたVさま。キッチンを広くしたい、浴槽をなくしてシャワーブースにしたい、モノトーンを意識した自分好みのインテリアで統一したいとのご要望を受けました。そこでキッチンをコの字型からI字型に変更して作業スペースを広げ、浴室はシャワーブースに変更。お部屋全体のインテリアは、ホワイトを基調に、ガラスの折れ戸や、階段の手すりはブラックのスチール素材を採用しました。階段の手すり壁にはガラスパネルをはめ込み、スタイリッシュな空間に仕上げました。
リフォーム/リノベーションのポイント

リビング・ダイニングの床や壁はホワイトとグレーを基調とすることでとても明るい空間となりました。テレビを掛ける壁はエコカラット※1を採用。また配線を壁の中に入れてすっきりとさせました。ソファの背面には、USBポートやコンセントが設置されたカウンター収納を新設。また、吹き抜け窓から日差しがたっぷりと入ります。
- ※1エコカラットとは、LIXILの機能性建材(調湿建材)です。

キッチンをコの字型から壁付けキッチンに変えることで、作業スペースが広がり、お料理がより楽めるようになりました。また、ダイニング側には料理の匂い移りを防ぐために、ガラス素材の建具を新たに設置しました。開閉可能なこの建具は、お料理を出す際にも便利に使用できます。サッシにはモノトーンを意識してブラックを採用し、お部屋全体のインテリアの統一感を持たせました。ガラス素材にしたことで、閉じた状態でもリビング・ダイニングまで見通すことができます。

2階へと続く階段には、安全のための手すり壁を新たに設置しました。手すりはモノトーンのブラックを採用し、手すり壁はガラス素材を採用して、キッチンの建具と調和させました。さらに、ステップ部分の材料をリビング・ダイニングの床材と同じホワイトの色調に統一することで、お部屋全体のインテリアを統一しました。

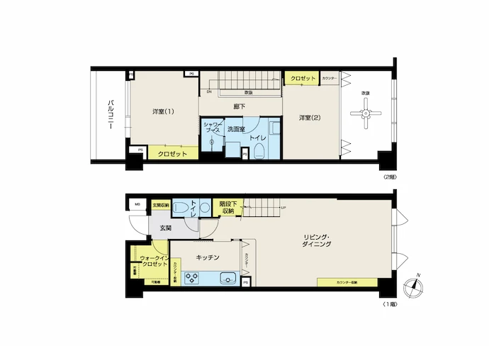
寝室として使われる洋室(1)の収納は、収納内の仕切りを撤去したことで幅広いアイテムの収納が可能となりました。

ご両親や親戚が訪れた際のゲストルームとして使用する洋室(2)は、引き違い窓と左右の壁面を取り払い、全開放が可能なガラスの折れ戸に変更することで明るく開放的になりました。またスーツケースなど大型のものが入る収納と、デスクも設けました。吹き抜けの天井にはお部屋の空気を循環させるシーリングファンを設置しました。

洗面室は、壁一面を洗面化粧台と収納スペースにしたことで、広々とスッキリとした空間となりました。洗面室は、Vさまのお好みであるブラックを基調にしながらも、重苦しい印象を避けるためにグレーを取り入れ、バランスの取れた空間になりました。トイレは、コンパクトなタンクレスタイプを採用し、ホテルライクな空間を実現しました。

浴槽を使用されないことが多いとのことから、浴室はシャワーブースへと変更しました。オーバーヘッドシャワーを設置し、より快適な入浴環境を実現しました。床にはグレーのタイル、天井にはブラックの素材を用いることで、洗面室と合わせたシックなカラーコーディネートとしました。

1階のトイレは、ホワイトを基調にしながら、収納の建具、洗面ボウルにはアクセントカラーとなるシルバーやグレーの色調を取り入れました。また優しい印象となるようにタオル掛けなどのアイテムは全て丸いフォルムで統一しました。ボウルはガラス素材を用いて、ラグジュアリーな雰囲気を演出しました。

元々、階段の下に収納スペースがなく、物を置くと散らかって見えることを懸念されていました。そこで、新たに壁を設置して収納スペースを確保しました。この収納は、取手のないプッシュオープン扉を採用し、スッキリとした外観となりました。

玄関収納は、モノトーンを意識したブラックのカラーで建具と統一。掃除がしやすいようにフロートタイプを採用しました。廊下には、高級感が漂うビアンコカララ調のタイル材を採用しました。

玄関スペースの収納の取手やウォークインクロゼット、そして廊下のドアノブなどは、すべて丸みのあるデザインで統一しました。さらに、1階トイレの鏡やボウルなども同様に丸いフォルムを持つアイテムで統一され、調和のとれた美しい雰囲気が生まれました。
お客さまのご要望
- キッチンを広くしたい。
- 浴槽をなくして、シャワーブースにしたい。
- モノトーンを意識したインテリアで統一したい。
デザイナーからのコメント
キッチンの窓や2階の吹き抜け部分に採用したガラスによって開放感のあるお部屋にすることができました。住まい全体がモノトーンで統一され、スタイリッシュでありながらも心地よい居住空間が完成しました。
お客さまの声
当初は、リフォーム済みの中古マンションを買うことも検討していましたが、より自分好みの住まいをつくりたいと考えて、マンション購入後にフルリフォームをお願いしました。実家でも階段の手すり壁にガラス素材を使っていて、開放感があったので自宅でも取り入れました。好みのインテリアの中に、見慣れた景色も加わった自分だけの特別な住まいになって嬉しいです。天井にシーリングファンを取り入れるなど、空気の流れにまで気を配っていただき、とても暮らしやすくなりました。
リフォーム/リノベーションデータ
家族構成
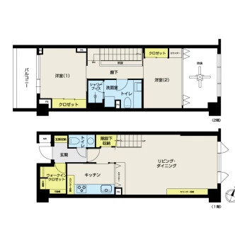
リノベーション後間取り
専有面積
施工期間
リノベーション費
築年数(リノベーション当時)
リノベーション箇所
- 内装
- フローリング、クロス張り替え、エコカラット
- 水回り
- キッチン、トイレ、洗面室
- 造作家具・収納
- 洋室収納、玄関収納、キッチンカウンター収納、シューズインクロゼット
- その他
- 可動間切り


