
木の温もりが感じられる和モダンの家
- 141.99㎡
- 4LDK
- 2,813万円(税込)
- 家族構成:4人
- 施工期間:約3カ月
築18年のマンションにお住まいのKさまは、水回りの設備を新しく変えることをきっかけに、キッチンの収納を増やしたい、お手持ちの家具とお部屋の雰囲気を合わせて和モダンのインテリアに統一したいと、リフォームをご要望されました。そこでキッチンの向きを変更して、収納を充実させるプランをご提案。さらにKさまご希望の和モダンを追求し、選び抜いた建具やクロスで、お部屋全体に統一感を持たせました。キッチンパネルにガラス、壁紙に和紙など、さまざまな素材を使いわけて見た目にも美しく、より特別感を感じられるよう工夫しています。木の温もりが心地よい、広々とした和モダンの住まいが完成しました。
リフォーム/リノベーションのポイント

リビング・ダイニングには、窓際にベンチ型の収納を新設し収納力が大幅に上がりました。腰掛けとしても使えて、利便的かつデザイン性に優れた収納となっています。床材は、お手持ちのダイニングテーブルやテレビボードにも合う節目のない明るいオーク材、また壁面の一部は、ナラ材の格子を採用しました。照明は、ダウンライトと間接照明の併用ですっきりとした印象に。やわらかい明かりが木の表面を照らす、心安らぐ空間となりました。

キッチンは対面式に変更し、お料理の際に手元がリビングから見えないように配慮した、腰高のカウンターを採用しました。キッチンの背面には、大容量の家電収納と食器棚を新設。これまで調理台に並んでいたものがすべて収納可能となりました。また家電収納の壁パネルには、ガラスとガラスの間に和紙を取り込んだ合わせガラスを採用。特別感漂う部材と充実した収納で、スタイリッシュかつ使い勝手のよい空間となりました。

ご夫婦の寝室となる洋室(1)には、雨の日のお洗濯も安心な「ホシ姫サマ」※1を設置。未使用時は天井に格納できるためお部屋がすっきりと使えます。照明は、調光可能なタイプを採用しました。
- ※1「ホシ姫サマ」は、パナソニックの室内物干しユニット商品です。

お子さまの居室となる洋室(2)と洋室(3)は、寒さ対策として床暖房を新設しました。床材は、リビング・ダイニングや洋室(1)と同じもので統一感を持たせています。

和室は、和紙の半畳畳へ交換しました。和室の開口部は、引き戸を開けたときにリビング・ダイニングと一続きに見える工夫として、引き戸の高さを天井の高さとそろえています。さらに一体感を持たせるため、引き戸には天井と同じホワイトのクロスを採用しました。また照明も、リビング・ダイニングと同様のダウンライトと間接照明を用いて、空間全体で統一感を演出しました。正面の壁には、手漉き(てすき)の和紙が入った壁紙を採用。Kさまが選ばれたシェードカーテンにも和の風合いが取り入れられています。

洗面台は、衛生面でも安心な自動水栓タイプの蛇口を採用しました。鏡の奥は大容量の収納となっており、木製のフレームをつけたことで、出し入れの際も鏡面に直接手が触れることがないため、汚れがつきにくくなりました。正面のパネルは、天板と同じ素材を採用。床材には、奥さまがお好きな旅館を思わせる、素足で歩くのが心地よいビニル織物床タイルを選びました。

浴室には、ご主人さま念願のオーバーヘッドシャワーを取り入れました。ダウンライトは色味・明るさともに変更可能で、ラグジュアリーなバスタイムを過ごすことができます。

玄関に近い来客用のトイレは、タンクレストイレを採用。横長の鏡も新たに設置しました。陶器のボウルやブロンズの蛇口は、ラグジュアリー感を演出しています。

主にご家族で使うトイレも、同じくタンクレスタイプを採用しました。壁紙や棚はホワイトを選びシンプルな空間としつつ、和モダンの要素を感じられる大理石調の床材を取り入れました。

廊下とリビング・ダイニングをつなぐ建具は、枠のないフルハイトドアを採用し開放的ですっきりとした空間となりました。ドアの両側にはガラスを選び、見通しよく空間が明るくなりました。また正面の壁にはオブジェを際立たせる間接照明を設置。壁紙はやわらかい和モダンな空間を引き立てるクロスを選定しました。壁面の一部であるナラ材の格子巻きが、和モダンを一層際立たせる空間となりました。

玄関は、天井から床まで届く大型の鏡を新設し、お出かけ前の身だしなみチェックもしやすくなりました。
お客さまのご要望
- キッチンを対面型にして、収納を充実させたい。
- 和モダンをテーマにしたインテリアコーディネートにしたい。
- 水回り設備や内装デザインも、選び抜いた素材を使ってお気に入りの住まいにしたい。
- リビングのドアに高さを出して、空間を広く見せたい。
- 水回りは自動水洗など、衛生面でも優れたものを使いたい。
デザイナーからのコメント
Kさまがお選びの設備や建具が、お部屋全体で統一感が出るように、和モダンをテーマにご提案いたしました。ご家族の思い出のホテルや旅館の雰囲気が、お部屋の随所に感じられる、快適で高級感の漂う住まいになりました。間取りはそのままでも十分使い勝手がよいため、主にキッチンやトイレなど、一部の水回りのレイアウトを変更しました。
お客さまの声
海外での生活を経て、日本の住まいに再び魅力を感じ、和のぬくもりが感じられる住まいにしたいと思っていました。以前家族で訪れた旅館やホテルの雰囲気を、自宅でも感じられるように素材選びにこだわりました。私たちの要望に対して、プランナーの方は真摯に耳を傾け、それを元にプランをしていただけたので、とても安心感がありました。結果として、理想の和モダンな住まいが完成し、とても満足しています。
リフォーム/リノベーションデータ
家族構成
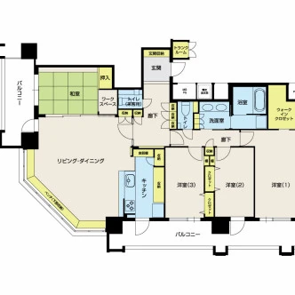
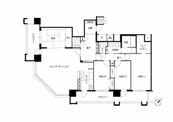
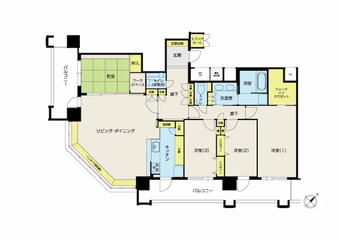
リノベーション後間取り
専有面積
施工期間
リノベーション費
築年数(リノベーション当時)
リノベーション箇所
- 内装
- フローリング、クロス張り替え、クッションフロア
- 水回り
- キッチン、トイレ、洗面室、ユニットバス
- 造作家具・収納
- リビング収納、和室収納、洋室収納、子ども部屋収納、玄関収納、ワークスペース、ウォークインクロゼット
- その他
- 室内物干し、3枚引き戸、床暖房


