
お子さまを見守る小上がりのある住まい
- 95.32㎡
- 3LDK
- 1,540万円(税込)
- 家族構成:3人
- 施工期間:約3カ月
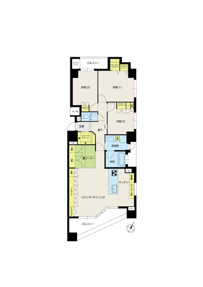
築20年のマンションにお住まいのMさま。最初はトイレの故障による水漏れで便器の交換と内装の変更を依頼されましたが、打ち合わせを重ねるうちに「こんな家にしたい」という思いが膨らみ、設備だけでなく間取りや内装も一新することを決断されました。そこでご夫婦と小さなお子さまの暮らし方を取り入れた遊び心のあるプランをご提案。動線が改善されたリビングとお子さまを見守ることができる小上がりの畳コーナー、またインテリアにもお好みのテイストを取り入れることで、過ごしやすいお気に入りの住まいが完成しました。
リフォーム/リノベーションのポイント

リフォーム前のリビングでは、ソファのサイズが合わず、移動に不便を感じられていました。そのため、既存の家具のサイズを基にプランを作成し、無駄に広げず、家具の大きさに合った「ちょうどよいリビング」に仕上げました。また、Mさまのご希望で壁掛けTVをリビングの中心に設置し、食事中や料理中にも視聴できるようにしました。奥さまが選んだタイル、フローリング、クロスも見事に調和しています。

リビングの一角に赤ちゃんのお昼寝、授乳ができるよう畳コーナーをご提案しました。オープンなのでキッチンからも目を配ることができます。ご主人さまがお酒を飲んだ後にくつろいだり、洗濯物をたたんだり、家族や友人が集まった際にテーブルを囲んで過ごす場所としても活用できます。収納にも工夫をし、畳の床下は大容量の収納があり、リビング側にも大型の2つの引き出しを造作しました。奥さまが選んだ和紙の畳表、壁のクロス、収納扉の柄も優しい印象で、とてもよい仕上がりになりました。

以前からリビングテーブルで食事をされていたため、ダイニングスペースを用いて大型のシステムキッチンを設置することをご提案しました。また、ワインセラーの購入予定もお聞きしていたので、小型のものであれば家電カウンターの下に設置できるようにコンセントを設置しました。壁に採用したキッチンパネルにはシックな石目調を採用し、壁全体に続けて張ることでリビングとのつながりを持たせ、ホテルライクな雰囲気を演出しました。

奥さまの美容のためにシャワーヘッドと浴槽はマイクロバブルを生成する商品を採用しました。

洗面化粧台はトールキャビネットを組み合わせ、収納量を確保しました。洗面室の扉を開けた時にお気に入りの洗面化粧台が目に入るように、洗濯機と洗面台の位置を入れ替えました。

トイレはタンクレスに変更し、コンパクトな手洗い器を新設しました。

玄関に新たに採用したシューズクロークには、ゴルフバックやスーツケース、ベビーカーなどが収納可能です。また、ハンガーパイプを設置したことで、アウターなどの衣類もかけておくことができます。
お客さまのご要望
便器が故障し水漏れしているので、トイレを交換して内装もお願いしたい。
デザイナーからのコメント
ご夫婦と小さなお子さまの暮らし方や趣向を取り入れ、遊び心をもったプランをご提案しました。当初のリフォームのご希望より改装規模は大きくなりましたが、築年数やご家族の状況から見て、よいタイミングで素晴らしい空間を作ることができたと思います。私の提案をハード面、ソフト面ともに採用していただき、大変嬉しく思います。特に、和室が不要とのご要望に対して、多目的に使える小上がりを提案したところ、検討の結果そのプランを採用してくださったことが印象に残っています。また、奥さまが選んだ各部屋のフローリングやクロスの柄も、ご夫婦の雰囲気にぴったりで、素敵に仕上がったと思います。
お客さまの声
最初はトイレの故障がきっかけで問い合わせをしました。打ち合わせが始まり、プランナーさんと話しているうちに、以前から抱いていた「こんな家にしたい」「こんな部屋に住みたい」という思いがどんどん膨らんでいき、思い切って大規模な改修を決断しました。リフォーム後の自宅を初めて見たとき、本当にあの時に決断してよかったと思いました。たくさんの素敵な提案をありがとうございました。
リフォーム/リノベーションデータ
家族構成
リノベーション後間取り
専有面積
施工期間
リノベーション費
築年数(リノベーション当時)
リノベーション箇所
- 内装
- フローリング、クロス張り替え、建具交換
- 水回り
- キッチン、トイレ、洗面室、ユニットバス
- 造作家具・収納
- リビング収納、壁面収納、キッチンカウンター収納、畳下収納
- その他
- 畳コーナー


