
思い出の家をリフォームして親戚が集まれる空間を実現
- 78.12㎡
- 2LDK
- 2,100万円(税込)
- 家族構成:-
- 施工期間:約4カ月
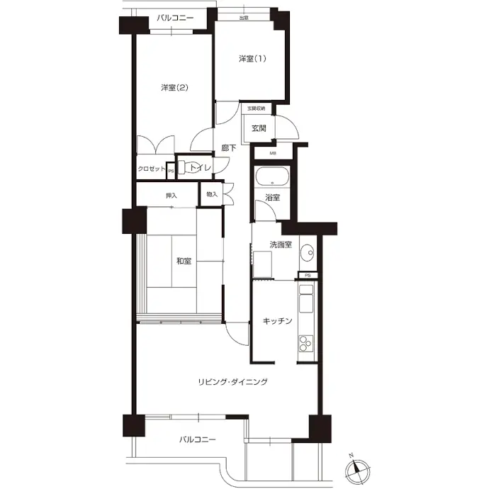
お祖母さまが介護施設に入居されるのをきっかけに、それまで暮らしてこられた築41年のマンションのリフォームを決めたHさま。水回り設備の交換、床・壁・天井の張り替え、配管の更新を行うために、専有部内を一度躯体の状態にして間取りを一新するスケルトンリフォームを実施しました。お祖母さまが帰宅した際には「またいつものように親戚一同が集まれる場所にしたい」というご要望に応え、プランナーは広いリビング・ダイニングとオープンキッチンを中心とするプランをご提案。ご親戚のご要望もうかがいながら、宿泊用の寝室や大容量のウォークインクロゼットを備えた使いやすい空間を実現しました。
リフォーム/リノベーションのポイント

お盆やお正月にはご親戚が15人ほど集まるため、広いリビング・ダイニングを設置しました。6人掛けのダイニングセットやソファを配置し、大勢でもゆとりを持ってコミュニケーションがとれる空間となっています。また、床全体を7cmほど上げて二重構造にし、床暖房を取り入れることで、冬でも快適に過ごせるようになりました。

リビング・ダイニングの壁の一部に、石目模様のエコカラット※1(画像左)やマグネットパネル(画像中)を設置して変化を加えました。磁石のつくマグネットパネルは、壁を傷つけることなくカレンダーなどの掲示物を貼ることができてとても便利です。また、お祖母さまが大切にされてきた絵画を飾りたいというご要望に応え、ピクチャーレールをさまざまな場所に取り付けました(画像右)。
- ※1エコカラットとは、LIXILの機能性建材(調湿建材)の商品です。

リビング・ダイニングには、ダウンライトと梁に合わせた間接照明を設置しました。天井を照らす間接照明により、柔らかい光が広がり、落ち着いた雰囲気を演出しています。

リビング・ダイニングに面して、オープンキッチンを設置しました。ご親戚が集まった際に、数人でキッチンに立ってもストレスを感じさせない広さを確保してあります。グレイッシュな扉に、ブラックのハンドルやレンジフード、水栓などがアクセントとなるシステムキッチンのカラーリングは、メーカーのショールームで目に留まった組み合わせです。収納スペースもたっぷりと用意しました。フローリングは、天然木のような質感がありながら水拭きが可能で、お手入れも簡単にできる商品を採用しました。

キッチン脇の窓際には、調理をしている人と腰掛けた人で会話ができるようにベンチを設置しました。調理中の休憩にも便利なスペースです。壁には小物を置けるニッチ(飾り棚:画像右)を設置し、ベンチの足元には日用品などを入れる引き出し式の収納を設けています。

洋室(1)には、ご親戚が宿泊の際に使うベッドが設置されています。また、リモートワークなどにも利用できるようデスクも設置しました(画像右)。

洋室(2)も宿泊用のスペースとしてご用意しました。出入口とクロゼットの扉は引き戸を採用し、すっきりとした印象にまとめました。

「後から収納家具を置かなくてもよいように、十分な収納スペースを確保したい」とのご要望を受け、リビングの隣に、衣類や家電を収納できるウォークインクロゼットを設置しました。普段は人目に触れない場所なので、少し個性を出したいと、ブルーグレーの壁紙を採用しました。また、宿泊用の布団を収納できるスペースも確保しています(画像右)。

キッチンの奥には、食料品や日用品のストックに便利なパントリーを設置しました。深みのあるオレンジ色の壁紙で温かみのある空間を演出しています。さらに、奥の扉を開けると洗面室と浴室に続き、家事の際にスムーズに移動できる回遊型の動線を確保しました。

洗面室には、ご親戚がショールームで一目惚れされた木目調の洗面化粧台を採用しました。洗面ボウルの位置を少し右に寄せて設置したため、サイドにも人が立つことができ、2〜3人で同時に歯磨きができるスペースを確保しています。壁には、磁石で取り付けられるタオル掛けや収納雑貨を設置できるマグネットパネルを張りました(画像右上)。さらに、リネン類を入れられる収納や必要な時だけ引き出して使える物干しワイヤーなどを設置し、機能性も重視して仕上げています(画像右下)。

浴室も他の内装と合わせて、ベージュ系の温かみのある色合いでまとめました。ゆったりと気持ちよくバスタイムを楽しめるように肩湯機能などを備えた浴槽と、転倒を防ぐための手すりも設置しています。

もともと奥行きがあまりなく、狭さを感じていたトイレは、建物の構造上スペースを広げることができませんでした。そこで、できるだけ奥の壁に近づけて設置できるタンクレストイレを採用し、ゆとりをもって座れるように工夫しました。

扉が閉まっていても廊下の明るさを確保できるように、リビングのドアには、光を通すガラスをはめ込んだデザインを採用しました。また、玄関を開けてすぐに目に入る壁にはエコカラット※1でアクセントを加えています。
- ※1エコカラットとは、LIXILの機能性建材(調湿建材)の商品です。

玄関には、靴の脱ぎ履きの際に引き出して使える腰掛けを設置しました(画像中、右)。姿見と合わせて、外出前の準備がスムーズに行えるよう配慮しています。
お客さまのご要望
- 設備や内装をすべて一新したい
- 親戚一同で集まれる、広いリビング・ダイニングをつくりたい
- リビング・ダイニングに床暖房を設置したい
- コミュニケーションのとりやすい、対面キッチンを設置したい
- 十分な収納スペースを確保したい
- 壁に穴を開けずに、祖母の持ち物である絵画を飾りたい
デザイナーからのコメント
お祖母さまの思い出の住まいを、ご親戚が集まれる場所として活用したいというご要望に基づいたプランをご提案しました。間取りや内装を一度解体し、ゼロから作り直すことで、3LDKだったお住まいを2LDK+ウォークインクロゼットに変更しました。配管も取り換えたことで、今後も安心してご使用いただけるようになったと思います。
お客さまの声
他のリフォーム会社にもプランを提案してもらいましたが、「大京のリフォーム」の提案はパントリーの設置など、予想以上の内容が盛り込まれていたことに魅力を感じ、お願いすることに決めました。「親戚が集まる場所にしたい」という要望に対して、親戚一同の好みや希望を随所にしっかりと反映していただき、とても感謝しています。リフォーム後に、施設に入居した祖母に最期をここで迎えてもらいたいと思っていました。結局その希望は叶いませんでしたが、新しくなった家に親戚が集まって交流していることを、天国できっと喜んでもらえていると思っています。
リフォーム/リノベーションデータ
家族構成
リノベーション後間取り
専有面積
施工期間
リノベーション費
築年数(リノベーション当時)
リノベーション箇所
- 内装
- フローリング、クロス張り替え、建具交換
- 水回り
- キッチン、トイレ、洗面室、ユニットバス
- 造作家具・収納
- 洋室収納、玄関収納、ニッチ(飾り棚)、キッチンカウンター収納、ベンチチェスト、パントリー、ウォークインクロゼット
- その他
- 室内物干し


