
これまでを大切に、これからに寄り添う住まいづくり
- 102.48㎡
- 3LDK
- 1,516万円(税込)
- 家族構成:5人
- 施工期間:約3カ月
Sさまは、ご夫妻とお子さま3人の5人家族。こちらのマンションには新築時から賃貸で入居され、周辺の環境や居住者同士のコミュニケーションも良好なことから、大変気に入っていたお住まいでした。お子さまの成長に伴い、大きなリビング・ダイニングがあり、広い子ども部屋が確保できる家に移りたいとお考えでしたが、棟内で条件に合った売却物件が出たことから、お住み替えに。その後、せっかくならリビングをさらに快適にし、設備やインテリアも気に入ったものに変えたいと、リフォームのご相談をいただきました。そこで、既存の建具など生かせるものはそのままに、住み心地を高めるリフォームをご提案。キッチンはオープンキッチンに変更し、また、各々の洋室はお子さまたちが快適に過ごせるお部屋に整えました。家族のつながりを大切にしつつ、それぞれが自分の時間を過ごせる、心地よい住まいが完成しました。
リフォーム/リノベーションのポイント

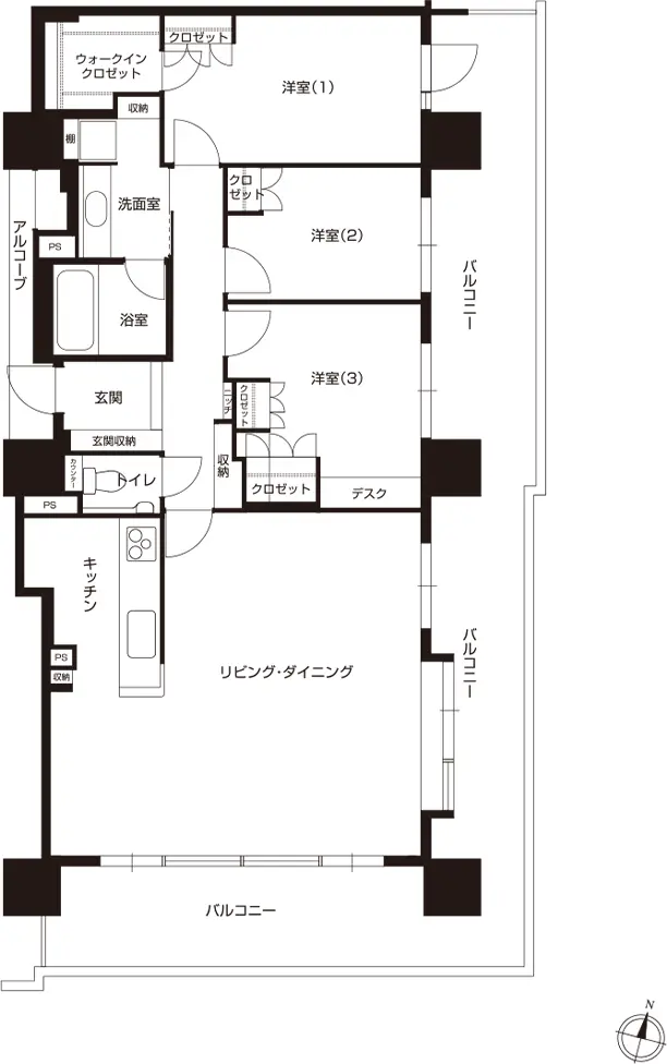
洋室(3)のリビング・ダイニング側にあったクロゼットとデスクをなくし、リビング・ダイニングを広げました。また、独立型のキッチンをオープンキッチンにすることで、さらに広がりのある空間を実現しました。床には明るいオーク柄のフローリングを採用し、白いクロスと組み合わせて開放的な空間を演出。リビング・ダイニング全体を快適に温めるよう、床暖房の設置範囲を広げました。

リビング・ダイニングの新たに広げたスペースは、家族で寛げるテレビコーナーにしました。背面の壁は、石目調の調湿建材を張って空間のアクセントとしました。TVボード上部には間接照明を設置し、梁の圧迫感を和らげるよう工夫しました。さらに、ピアノを置く床には補強を施しています。

独立型だったキッチンは、壁や吊戸棚を撤去してオープンキッチンに。十分な収納を確保できるよう大型の食器棚を新設するため、背面に新たな壁を造作し、すっきりと収めました。キッチンは、お子さまと一緒に料理を楽しめるよう、コンロとシンクの間の作業スペースを既製寸法より広げたものをオーダーしました。天板には、奥さまお気に入りの透明感があるカウンターを採用。さらに、汚れが付きにくくお掃除がしやすいキッチンとなるよう、コンロ側の壁にはキッチンパネルを、床にはタイル調の幅広のフローリングを張りました。床の色調は、リビング・ダイニングとは異なる明るい色をご提案しました。

洋室(2)は、主寝室です。寝室らしい落ち着いた雰囲気となるよう、グレージュのアクセントクロスを採用しました。

浴室には、ハンドシャワーに加えてオーバーヘッドシャワーやボディシャワーも備えました。カウンターを設けず、シンプルですっきりとしたデザインにすることで、お手入れのしやすさにも配慮した空間に仕上げました。

洗面室は、洗面化粧台と洗濯機の間にあった壁を取り除き、圧迫感のない開放的な空間に。洗面化粧台は一枚鏡を設置し、すっきりとした印象に仕上げました。鏡の裏に収納を設けないことで、前方への張り出しがなく、より広く感じられる空間になりました。また、洗面化粧台の収納は、奥に入れたものも取り出しやすい、引き出し型を採用しました。

Sさまのお好みのクロスとCFシートでスタイリッシュに仕上げ、その雰囲気に合うよう、ホテルライクな新しい手洗い器に替えました。
お客さまのご要望
- 水回り設備を新しくしたい
- 独立型キッチンをオープンキッチンにしたい
- リビング・ダイニングを広くしたい
- フローリングを張り替えたい
デザイナーからのコメント
既に一度リフォームされていたので、間取りや建具など、状態のよいところは従来のものを生かしつつ、どうすればもっと快適で暮らしやすいお住まいになるかを考えてプランニングしました。例えば、リビング・ダイニングでは、梁の圧迫感を感じないようライトアップし、壁の一部にはデザイン性のある調湿建材を採用するといった工夫をしました。お客さまのご希望とご予算を丁寧に伺いながら、工夫を重ねていったことで、ご満足いただける仕上がりになったと思います。
お客さまの声
立地をはじめ、広さや間取りも気に入って住んでいたマンションなので、経年劣化した水回りやフローリングをリフォームできればと思いお願いしました。プランナーさんには、何度も相談させていただきましたが、その都度とても分かりやすく、親切に教えてくださって、本当に助かりました。特に念願のオープンキッチンは、センスよくイメージどおりにまとめていただき、とても気に入っています。プランナーさんはじめスタッフの方は、みなさん信頼できるプロフェッショナルで、入居後もいろいろとお気遣いいただき、終始安心して期待を超えるリフォームをすることができました。
リフォーム/リノベーションデータ
家族構成
リノベーション後間取り
専有面積
施工期間
リノベーション費
築年数(リノベーション当時)
リノベーション箇所
- 内装
- フローリング、クロス、調湿建材、CFシート
- 水回り
- キッチン、ユニットバス、洗面室、トイレ
- 造作家具・収納
- 食器棚
- その他
- 床暖房


