
愛猫とともに楽しく暮らせる回遊性のある我が家
- 53.46㎡
- 1LDK
- 1,675万円(税込)
- 家族構成:2人
- 施工期間:約4カ月
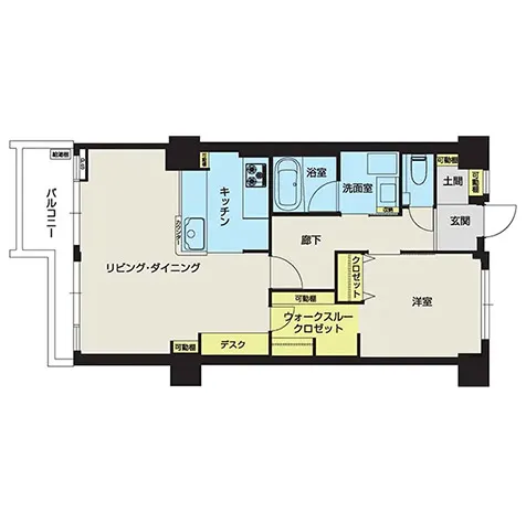
愛猫と長年過ごされてきたAさまご夫妻。奥さまのお母さまが生前お住まいだったマンションに引っ越すにあたり、末長く安心快適に暮らせるようリフォームすることを決められました。ご要望は、バリアフリー化や古くなったサッシの交換、水回りのレイアウト変更といったものでした。そこで、より暮らしやすくするためのプランとして、2部屋ある和室をなくして、リビング・ダイニングの拡張や洋室とウォークスルークロゼットの新設をご提案。ご夫妻はもちろん愛猫もストレスなく暮らせるよう、廊下とウォークスルークロゼットの扉はペットドア付きのものを採用しました。また、お手持ちの北欧家具や奥さまのお母さまが大切にされていた、中国風のアンティークの調度品がなじむ内装としました。
リフォーム/リノベーションのポイント

和室(2)をなくして広くしたリビング・ダイニングは、対面キッチンとしたことで一つながりの空間となり、開放感をさらに高めています。廊下とウォークスルークロゼットにつながる扉は、愛猫が自由に動けるよう、ペットドア付きのものを採用。白を基調としながら、お手持ちのダイニングテーブルセットに合わせ、グレーのアクセントクロスや木目調の建具を採用。床もカーペットからフローリングに替え、ナチュラルな色づかいで暖かみのある空間を演出しました。

リビング・ダイニングの拡張したスペースには、デスクと吊戸棚を新設し、可動棚も造作。収納を確保し、読書やパソコン作業に集中できるスペースとしました。

リビング・ダイニングの窓は、一部を壁で覆い内部をパイプスペースとしました。これにより、従来は廊下にあった給湯器をバルコニーに移設することが可能となり、新たに洗面室を設けるスペースを確保することができました。併せて老朽化していたサッシを、既存の窓枠を残して交換するカバー工法により新調し、断熱性や操作性を向上させました。カーテンボックスも造作し、カーテンレールなどがすっきりと収まるようにしました。

新設したキッチンは、お料理がお好きなご夫妻のために、二人同時に作業できるスペースを確保した2列型を採用。リビング・ダイニング間でコミュニケーションが取りやすいよう、シンク側は対面式としています。キッチンの脇には可動棚を新設し、ごみ箱や調理器具などが置けるスペースとしました。

もとの和室(1)をご夫婦の寝室として洋室へと変更し、ベッドと鏡台のサイズに合わせたコンパクトな設計に。さらに、施工時に配管工事を行い、これまで設置が難しかったエアコンの取り付けも可能になりました。

奥さまは、お手持ちの着物用のたんすが置ける広い収納スペースをご要望されていました。そこで、収納力だけでなく快適性も向上させ、リビング・ダイニングと洋室を行き来できるよう、ウォークスルークロゼットを新設しました。ウォークスルークロゼットのドアと洋室の引き戸を開けることで、換気のしやすい環境も実現しました。愛猫もリビング・ダイニングからウォークスルークロゼット、洋室、廊下と歩き回ることができる、回遊性のある空間となっています。

ご要望の一つは、洗面室を浴室から独立させることでした。そこで、廊下にあった給湯器をバルコニーに移すことで、洗面室のスペースを確保。洗濯機置き場も備えた洗面室を新設しました。また、洗濯機上部と梁の間の狭い空間も有効に使えるよう、可動棚を設置しました。アクセントクロスは、奥さまがお選びになった猫柄を採用。落ち着いた色づかいのなか、デザイン的に遊び心のある空間となりました。

以前は洗面スペースと共用だった浴室を独立させ、またぎやすい高さの浴槽や手すりなどを備えたバリアフリーのユニットバスに交換しました。給湯器を新しくしたことで、ご希望の追い焚き機能を実現。浴室換気乾燥機も新設しました。

トイレは、タンクレストイレに替え、空間を有効に使って、従来はなかった手洗い器と収納のあるカウンターを新設しました。アクセントクロスは、グリーンのシンプルなものを採用。床は、洗面室と同じ柄のCFシートを選んで統一感をもたせつつ、色違いにすることで、各々の空間に個性を与えるよう工夫しています。

玄関の脇には、下足入れや小物入れなどに使える可動棚を設置した大きな土間を新設しました。

廊下には、奥さまのお母さまから譲り受けたアンティークの調度品を置くため、あえてクランクを設けました。これにより、玄関やリビング・ダイニングから廊下を見たとき、アイポイントとなる印象的な空間となっています。
お客さまのご要望
- リビング・ダイニングを広くしたい
- キッチンを広げ、二人で同時に使えるようにしたい
- 着物たんすが置ける大きな収納がほしい
- 浴室内にある洗面スペースを独立させたい
- 寝室にもエアコンを取り付けたい
- バリアフリーにしたい
- サッシを交換したい
デザイナーからのコメント
Aさまお持ちの北欧家具と奥さまのお母さまが集められていた中国風のアンティーク家具や置物は、素敵なものばかりで、それぞれどのように配置すれば生かせるかと考えながらプランニングしました。廊下にあえてクランクを設け、そこに家具を置くことで存在感を演出したこともその工夫の一つです。今後もお二人と愛猫の生活を末長く楽しんでいただければと思います。
お客さまの声
私たちの要望が叶えられ、快適な住まいができました。ご提案いただいた回遊性のある間取りのおかげで、猫も楽しく動き回っています。手持ちの家具や家族が大切にしていたアンティークもご提案のインテリアにマッチし、とても気に入っています。
リフォーム/リノベーションデータ
家族構成
リノベーション後間取り
専有面積
施工期間
リノベーション費
築年数(リノベーション当時)
リノベーション箇所
- 内装
- フローリング、クロス、建具、CFシート
- 水回り
- キッチン、浴室、洗面室、トイレ
- 造作家具・収納
- リビング収納、洋室収納、デスク、ウォークスルークロゼット、カーテンボックス、可動棚、土間
◇管理組合への許諾が必要な工事を含みます。


