
愛犬ファーストの視点から
お住まいを優しく快適にアップグレード
- 93.15㎡
- 2LDK
- 1,819万円
(税込)
- 家族構成:2人
- 施工期間:約3カ月
新築で購入されてから約20年。新たに小さな家族として愛犬を迎えたKさまは、より愛犬にとって安心で、一緒に快適に暮らせるお住まいにしたいとリフォームを検討されました。主なご希望は、愛犬が動きやすいようリビング・ダイニングを広くし、キッチンからも愛犬が見守れるようオープンにすること。また、愛犬の足への負担を軽くするため、滑りにくいフローリングに替えることなどでした。そこで、愛犬ファーストという視点から、Kさまとともにアイデアを出し合い、さまざまなご提案を行うことで、愛犬にとってもご夫婦にとっても、安心・快適かつ洗練されたデザインのお住まいが完成しました。
リフォーム/リノベーションのポイント

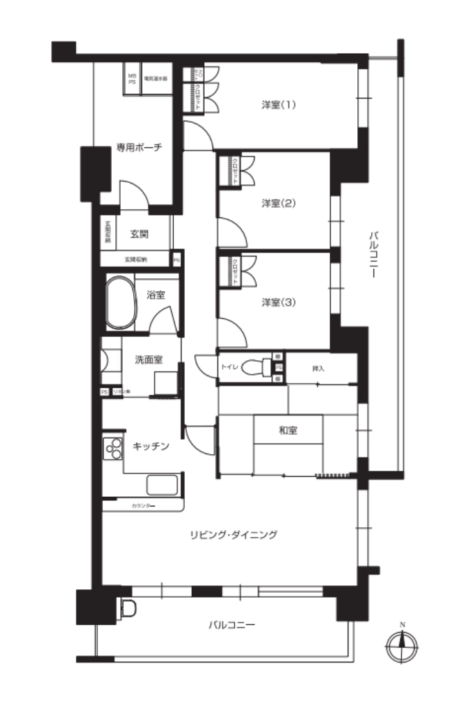
和室をなくして拡張したリビング・ダイニングは、同時に滑りにくいペット対応のフローリングに替えたことで、愛犬が安心して移動できる空間となりました。フローリングは、白いクロスに合わせ、明るい色調のペカン柄を採用。さらに、主照明をダウンライトから間接照明へと変更したことで、洗練された都会的な空間を演出しています。

キッチンは、リビング・ダイニングが見渡せるようシンクの向きを90度変え、独立型から対面式のオープンキッチンにしました。下がり天井とペンダントライトの採用、さらにアクセントクロスや食器棚の色づかいを工夫することで、あえてリビング・ダイニングから独立したキッチン空間を演出しました。

キッチンのカウンター前面に壁と一体の調湿建材を張ることで、リビング空間とキッチンを視覚的に仕切るアクセントとしました。壁の一部には、エアコンなどのコントローラーやリモコンを集約できるニッチ(飾り棚)を設けて、室内をできるだけすっきりとさせました。

キッチンは、料理がお好きなご夫婦のご希望に応え、作業スペースを広く取った3連のIHコンロや大容量で食器の出し入れがしやすいフロントオープン型の食器洗い乾燥機を採用。さらに食器棚のカウンターに並ぶキッチン家電に合わせて壁にコンセントを増設するなど、設備・仕様を充実させました。

玄関に入って左手には、廊下の壁と共通のクロスが張られた一目見ただけでは気付きにくいドアがあります。この秘密めいた遊び心のあるドアを開けると、洋室(1)が出現。奥さまが自由にお使いになる納戸のような空間で、大小さまざまなアイテムをストックできる可動棚を新設したほか、奥さまご愛用のメイクアップデスクも設置しました。

洋室(2)は、愛犬と一緒にお休みになる寝室として使用します。ここでも愛犬のため、リビング・ダイニングと同じペット対応のフローリングを採用。愛犬の足が引っかかりにくいよう、廊下のフローリングと一続きになるように工夫しました。

ウォークスルークロゼットは、洋室(2)の収納スペースとして新設をご希望されたものでした。そこでさらに、洋室(1)側の壁に開口部を設け、回遊性のある動線とすることをご提案し、採用いただきました。「プライベートな空間として、遊んでみたかった」とお選びいただいた大きな花柄のクロスが、キュートな印象を生んでいます。

以前は和室の押入だったスペースを拡張して新設したワークスペース(納戸)。主に奥さまがご趣味のネイルアートを楽しむスペースなので、パソコンやネイルドライヤーなどが使えるようにコンセントを設置したほか、ダストが付きにくくお掃除がしやすい素材のクロスを選びました。また、作業中も愛犬の様子が確認できるよう、室内窓や透明素材をはめ込んだ建具を採用しています。

トイレは、白を基調とする中で、調湿建材を市松模様に張り分けるようデザインし、ブラケットライトもアクセントとして壁に取り付けました。さらに、タンクレストイレへの交換と手洗い器の新設をご提案し、ホテルライクな空間を演出しました。

廊下には、お客さまをお迎えする際、空間を引き立てるアイポイントとなるよう、スポットライトを仕込んだニッチ(飾り棚)を新設。廊下に面する建具はなるべく引き込み戸に替え、すべて天井までの高さがあるフルハイト仕様とすることで、凹凸の少ないすっきりとした壁面となるよう工夫しました。また、廊下もリビング・ダイニングと共通のペット対応フローリングを採用しています。

リビング・ダイニングと廊下を隔てる建具は、その高さいっぱいに透明部分を設け、外からの光が廊下に差し込むようにしました。透明部分の下部には、愛犬が自由に出入りできるペットドアを設置しています。
お客さまのご要望
- 愛犬の足への負担を軽くするため、滑りにくいフローリング材に替えたい
- 和室をなくしてリビング・ダイニングを広げ、愛犬がのびのびと動けるようにしたい
- キッチンに立っていても、愛犬を見守ることができるレイアウトにしたい
- 愛犬の臭い対策として、脱臭効果もある調湿建材を取り入れたい
- 仕事や趣味に使えるスペースと広い納戸がほしい
デザイナーからのコメント
Kさまの愛犬の幸せを第一に考えるお気持ちに寄り添い、できる限りその思いを実現しようと力を尽くしました。一方で、それぞれのお部屋の用途を考慮した動きやすい動線の確保や大胆かつ遊び心の感じられる内装をご提案するなど、機能性とともにデザイン性でも質を高めたリフォームとなるよう、工夫を凝らしました。Kさまには、大変気に入ってお住まいいただけているとのことで、とても嬉しく思っています。
お客さまの声
フローリングが滑りにくいペット対応のものとなったので、愛犬の足元の不安が軽減されました。対面キッチンになったことや透明部分のある建具を採用いただいたおかげで、愛犬に目が届きやすくなり安心感が生まれました。洋室(1)を思い切って納戸のように使える部屋にしたことで、整理整頓が楽になり、ぐっと暮らしやすくなりました。毎日を楽しく快適に過ごしています。
リフォーム/リノベーションデータ
家族構成
リノベーション後間取り
専有面積
施工期間
リノベーション費
築年数(リノベーション当時)
リノベーション箇所
- 内装
- フローリング、CFシート、クロス、調湿建材、建具
- 水回り
- キッチン、洗面室、トイレ
- 造作家具・収納
- ニッチ(飾り棚)、可動棚、ウォークスルークロゼット
- その他
- ワークスペース(納戸)

