
子育てしやすい空間や動線を工夫し
将来の子ども部屋も確保
- 78.98㎡
- 2LDK
- 1,598万円
(税込)
- 家族構成:3人
- 施工期間:約3カ月
お子さまの誕生をひかえ、これまでより広いマンションを購入し、フルリフォームを行うことを決意されたOさま。今回の物件は、弊社のリノベーション条件付き販売マンションをご契約いただいたものです。ご夫婦の寝室と将来の子ども部屋として、リビング・ダイニングのほかに2部屋確保したいとのご意向でした。そこでまずはお子さまのお世話に必要な家事動線を考え、広い洗濯スペースや使いやすい動線をご提案。さらに、お子さまの成長後も快適に暮らせるようプランニングを行い、将来を見据えた住まいに仕上げました。
リフォーム/リノベーションのポイント

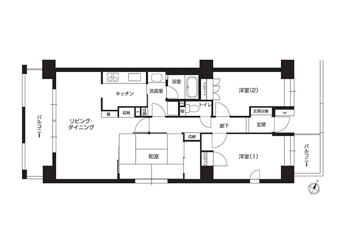
リビング・ダイニングは、インナーサッシを追加して、冬の寒い日も暖かく居心地のよい空間となるようにしました。キッチンのリビング側のクロスはダークグレーのクロスを採用し、リビングの空間のアクセントとなるよう演出しました。

リビング・ダイニングの一角には、Oさまのご要望により畳コーナーを設けました。お子さまが小さなうちは、おむつ替えなどのお世話をする場所という想定で、仕切りを設けず、キッチンからリビング・ダイニング、畳コーナーまでが一続きの移動しやすい空間となるよう配慮しました。また、ご両親さまがお泊まりになる際の就寝スペースとしても利用できます。内装は、基調となる白いクロスに対してダークな色調の建具や棚を配し、一部には石目調のタイルや間接照明を取り入れることで、立体感が感じられる空間にしました。

キッチンは、独立型から対面式のオープンキッチンへと変更。キッチンに立ったとき、お子さまから目を離すことなくリビング・ダイニングや畳コーナーが見渡せる配置となるよう配慮しました。また、以前の回遊動線を生かし、キッチンの引き戸を開ければ洗面室を通って廊下に出られる、水回りの移動がしやすい動線を確保しました。

キッチンのシンクの壁面は、調理用具を掛けたり飾り付けが楽しめるようにマグネットパネルを張りました。リビング側の壁は、インターホンの出っ張りをなくすため、ニッチ(飾り棚)を設けて収めるようにしました。

洋室(1)は、ご家族の寝室です。従来あったクロゼットをなくし、ベッドと必要最小限の家具が置ける部屋としてシンプルに仕上げました。アクセントクロスには寝室らしく落ち着いた色合いのグレーを採用。床には部分的に汚れたときに張り替えられるよう、タイルカーペットを採用しました。

ご家族の衣類を収納できる大型のウォークインクロゼットをご提案。収納スペースを集約したことにより、探しやすく、整理もしやすい使い勝手のよい収納となりました。お手持ちの衣類のサイズや量に合わせ、ハンガーパイプの本数や位置を細かく設定。お子さま用のコーナーとして低い位置に取り付けたパイプや、シーツを広げて干せるよう高い位置に設置したパイプもあります。

浴室は、「子どもと一緒に入れる広さがほしい」とのご要望に応え、サイズアップしました。また、掃除のしやすさも重視されていたことから、カウンターのないすっきりとした水栓回りを採用。大理石調のアクセントパネルが、空間に動きと奥行きを演出しています。

お子さまのご誕生とともに洗濯物が増えることを想定し、洗濯物を畳んだりアイロンがけをしたりするための作業スペースを確保するため、洗面室を拡張しました。新しい洗面化粧台は、既存のものより大きなデザイン性の高いものをご提案し、タイル模様のパネルを採用した製品を選定いただきました。

トイレは、既存の棚の色に合わせて白色をご提案しました。クロスは、白が映えるような落ち着いた色合いをお勧めし、その中から、明るいグレーを選んでいただきました。

「ベビーカーを折り畳まず玄関ドアの近くに置きたい」というご要望に応えて、玄関スペースを広げ、一部を可動棚として棚の下にベビーカーが置けるようプランニングしました。さらに、収納下の段差を生かした間接照明で、空間に広がりとアクセントを加えました。
お客さまのご要望
- 洋室を2部屋確保し、一つは将来子ども部屋として使えるようにしたい
- 畳スペースを設けたい
- 対面キッチンにしたい
- 大きな洗面化粧台に替えたい
- ベビーカーを折り畳まずに、玄関ドアの近くに置けるようにしたい
デザイナーからのコメント
お子さまがいらっしゃるご家庭ではどのような生活動線がよいのか、その後、成長されてからの暮らしにも問題がないかなど、さまざまに検討し、ご提案いたしました。ご入居後の家具購入やそれに伴うDIYについてもご一緒に検討いただき、こちらも正確な寸法でスペースの確保やコンセント位置の指定を行うことができました。Oさまに喜んでいただき、私たちも感謝の気持ちでいっぱいです。
お打ち合わせでは、お客さまとイメージを丁寧に共有しながら、お好みやこだわりを一つ一つ確認して進めて参りました。お話を詳しく伺うことで、理想的な空間を明確にすることができ、プランの方向性を早い段階で固めることができました。打ち合わせを重ねるごとに、お客さまのご要望が具体的な形になっていく過程にご一緒できたこと、また、ご満足いただける空間をご提案できたことを大変嬉しく、光栄に思っております。今後もお二人の暮らしが、より豊かで心地よいものとなり、毎日が特別な時間になることを心より願っております。このたびは誠にありがとうございました。
お客さまの声
フルリフォームとはいえ予算の制約もある中で、私たちの希望をかなえるために細かく打ち合わせしていただきました。特に子どもが小さいうちは、住まいに何が必要かを真剣に考え、たくさんご提案くださったことに感謝しています。仕上がりも想像以上で、大変満足しています。
リフォーム/リノベーションデータ
家族構成
リノベーション後間取り
専有面積
施工期間
リノベーション費
築年数(リノベーション当時)
リノベーション箇所
- 内装
- フローリング、カーペット、フロアタイル、CFシート、クロス、建具
- 水回り
- キッチン、浴室、洗面室、トイレ
- 造作家具・収納
- 玄関収納、ニッチ(飾り棚)、カウンター、可動棚、オープンクロゼット、ウォークインクロゼット
- その他
- 畳コーナー


