
仕事仲間とも楽しめるこだわりの空間
- 115.11㎡
- 4LDK
- ―
- 家族構成:―
- 施工期間:約2カ月
法人で所有されているマンションで、来客や打ち合わせの機会が多いことから、「自宅のようにリラックスしながら、自然体で交流できる空間にしたい」というご要望をいただきました。そこで、機能性だけでなく居心地の良さにもこだわり、打ち合わせや会話がゆったりと行える空間構成をプランニング。飾り棚や趣味のディスプレイコーナーを配置し、訪れる人にさりげなくオーナーのこだわりや世界観が伝わるよう工夫しました。「大人の秘密基地」をイメージした、くつろぎと遊び心が共存する空間が完成しました。
リフォーム/リノベーションのポイント

リビング・ダイニングはペンダントライトを設置し、空間にやわらかな陰影をもたせることで、落ち着きのある雰囲気を演出しました。

リビングの可動間仕切り建具は、お部屋全体の雰囲気に調和するダークネイビーを採用。さらに、リビングの一角には、趣味のグッズをスタイリッシュに収納・展示できるディスプレイスペースを新設。メッシュドアを用いることで、程よく視線を通しつつ、インテリアのアクセントにもなる空間に仕上げました。

洋室(4)は、和室から洋室へと変更しました。間仕切りの引き戸を開けるとリビングとつながる空間のため、全体のインテリアとテイストを揃えました。西日が入る窓には、光量を調整できるウッドシャッターを採用。やわらかな光を取り込みながら、時間帯や用途に合わせて快適に過ごせる工夫を施しました。また、収納の扉もシャッターに合わせたルーバー仕様とし、デザイン性と通気性を兼ね備えています。仕事や作業部屋としても使いやすい、落ち着いた多目的空間に仕上げました。

洋室(3)は、ベッドスペースとして快適に使用できるよう、床材とクロスを張り替えて整えました。

壁を取り払い、キッチンは開放感のあるオープンスタイルへと刷新しました。ダイニングとのつながりが生まれ、空間全体に一体感と広がりを感じられる構成となっています。天板にはステンレスを採用し、扉材には程よい錆感のある素材をセレクト。無機質な素材感の中にも味わい深さを感じられるよう、空間の雰囲気に調和する素材選びを心がけました。

洗面室はメトロタイルを壁面に採用し、素材の質感が映える空間に仕上げました。ヴィンテージ感のあるブラケット照明を組み合わせることで、こだわりの空間になりました。

トイレはダークブルーのアクセントクロスを採用し、収納にはダークブラウンを組み合わせました。深みのあるブルーと重厚感のあるブラウンが調和し、空間全体に引き締まった印象をもたせています。色数を抑えた配色とすることで、シックで落ち着きのある、洗練されたトイレ空間に仕上げました。

建具にはダークネイビーを採用し、空間全体に統一感をもたせました。

住まい全体を通して、細部に用いる素材感やタイルの質感にもこだわりました。
お客さまのご要望
- 来客や打ち合わせにも対応でき、自宅のようにくつろげる空間にしたい
- リビングを中心に、開放感が感じられる一体感のある住まいにしたい
- 仕事や作業にも集中できる空間を確保しつつ、用途に応じて使い分けられる間取りにしたい
- 細部の素材やディテールにまでこだわり、全体に統一感のある住空間にしたい
デザイナーからのコメント
細部の素材感やメトロタイルの質感にまでこだわり、イメージを共有しながら何度も打ち合わせを重ねて完成したお住まいです。照明や色遣いにも配慮し、くつろぎと機能性を併せ持つ空間をご提案しました。完成後にはこだわりのディスプレイも加えていただき、より魅力ある住まいに仕上がったことを嬉しく思います。
お客さまの声
「アンティークレンガとメトロタイルを使用したブルックリンスタイル」という、頭の中に描いていたイメージの具現化に向けて、レンガやタイルの目地調整、コーキング材の調色、照明器具やスイッチの選定に至るまで、細部にわたる要望にも丁寧にお付き合いいただきました。そのおかげで、本当に満足のいく空間をつくり上げることができたと感じています。担当者さんをはじめ、施工に携わってくださった職人の皆さまに心より感謝いたします。ありがとうございました。
リフォーム/リノベーションデータ
家族構成
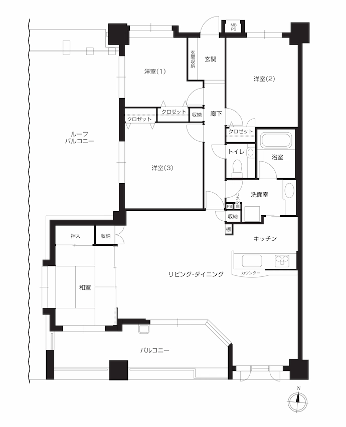
リノベーション後間取り
専有面積
施工期間
リノベーション費
築年数(リノベーション当時)
リノベーション箇所
- 内装
- フローリング、クロス、建具
- 水回り
- キッチン、浴室、洗面室、トイレ
- 造作家具・収納
- 洋室収納、リビング収納、洗面室収納、食器棚
- その他
- ウッドシャッター、メッシュドア


