
ホテルのスイートルームに住まうような
暮らし心地。明るく開放的な間取りに
- 96.91㎡
- 1LDK
- 1,590万円
(税込)
- 家族構成:2人
- 施工期間:約2.5カ月
セカンドライフを迎えるにあたり、より快適で落ち着いた暮らしを実現するため、(⻑年住み慣れたお住まいの)リフォームを決意されたKさまご夫婦。就寝スペースの位置を変更し、冬場の寒さを軽減するとともに、洗⾯室やクロゼットの配置を⼯夫。⽇々の⽣活がよりスムーズに送れるようプランニングしました。また、リビング・ダイニングは元々の洋室と⼀続きにすることで開放的な空間に。ベッドルームを中⼼に、各空間が⾃然に調和し、ホテルのスイートルームのような住まいへと⽣まれ変わりました。
リフォーム/リノベーションのポイント

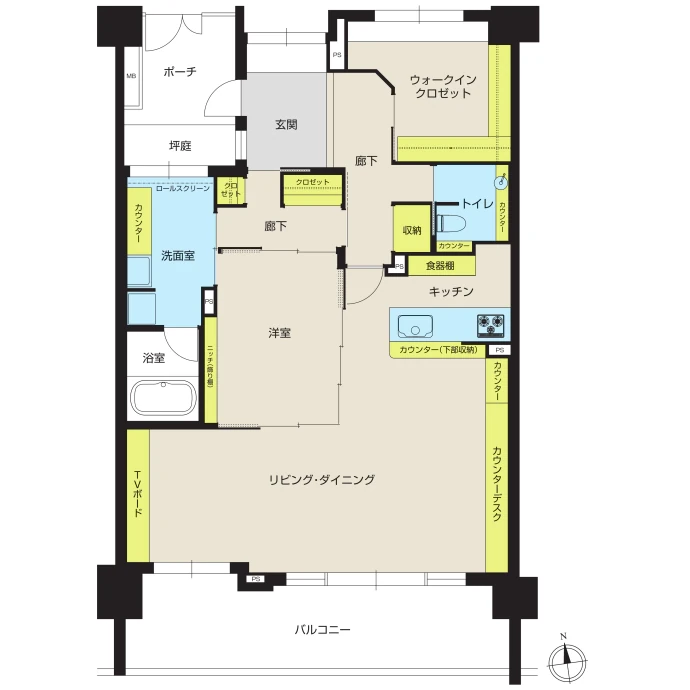
リビング・ダイニングの壁⾯には、⻑さ4m以上のカウンターデスクを設置。趣味の作業スペースにも使⽤することができ、どこに座ってもゆったりと使⽤できる快適な空間となっています。

就寝スペースとリビング・ダイニングの間には、デザイン性のある縦格⼦の引き⼾を設置。引き⼾は全閉から全開まで⾃由に開閉できるため、シーンに応じて空間の使い⽅を柔軟に調整可能。開放感を楽しみたいときは扉を開き、プライベートな空間を確保したいときは閉じるなど、暮らしのスタイルに合わせた活⽤ができます。

就寝スペースをお部屋の中央に配置することで、ホテルライクな暮らしを実現。洗⾯室、⽞関、トイレ、リビング・ダイニング、キッチンへの動線がスムーズになり、快適で機能的な住空間へと⽣まれ変わりました。さらに、仕切り扉の奥には⼤型収納を配置し、その脇の引き⼾を開ければ、⽞関へのアクセスが可能です。

就寝スペースのベッド脇から直接出⼊りできる、ゆとりのある洗⾯室。広いカウンターを備え、化粧や⾝⽀度を快適に⾏える機能的な空間となっています。

トイレ内の⼿洗いカウンターまわりは、⾞いすでも快適に通れる⼗分な広さを確保。引き⼾を開けても廊下側から便器が直接⾒えないよう配置を⼯夫しました。
お客さまのご要望
- 北側の就寝スペースの寒さを解消したい
- 将来に備えた暮らしやすい部屋にしたい
- ホテルのような雰囲気にしたい
デザイナーからのコメント
Kさまは、将来のライフスタイルの変化を⾒据え、⻑く快適に暮らせる住まいを目指してリフォームを決意されました。ご希望の住まいを形にする過程では、お客さまのこだわりや想いを丁寧に伺いながらプランを練り上げました。完成した住まいをご覧になったKさまの喜びの声をいただき、プランナーとしても⼤変嬉しく思います。
お客さまの声
予想以上に快適で、もっと早くリフォームしていればよかったです。暮らしやすくなっただけでなく、掃除も楽になり、毎⽇の⽣活がより快適になったと感じています。
リフォーム/リノベーションデータ
家族構成
リノベーション後間取り
専有⾯積
施⼯期間
リノベーション費
築年数(リノベーション当時)
リノベーション箇所
- 内装
- フローリング、クロス、タイル、建具
- 水回り
- キッチン、洗⾯室、トイレ
- 造作家具・収納
- ウォークインクロゼット、TVボード、⾷器棚、ニッチ(飾り棚)、廊下収納、洗⾯室収納、トイレ収納、カウンターデスク、カウンター
- その他
- 引き⼾


